《杰特·大艺空间》



- 项目类型:办公
- 项目地点:桂林市
- 建筑面积:418.0000㎡
- 项目造价:40.0000万元
- 主案设计师: 欧建书
- 参与设计师:周扬
- 竣工时间:2019-04-15
- 设计机构:桂林品之筑设计有限公司
-
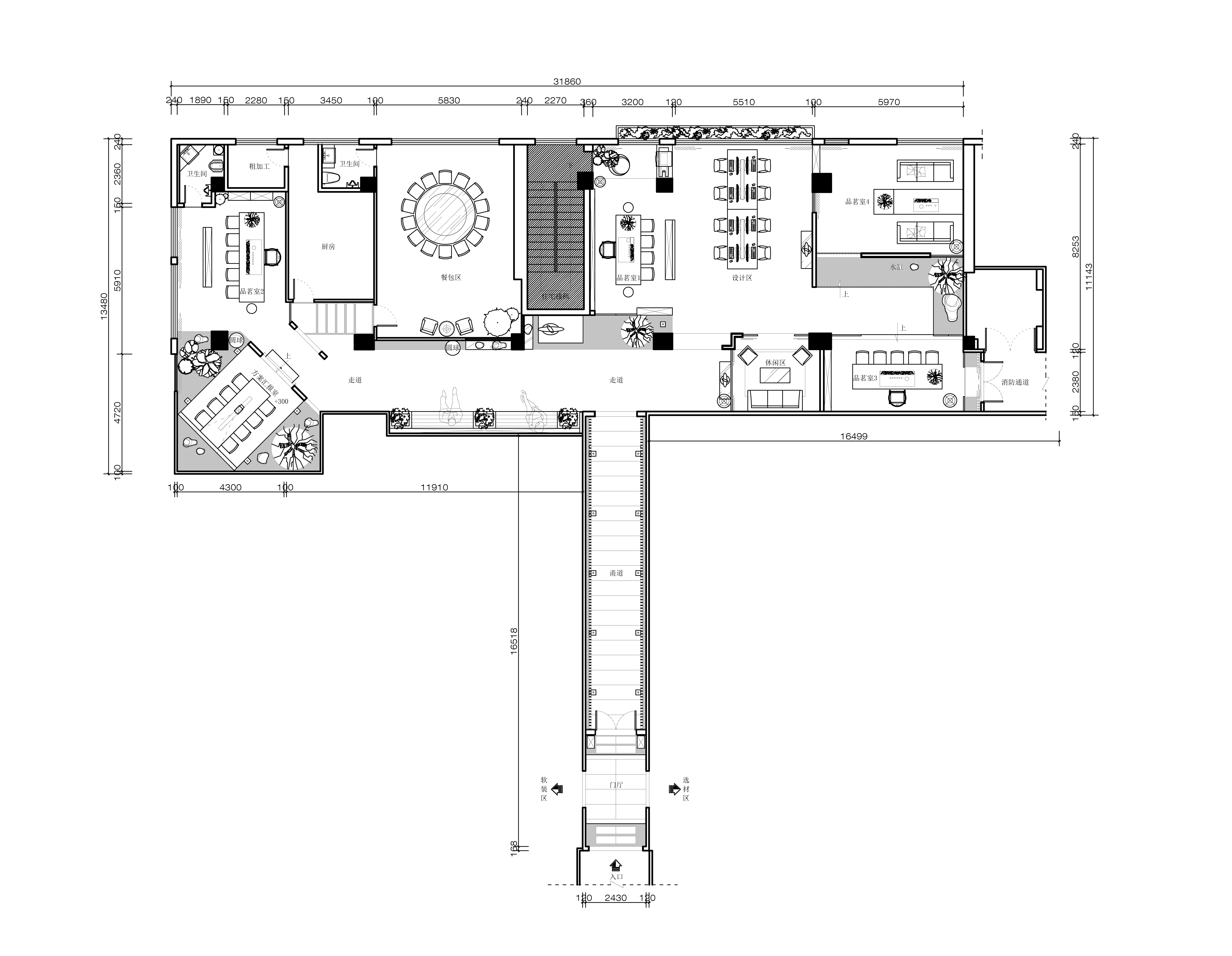
项目定位:作为当地前三甲家装公司的高端子品牌,在公司总部内划分部分空间,打造专注于设计服务的高端设计会所。
-
空间意境:18米多长的过厅及甬道,营造庄重的仪式感,平面布局中钻石形状的方案汇报室抬高300MM,尊贵无比。
-
空间布局:空间划分上,运用了中国文化的“隔”、“障”、“框”、“透”等手法来分隔组合空间,同时紧密结合功能需求进行分区,整体视觉流畅,半遮半掩隔而不断,避免了空间设计中的死角区域,保证空间之间的通透性和独立性以及连贯性,犹抱琵琶半遮面,提炼后的中式传统元素为空间增添些许文化意蕴和趣味,禅意无边。
-
设计选材:大面积的素色水泥和深灰色砖构成项目基色,点缀浅原木色,使空间不再显沉闷。接近自然,贴近生活,还原生活,不需要表现,也无需去修饰,仅是我们心里所想,心念所需,是我们真实的自我感受,采用市场上随手可购的材料可有效减少采购时间和工程的顺利推进,快速将项目投入使用。
-
用户体验:项目落地后,在功能布局及空间意境展示效果上均达到用户的要求,有效的提高公司的签单率。
入口甬道:18米多长的过厅及甬道,营造庄重的仪式感。
走道、开放办公区、品茗室:犹抱琵琶半遮面,隔而不断,保证品茗区的私密性。
品茗室:犹抱琵琶半遮面,隔而不断,保证品茗区的私密性。
走道:大面积的素色水泥和深灰色砖构成项目基色,点缀浅原木色,使空间不再显沉闷。
走道:用空间的语言来传达文化内涵。
品茗室:犹抱琵琶半遮面,隔而不断,保证品茗区的私密性。
VIP休闲区:中式传统元素为空间增添些许文化意蕴和趣味,禅意无边。
方案汇报室:钻石形状的方案汇报室抬高300MM,尊贵无比,跨过中国传统建筑元素“框景”的圆拱门洞,这里将是设计团队演绎设计理念的舞台。
方案汇报室:圆中圆。
方案汇报室:钻石形状的方案汇报室抬高300MM,尊贵无比,跨过中国传统建筑元素“框景”的圆拱门洞,这里将是设计团队演绎设计理念的舞台。
局部:茶香,光与影。
局部:透
局部:生机盎然。
局部:点亮心扉。
局部:球
局部:品位文化,感悟生活。
局部:偶寄闲情,暂忘尘嚣,把工作时间过成超然。
作为当地前三甲家装公司的高端子品牌,在总部内打造专注于设计服务的高端设计会所,特别设计18米多长的过厅及甬道,营造庄重的仪式感,平面布局中钻石形状的方案汇报室抬高300MM,尊贵无比。 空间划分上,运用了中国文化的“隔”、“障”、“框”、“透”等手法来分隔组合空间,同时紧密结合功能需求进行分区,整体视觉流畅,半遮半掩隔而不断,避免了空间设计中的死角区域,保证空间之间的通透性和独立性以及连贯性,犹抱琵琶半遮面,中式传统元素为空间增添些许文化意蕴和趣味,禅意无边。 本案是以现代新中式风格打造的办公空间,用现代的设计手法演绎中国的文化意蕴,提取中国元素并加以简化和丰富,结合现代的文化和审美追求,用空间的语言来传达文化内涵。 品位文化,感悟生活,在这里寻求最合适的表达,打造一种追求完美、追求品味的生活态度。

