欧派软装·美学馆


作品说明
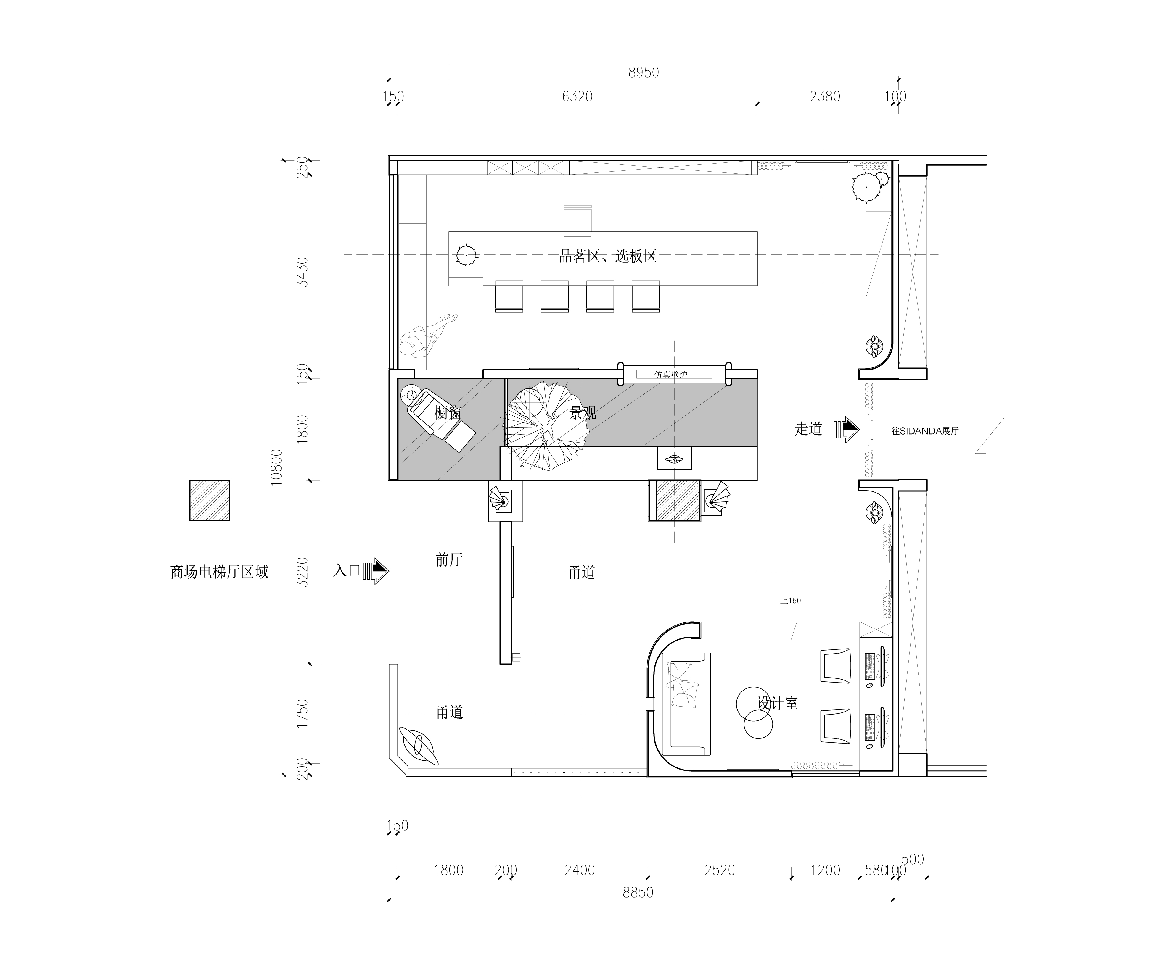
- 项目类型:零售
- 项目地点:桂林市
- 建筑面积:97.0000㎡
- 项目造价:25.0000万元
- 主案设计师: 欧建书
- 参与设计师:欧建书、周扬
- 竣工时间:2023-01-01
- 设计机构:桂林品之筑设计有限公司
-
项目定位:摒弃琳琅满目产品展示的传统卖场设计理念。
-
空间意境:移步换景,空间与空间隔而不断,互相交融。
-
空间布局:前厅内退式设计,退一步,海阔天空,动线蜿蜒曲折,延长参观停留时间,同时最大化展示产品。
-
设计选材:所有装饰材料精选自于自身品牌,所见即所得,不求奢华只求最大化展示自我,同时展示品牌材质的质感与精致。
-
用户体验:人人都是自媒体,打造建材市场内的网红打卡点,吸引关注度,通过大众广而告知。

