行走于山水间
721
作品说明
- 项目类型:办公
- 项目地点:桂林市
- 建筑面积:350.0000㎡
- 项目造价:25.0000万元
- 主案设计师: 欧建书
- 参与设计师:欧建书、周扬
- 竣工时间:2023-10-01
- 设计机构:桂林品之筑设计有限公司
-
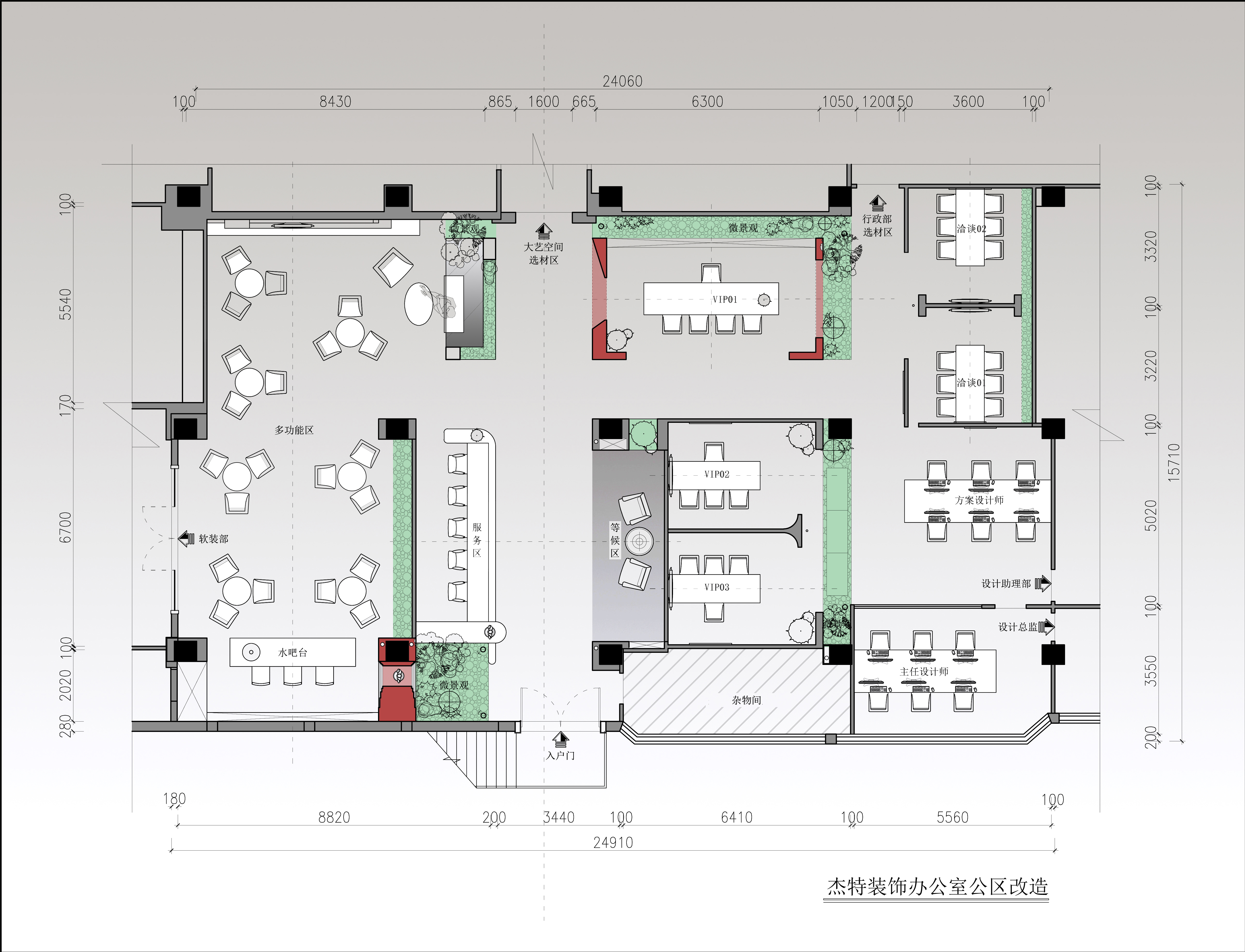
项目定位:作为深耕于桂林十多年的装修设计公司,一直名列前茅,本案为该公司公区升级改造,设计理念源于穿城而过的漓江水,一山一水一幅画,感受山水间的那份宁静,乐在其中,上班也是一种享受。
-
空间意境:偶尔,有一鸬鹚扎进漓江中,打破山水间的宁静,在一圈圈涟漪尚未消失之际,鼓着粗壮脖子的鸬鹚破水而出,轻轻的飘落在小舟上……
轻微荡漾的漓江水让我们感到了无比的清净,远离闹市的喧嚣纷扰,没有了风驰电掣,车水马龙,没有了高楼林立,热闹非凡,一杯咖啡,一杯清茶,一山一水,在这山水间,感受那清净的一方天地,一个世界,即是工作,即是享受。 -
空间布局:移步换景,空间与空间隔而不断,互相交融,随处可见的景观点缀设计即是对空间布局美化作用,同时对于每天紧张工作的员工也起到恰到好处的减压作用。
-
设计选材:普通的材料一样能达到设计的高级感,大面积饰面采用抗裂砂浆只为表达那份原生态的质朴之情,低碳环保,红色乳胶漆的点赞提升视觉冲击力,打破沉闷的空间感,激发员工的热情和想象力,提高工作效率,顶面镜面板运用丰富了空间的层次,张弛有度,无限向上的精神激励着每一个员工。
-
用户体验:人人都是自媒体,打造个性化装饰设计办公空间的网红打卡点,传播在于大家手指一挥间。
接待厅
接待厅
偶尔,有一鸬鹚扎进漓江中,打破山水间的宁静,在一圈圈涟漪尚未消失之际,鼓着粗壮脖子的鸬鹚破水而出,轻轻的飘落在小舟上……
轻微荡漾的漓江水让我们感到了无比的清净,远离闹市的喧嚣纷扰,没有了风驰电掣,车水马龙,没有了高楼林立,热闹非凡,一杯咖啡,一杯清茶,一山一水,在这山水间,感受那清净的一方天地,一个世界,即是工作,即是享受。
一山一水一幅画
镜面延伸,张弛有度,无限向上的精神。
张弛有度,无限向上的精神。
空间与空间隔而不断,互相交融。
移步换景,空间与空间隔而不断,互相交融,随处可见的景观点缀设计即是对空间布局美化作用,同时对于每天紧张工作的员工也起到恰到好处的减压作用。
象山水月红盒子
红盒子
框景
象山水月
圆
象山水月
镜面延伸,张弛有度,无限向上的精神。
一线天
象山水月
犹抱琵琶半遮面
多功能厅
框景
移步换景,空间与空间隔而不断,互相交融,随处可见的景观点缀设计即是对空间布局美化作用,同时对于每天紧张工作的员工也起到恰到好处的减压作用。
0
0

认证 · 让您身份增值