《刘府》


作品说明
- 项目类型:别墅
- 项目地点:桂林市
- 建筑面积:1000.0000㎡
- 项目造价:550.0000万元
- 主案设计师: 欧建书
- 参与设计师:周扬
- 竣工时间:2022-05-30
- 设计机构:桂林品之筑设计有限公司
-
项目定位:用现代的设计手法演绎奢华的文化意蕴,提取奢华元素并加以简化和丰富,结合现代的文化和审美追求,用空间的语言来传达轻奢文化内涵。整体内敛庄重,彰显低奢的人文气度和府门涵养。优雅沉静,是一种内涵,一种力量,一种潜藏心灵深处的感染力。
-
空间意境:美学素养和设计意识完美融合,空间在简洁中散逸出内敛沉稳的气息,让气质与自然气韵交融。品味文化,感悟生活,在这里寻求最合适的表达,打造一种追求完美、追求品味的生活态度。
-
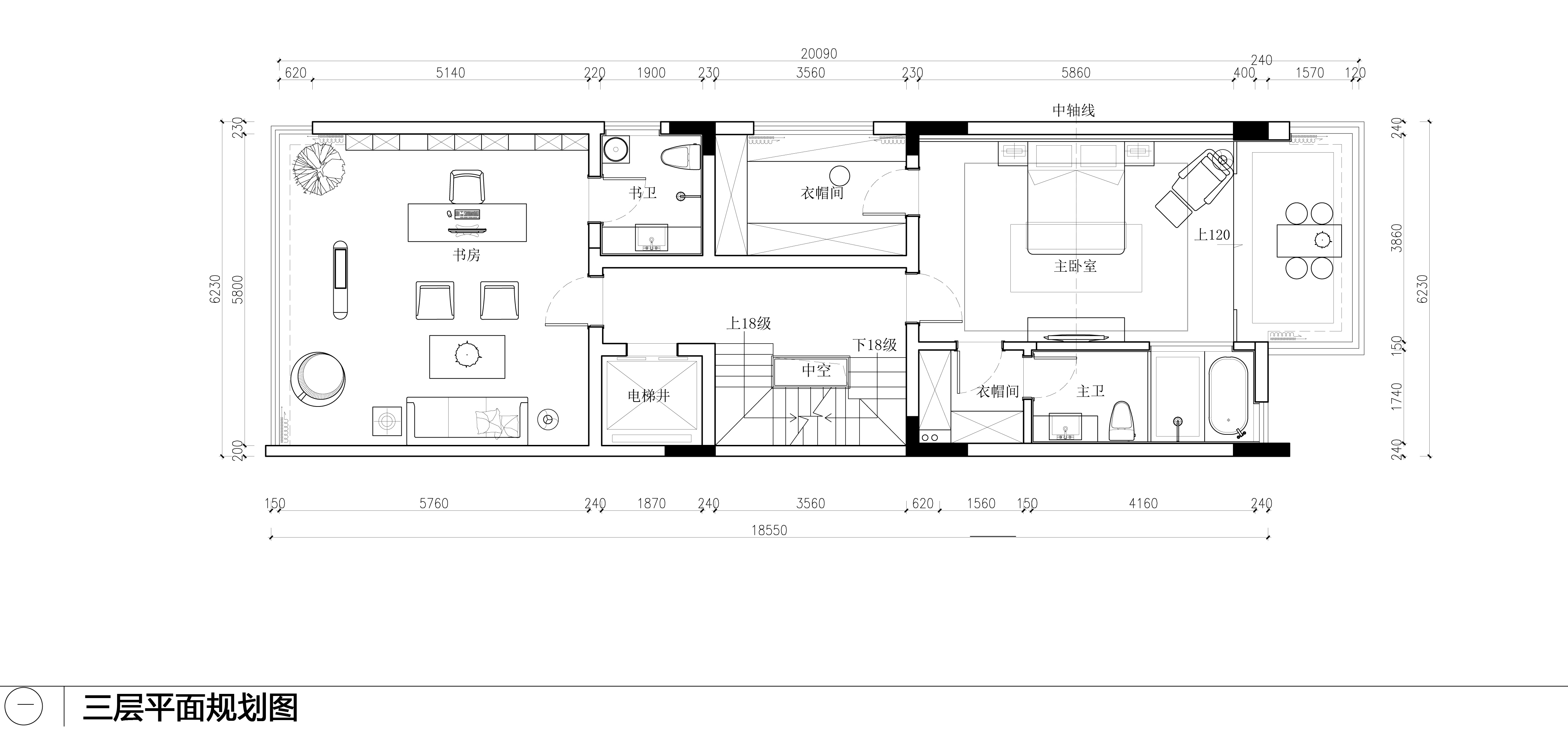
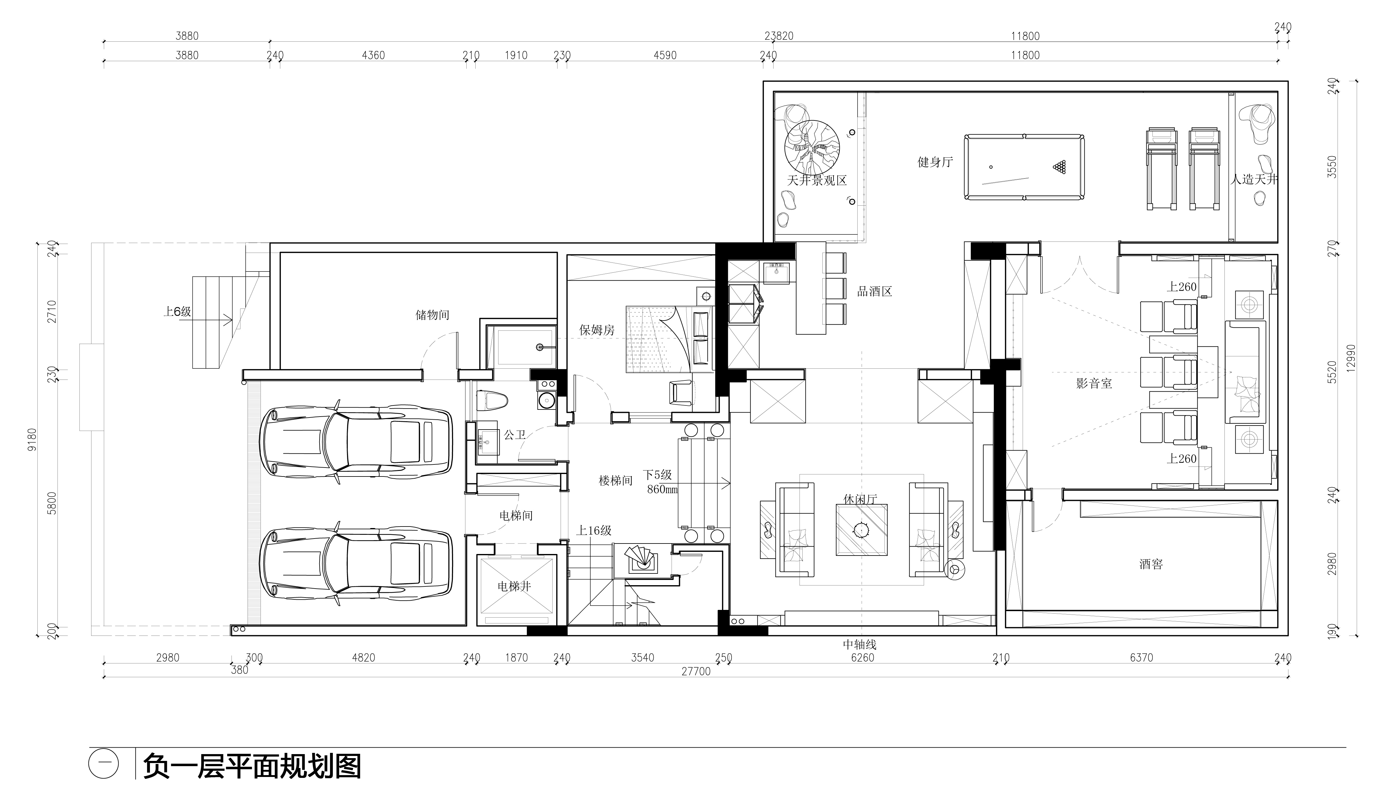
空间布局:中轴对称的设计手法,使空间格局的庄重,并富有仪式感。地下室主要作为男主人呼朋唤友的接待空间,与楼上居住空间动静分开。
-
设计选材:整个空间追求厚重典雅基调,石材的奢华、烟熏色木饰面的稳重、墙布的温馨,衬出别墅的低调奢华、庄重典雅。
-
用户体验:“风格即生活”的理念无处不在。内敛、庄重、结构严谨、谦逊朴实,彰显大宅风范,多样化表达反映了业主的需要。
地下室私人会所休闲厅001
地下室私人会所休闲厅002
地下室私人会所休闲厅003
地下室私人会所休闲厅004
地下室私人会所休闲厅005
地下室私人会所休闲厅006
地下室私人会所休闲厅007
地下室私人会所休闲厅008
地下室私人会所品茗区
地下室私人会所天井、健身区
地下室私人会所健身区
地下室私人会所影视厅
一楼玄关
一楼过厅、楼梯间001
一楼过厅、楼梯间002
一楼会客厅001
一楼会客厅002
一楼过厅
一楼厨房、餐厅
二楼女孩房
三楼书房001
三楼书房002
三楼书房003
三楼主卫001
三楼主卫002
负一层平面规划图
一层平面规划图
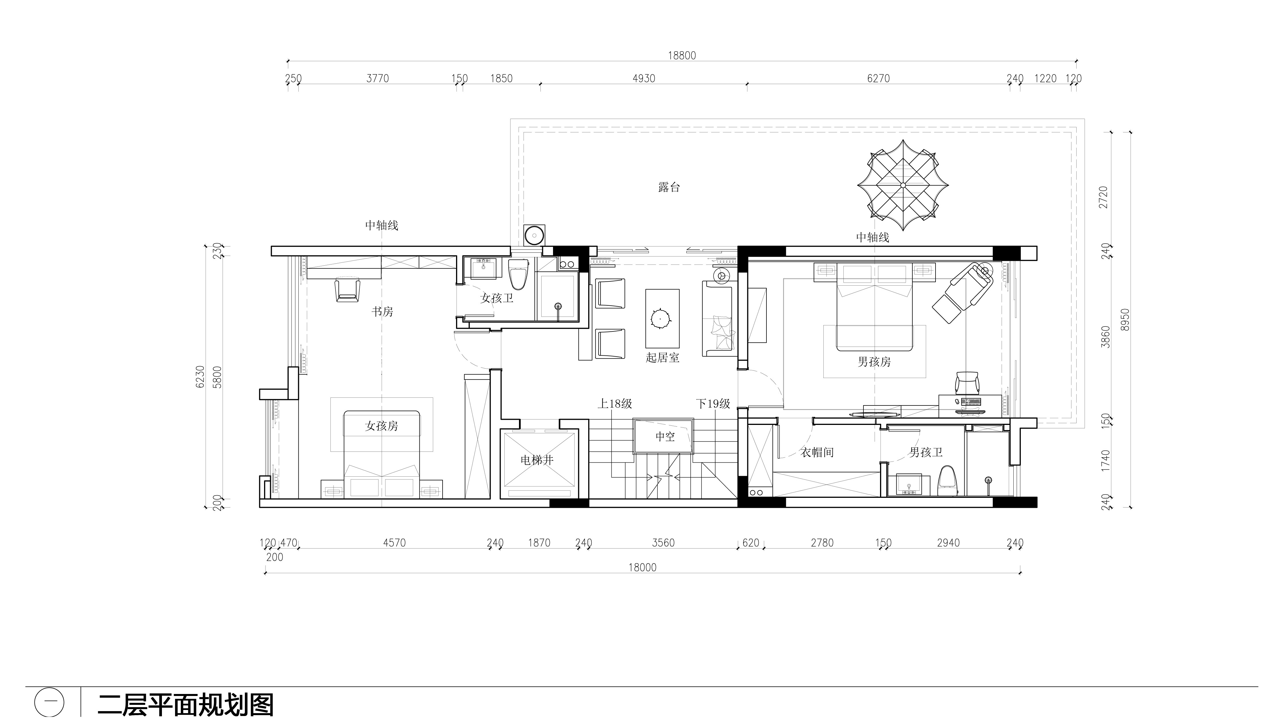
二层平面规划图
三层平面规划图
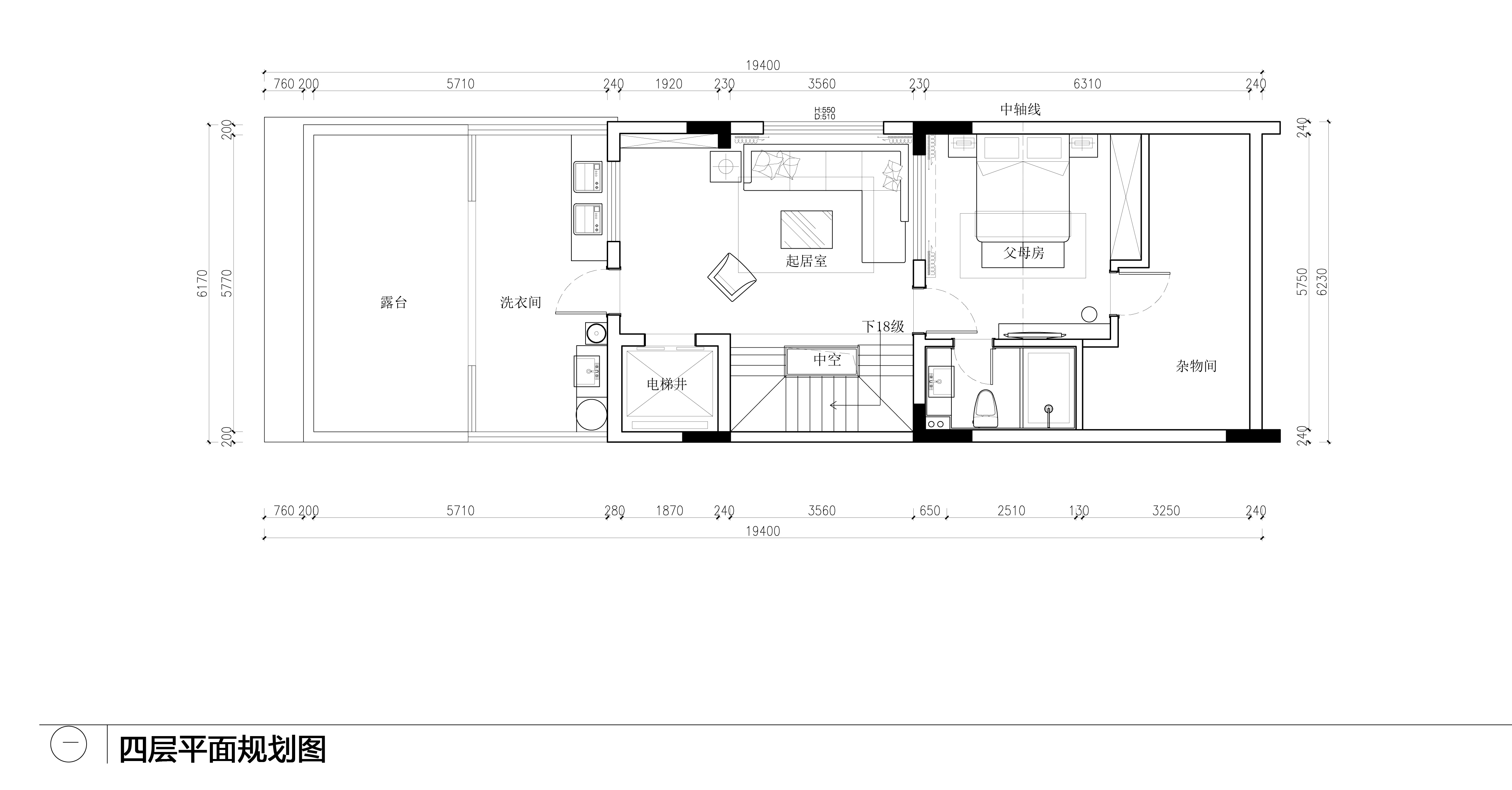
四层平面规划图

