漓江壹号·龙瑞阁

作品说明
- 项目类型:住宅公寓
- 项目地点:桂林市
- 建筑面积:130.0000㎡
- 项目造价:48.0000万元
- 主案设计师: 欧建书
- 参与设计师:欧建书、周扬
- 竣工时间:2022-12-01
- 设计机构:桂林品之筑设计有限公司
-
项目定位:故土难舍,外地工作生活的主人特为两老在故乡打造的舒适养老居所,主人偶尔带孩子回来度假。优雅沉静,是一种内涵,一种力量,一种潜藏心灵深处的感染力。
-
空间意境:美学素养和设计意识完美融合,空间在简洁中散逸出内敛沉稳的气息,让气质与自然气韵交融。品味文化,感悟生活,在这里寻求最合适的表达,打造一种追求完美、追求品味的生活态度。
-
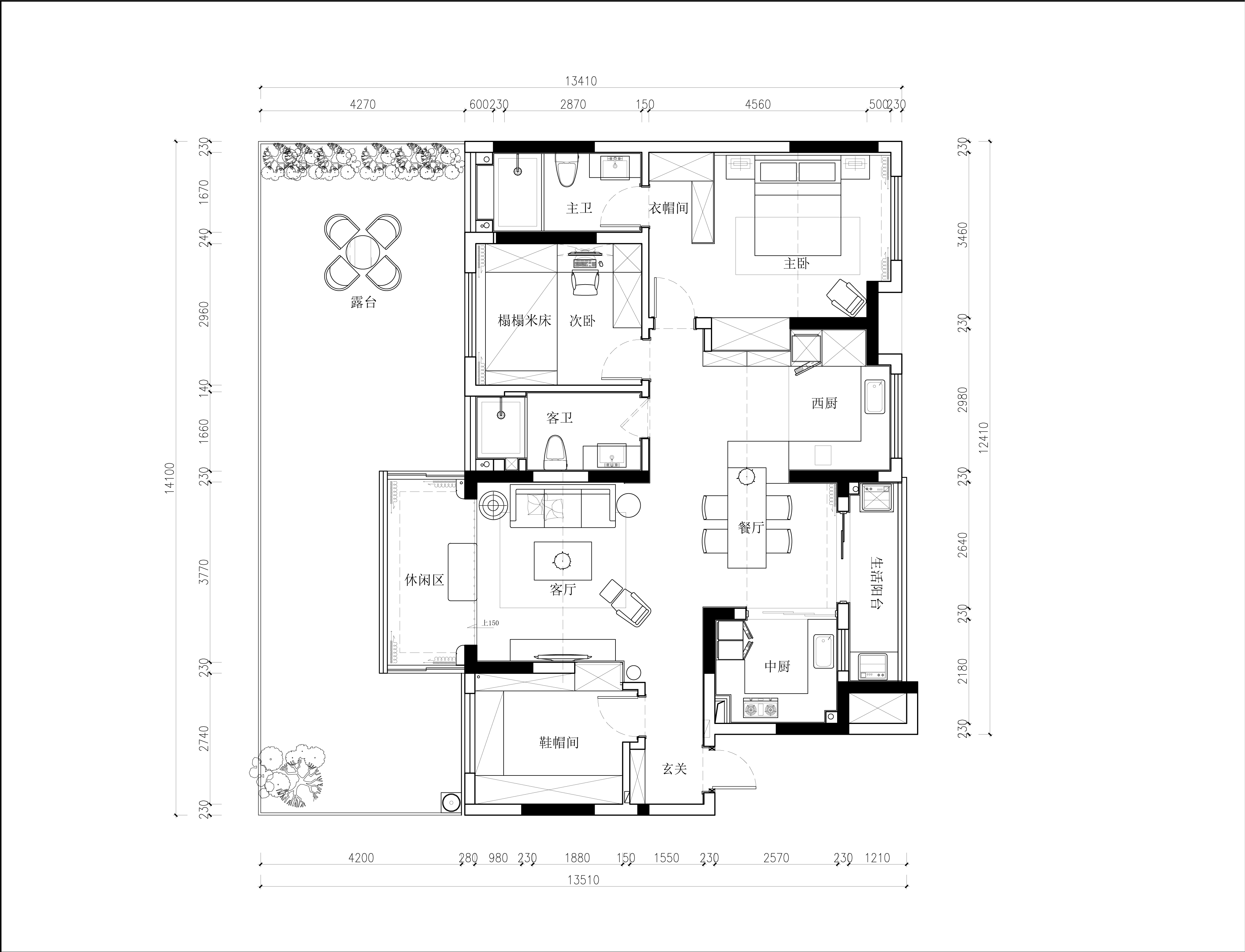
空间布局:对美食喜好要求厨房烹饪空间、储物空间足够宽敞,在保证基本功能外舍弃两个房间改为鞋帽间和西厨,开放式的西厨空间拓展了居家公区的视野,彰显大宅风范。
-
设计选材:整个空间追求舒适典雅基调,暖色调木饰面、墙布,衬出空间的温馨和典雅。
-
用户体验:“风格即生活”的理念无处不在。简约、内敛、结构严谨、谦逊朴实,彰显大宅风范,多样化表达反映了业主的需要。

