阿比克健身万福店


作品说明
- 项目类型:休闲娱乐
- 项目地点:桂林市
- 建筑面积:1720.0000㎡
- 项目造价:150.0000万元
- 主案设计师: 欧建书
- 参与设计师: 周扬
- 竣工时间:2021-06-30
- 设计机构:桂林品之筑设计有限公司
-
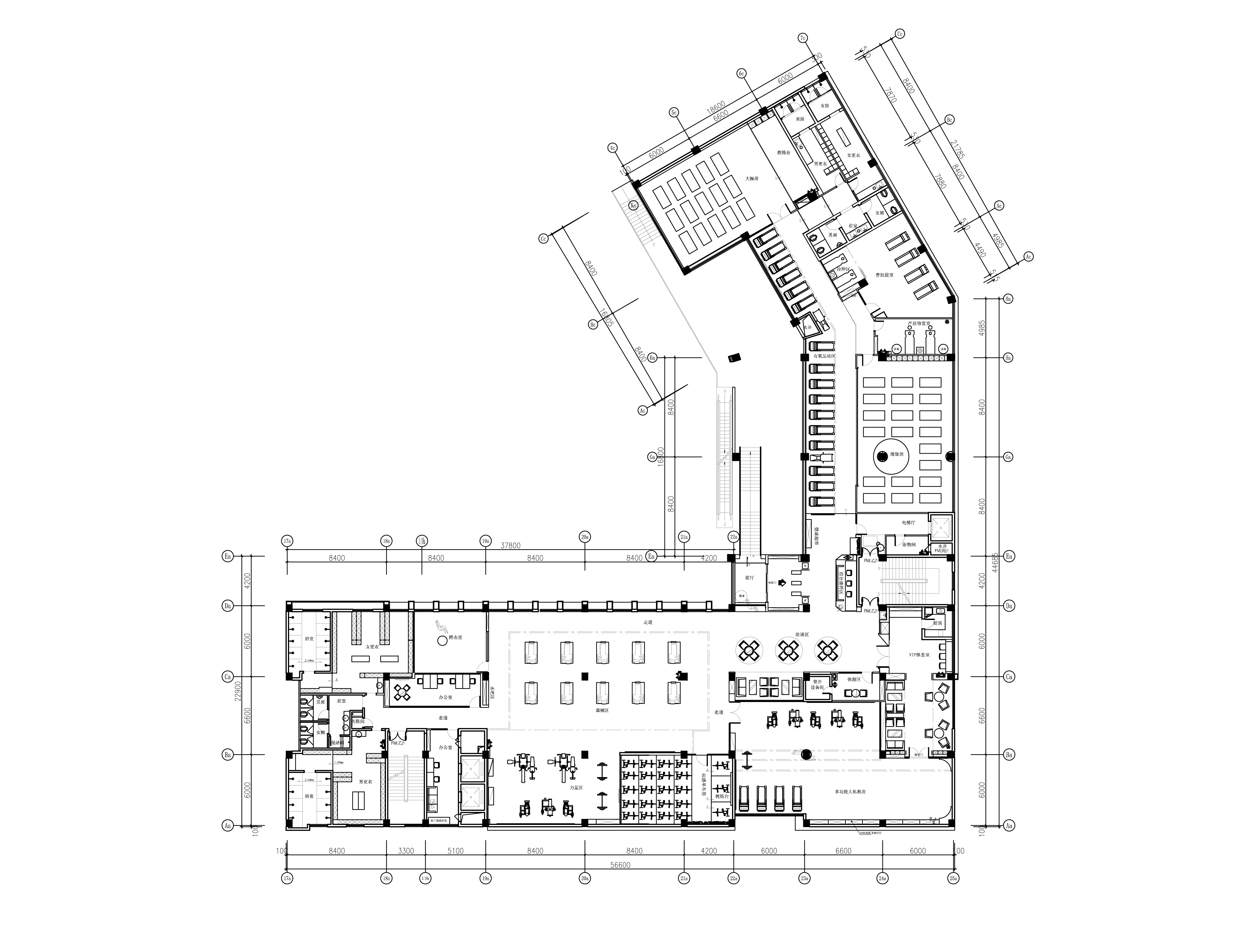
项目定位:作为桂林本土最大的健身连锁企业,在广西拥有近20多家分店,本案为换代后第一店,将来连锁店将以此为蓝本升级改造,因此设计创意中考虑设计元素的可复制性,便于统一店面空间视觉系统。
-
空间意境:深灰色为空间主基调,为打破健身空间一贯的性冷淡,通过极具视觉冲击力的梅尔诺酒红色为导向,辅以部分蓝色,点缀些许黄色,勾勒时尚、活力、绚丽的立体空间,以开放、纯粹与韵律作为空间的主题。
-
空间布局:蜿蜒曲折的动线即是为了满足功能划分,同时增加了空间尺度感与自由度,而随着灯光和材质变化、色彩之间的转折,使空间界面互为穿插和延伸,形成丰富而递进的空间场景。隔尔不断的设计手法为了保证功能空间的独立性基础上,增加空间穿透感和映入室外光影,最大限度的减少灯光照明,低碳环保,同时形成一个既相互独立而又相互连贯的空间系统。
-
设计选材:公共空间深灰色的哑光瓷砖即有效避免炫目的光污染又达到耐久性,绚丽的彩色乳胶漆使空间色彩更为丰富,同时有效降低工程总造价,。
-
用户体验:桂林热爱健身一族必到的网红打卡点,繁忙工作之余挥洒汗水,拒绝躺平一族,远离亚健康。

