《魅力东方》



作品说明
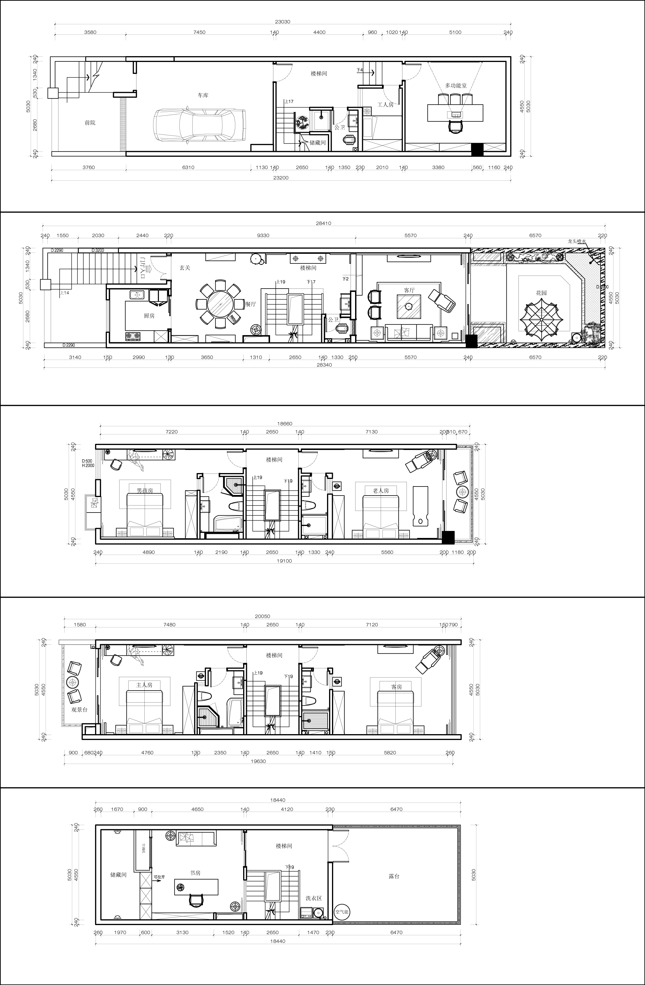
- 项目类型:别墅
- 项目地点:桂林市
- 建筑面积:480.0000㎡
- 项目造价:120.0000万元
- 主案设计师: 欧建书
- 参与设计师:周扬
- 竣工时间:2020-07-01
- 设计机构:桂林品之筑设计有限公司
-
项目定位:新中式风格不是纯粹的元素堆砌,而是通过对传统文化的认识,将现代元素和传统元素揉合在一起,寻找其最佳结合点。 以现代人的审美需求来打造富有传统韵味空间,让传统艺术在当今社会得到合适的体现。
-
空间意境:无主灯设计的现代简约风和厚重的新中式家具,将现代元素和传统元素揉合在一起,寻找其最佳结合点。“风格即生活”的理念无处不在。
-
空间布局:本案对空间进行了改造,在局部的装饰方面做得比较精致和纯粹,使客厅的空间显得更整齐大气。
-
设计选材:成品木饰面避免在工地现场油漆,减少施工噪音,采用灰色柔光面瓷砖,降低灯光的炫目感。
-
用户体验:实用、结构严谨、谦逊朴实,考虑周到且优雅别致,可以自然地融入到整体的空间环境中,形式的多样化表达反映了甲方宁静致远的需求。

