中国罗汉果文化展览馆


作品说明
- 项目类型:展示
- 项目地点:桂林市
- 建筑面积:1540.0000㎡
- 项目造价:300.0000万元
- 主案设计师: 欧建书
- 参与设计师:周扬
- 竣工时间:2019-11-15
- 设计机构:桂林品之筑设计有限公司
-
项目定位:中国特色小镇是由国家发展改革委、财政部以及住建部决定在全国范围开展特色小镇培育工作,计划到2020年,培育1000个左右各具特色、富有活力的休闲旅游、商贸物流、现代制造、教育科技、传统文化、美丽宜居等特色小镇,引领带动全国小城镇建设。
罗汉果文化展览馆是桂林经开区罗汉果特色小镇的对外窗口,它使更多的人了解罗汉果,让更多的资源参与到罗汉果产业,让更多的企业落户经开区,达到筑巢引凤的效果,打造千亿罗汉果产业链。 -
空间意境:罗汉果文化展览馆地处的中国桂林,一方水土一方人,以浓郁的桂林山水文化为依托,借助建筑、空间、公共艺术和多媒体的“声”“光”“电”等高科技手段进行展示,充分演绎罗汉果文化产业的“前世今生”,面向未来,生生不息。
-
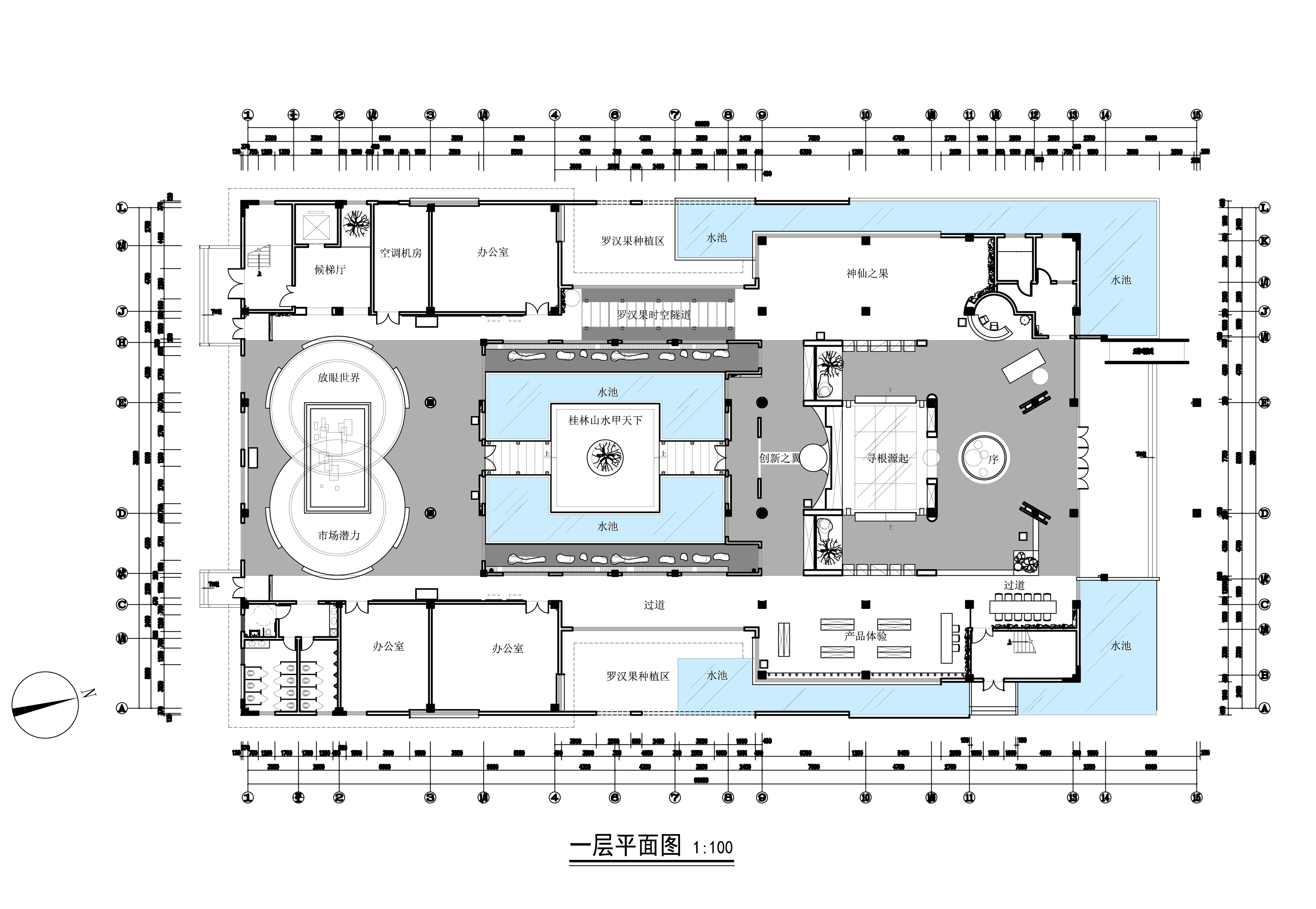
空间布局:桂林人因罗汉果而长寿,长寿元素贯穿整个空间。在空间划分上,运用了中国传统建筑元素的“隔”、“障”、“框”、“透”等手法来分隔组合,同时紧密结合功能需求, 按寻根缘起、神仙之果、时空隧道、创新之翼、市场潜力、放眼世界、电商扶贫、产品体验等进行分区,整体视觉、动线流畅,半遮半掩的功能划分,隔而不断,避免了空间设计中的死角区域,保证空间之间的通透性和独立性以及连贯性,犹抱琵琶半遮面,罗汉果衍生的长寿元素为空间增添浓郁的文化意蕴和趣味。
-
设计选材:风景如画的桂林山水、动感的造型设计、多媒体那震撼人心的“声”“光”“电”等高科技运用、生机盎然的原生态罗汉果......
-
用户体验:设计符合甲方要求,完美呈现。

