-
项目定位:本案超越传统销售空间定位,打造一个立体化的品牌体验馆与未来生活方式展示场。设计通过双线叙事结构,将“商业体验”与“销售功能”并行展开,共同讲述一个关于从容、自然、人文的“慢生活”故事。其核心是构建一个情感先行的场所,让访客在第一步踏入时,便能直观感受未来社区的生活质感与品牌价值。
-
空间意境:空间围绕“双入口-双核心一枢纽”结构,营造三种核心场景:
感性序章场景(东侧):“玻璃盒子”式的体验区,以咖啡吧、文创展、观景台为核心,营造如社区客厅般的松弛感与文艺氛围,是品牌的情感触点与记忆锚点。
理性对话场景(西侧):功能完备的销售中心,涵盖从接待到签约的全流程,氛围沉稳、专业、尊崇,是价值理性沟通的场所。
自然呼吸场景(中部):作为连接枢纽的开放式庭院与水洗石过渡区,引入天光云影,实现了从室内人造场景到户外自然意趣的转换,寓言未来社区的生态与漫步生活。 -
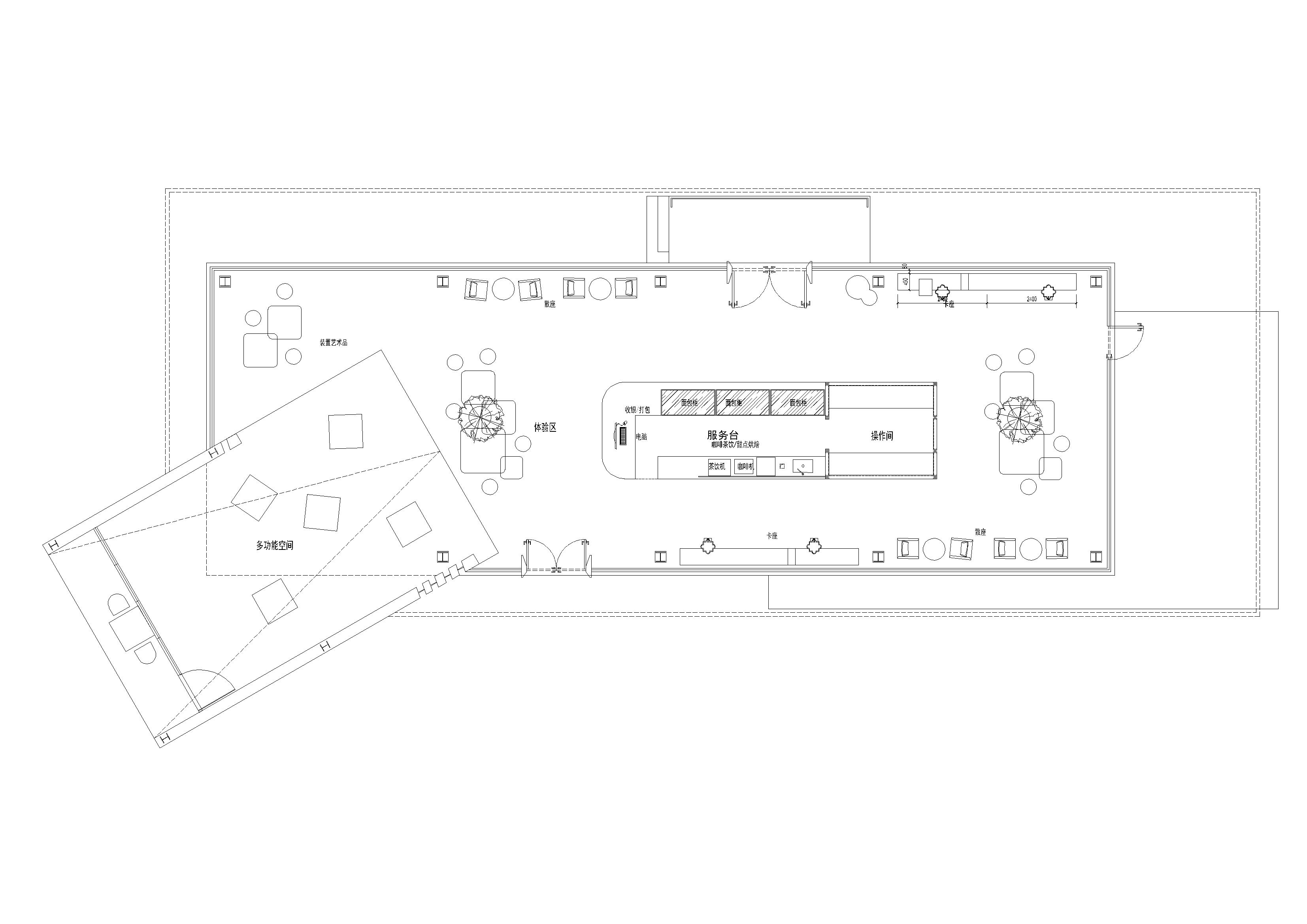
空间布局:布局采用清晰的双线并行与有机连接模式,尊重访客的自主选择权:
1. 入口分流:北侧临街面设东、西双入口,分别导向“体验区”与“销售中心”,实现人流与体验节奏的自主动线分流。
2. 体验区布局:东侧为开放式大空间,核心布置咖啡吧与文创展区;西南角设置镜面地面观景台,对接落地窗与小园林,形成视觉焦点与打卡点。
3. 销售区布局:西侧按功能逻辑序列展开:接待前台 → 品牌墙 → 中心沙盘区 → 深度洽谈区/VIP室 → 水吧及儿童托管区,动线流畅高效。
4. 核心连接:两个功能区之间通过一个开放式庭院(体验区南门外)及过渡带自然衔接,形成“体验-自然-销售”的流畅闭环。 -
设计选材:材料与工艺强调温暖感、自然质感和视觉艺术性:
体验区:大量运用温润木材(层叠木结构、木构吊顶)、通高落地玻璃,营造通透与温暖基调。镜面材料(地面、顶部)的巧妙运用,拓展视觉深度,创造梦幻奇观。
销售区:侧重材质的高级质感与整体沉稳感,如石材、金属、柔和的织物与艺术涂料,并辅以木质元素与雅致陈设调和温度。
过渡区:庭院采用水洗石等自然质感铺地,强调与户外环境的融合。
灯光设计:以温暖的点位照明与氛围光为主,重点塑造体验区木结构的韵律感与销售区的柔和舒适感。 -
用户体验:设计以多层次、自主性的体验旅程为核心目标:
自主选择体验:双入口设计让用户可根据当下心绪,自由选择从“感性体验”或“理性咨询”开启旅程,尊重个体差异。
沉浸式感官体验:在体验区,融合咖啡香气、文创触感、木结构视觉韵律、镜面反射奇观与园林框景,营造可驻足、可打卡、可传播的多维感官记忆。
无忧的理性体验:销售区提供专业、私密、高效的服务流程,同时兼顾家庭需求(儿童托管),让价值沟通在舒适无扰的氛围中进行。
自然过渡与想象:庭院作为“呼吸地带”,让用户在场景转换中体验未来社区的漫步与自然连接,完成从品牌认知到生活向往的情感升华。
0
0

认证 · 让您身份增值
164