-
项目定位:本案旨在超越传统销售场所,打造一个以“院落”为核心、融合东方美学与现代生活方式的沉浸式体验空间。设计摒弃符号化的传统模仿,转而捕捉东方空间的精神内核——通过序列、光影与材料的诗意叙事,构建一场从“进入”到“发现”的完整旅程。它不仅是一个售楼处,更是一个未来社区生活的立体预览和情感连接的容器。
-
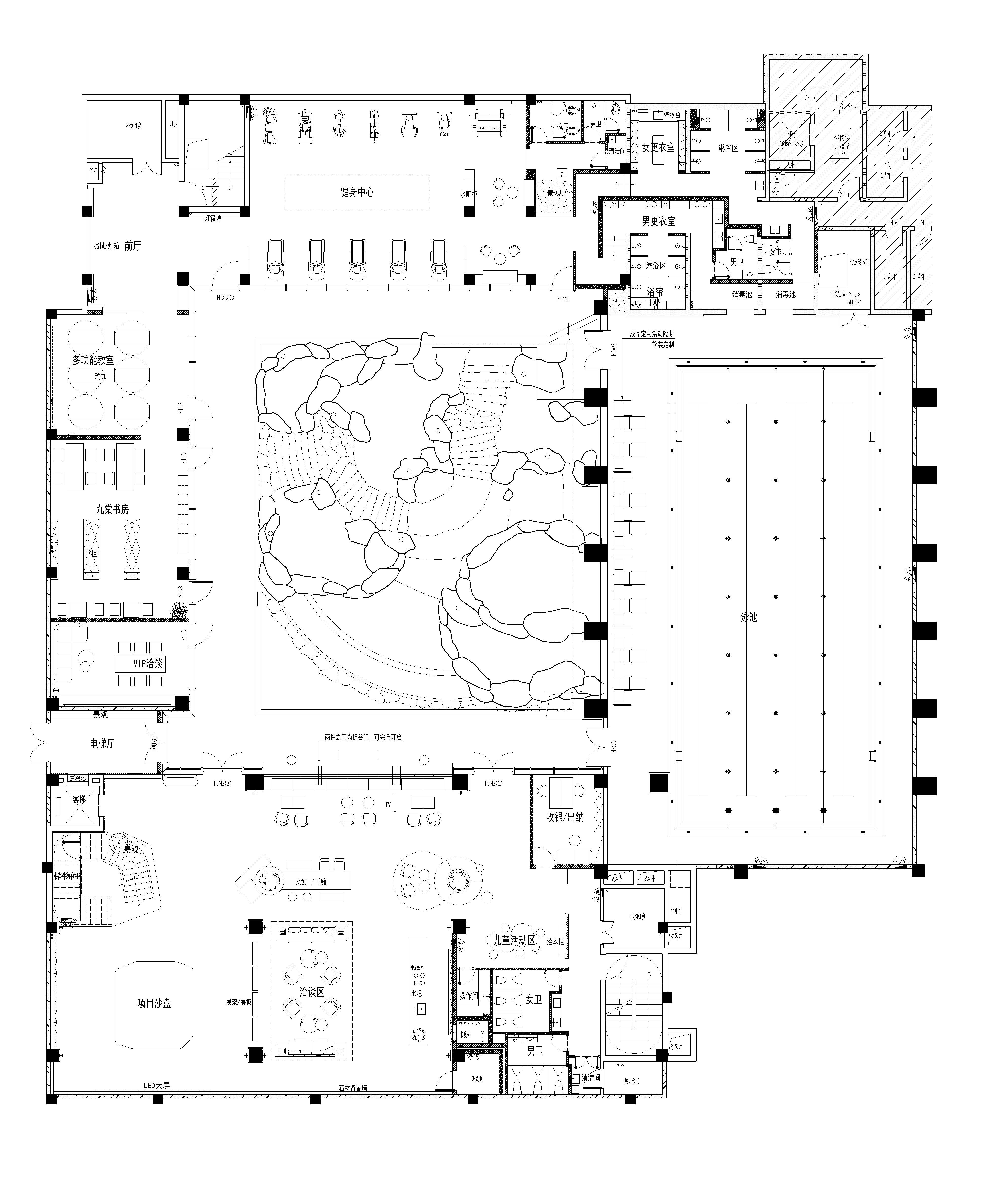
空间意境:整体空间围绕一个下沉式中央庭院展开,形成“院—廊—坊”的核心场景结构:
· 入口场景:轻与重的对话——悬浮石材与厚重基座构成戏剧性对比,隐喻从城市喧嚣到栖居静谧的过渡。
· 光厅场景:边界消融——通高玻璃折叠门将庭院景致引入室内,形成内外交融的动态全景画。
· 庭院回廊场景:静观与漫游——360度环形走廊成为多角度观景平台,串联垂直与水平动线。
· 生活坊场景:功能与景观共生——四大功能体块(展示洽谈、游泳馆、学堂、健身房)环抱庭院,直观演绎未来社区生活片段。 -
空间布局:遵循清晰的叙事性序列,营造步移景异的探索感:
1. 水平序列:入口 → 迎宾大厅 → 下沉庭院 → 环形回廊。
2. 垂直过渡:北侧楼梯连接首层与负一层,完成从“展示空间”到“生活场景”的转换。
3. 负一层核心布局:以庭院为中心,四坊环布:
· 南侧:综合性展示与洽谈中心(整合沙盘、水吧、卡座、儿童区)。
· 东侧:游泳馆。
· 西侧:六点半学堂。
· 北侧:健身房。
4. 关键设计:洽谈区北墙采用可完全开启的折叠窗系统,实现与庭院的空间贯通。 -
设计选材:材料运用强调现代性、自然感与艺术性的结合,服务于整体空间氛围:
1. 建筑语言:悬浮石材墙面、通高玻璃折叠系统、灰色纹理大理石地面,塑造现代简约而富有张力的基调。
2. 功能空间材质:
· 展示洽谈区:深灰大理石地面与白色顶面构成纯净背景。
· 游泳馆:顶面采用波浪造型结合灯光,模拟水光潋滟的艺术效果。
· 六点半学堂:温润木地板与通透玻璃营造明亮温馨感。
3. 设计理念:材料选择克制而精准,旨在让空间结构、自然光影与未来生活场景成为真正的主角。 -
用户体验:设计全程以人的感知与活动为核心,构建多层次体验:
· 沉浸叙事体验:通过层层递进的空间序列,引导用户完成一场从好奇到发现的沉浸之旅。
· 五感融合体验:视觉(光影景观)、触觉(材料质感)、空间感(内外流动)被充分调动。
· 生活预体验:用户在洽谈、参观、漫步或休憩中,能真切感知未来社区的健康、教育、休闲与社交生活场景。
· 情感连接体验:庭院作为精神内核,提供了静观、对话与连接的场所,超越交易功能,建立品牌与用户的情感纽带。
0
0

认证 · 让您身份增值
144