-
项目定位:本项目并非简单的风格展示,而是以 “宁静陪伴” 为核心情感导向的居住方案策划。我们定位为 “都市减压舱” ,旨在为高压力的现代都市家庭,打造一个能剥离外界喧嚣、回归生活本真的情感容器。设计超越视觉表象,通过材质触感、柔和色彩与安全细节,营造具有疗愈感和温度感的生活场景,直击目标客群对品质、健康与情感联结的深层需求。
-
空间意境:在环境风格的塑造上,创新点在于构建 “视觉舒缓”与“触觉温暖” 的多维感知体验。
色彩与光感: 整体以浅灰、暖白、木色为基调,如同柔光滤镜,奠定宁静氛围。家具为空间注入一丝优雅且柔软的心理慰藉,与黑白纹理石材的冷峻艺术感形成有趣的感官平衡。
材质对话: 场景的核心创新是 “刚柔并济”的材质叙事。冷峻的浅灰石材地面、黑白纹理石材背景墙,与温润的木纹墙板、暖灰色地毯及圆角家具形成鲜明对比。这种对话不仅丰富了视觉层次,更在不同接触面上创造了丰富的触觉体验,使空间场景生动而富有感染力。 -
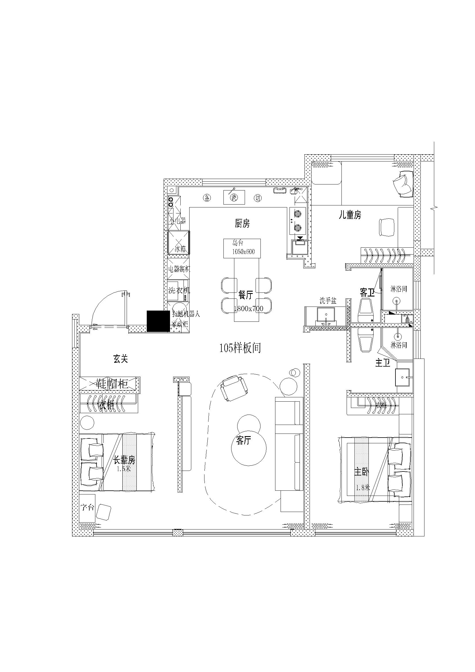
空间布局:1. 公共区域: 采用一体化设计,客厅、餐厅无缝衔接,强化家庭互动。背景墙与餐台的一体化石材设计,是布局的一大亮点,它既是视觉焦点,又作为功能性的空间软隔断,暗示了功能分区,确保了空间的通透性与整体感,体现了现代“去客厅化”社交生活理念。
2. 私密区域: 各卧室在统一温润的基调下,进行个性化功能布局。主卧强调套间般的私密与仪式感;次卧通过浅木纹墙面营造酒店式舒适休憩感;儿童房的布局创新则完全围绕“安全与成长”展开,所有家具圆角化处理、预留充足活动区域,布局灵活可变,适应孩子不同成长阶段的需求。 -
设计选材:选材策略强调 “环保性、耐久性与经济性” 的平衡,实现低碳与精致的统一。
1. 低碳与经济性创新:
本地化与标准化: 大量选用市场普及度高、供应链稳定的浅灰色石材、白色大理石及国产优质木饰面,减少长距离运输的碳足迹,并有效控制成本。
2. 耐久与低维护: 地面石材、墙板等主要材料均选择耐磨损、易清洁的表面处理,减少后期维护成本与资源消耗。白色大理石在卫浴空间的集中使用,通过标准化加工,减少了材料浪费。
3. 环保健康: 木地板、木饰面及涂料均明确采用环保标准(如E0级、低VOC涂料),儿童房家具采用环保水性漆,确保即时入住的安全健康,长远降低健康风险。
4. 美学价值呈现: 通过将黑白纹理石材等少量高辨识度材料用于关键节点(背景墙、餐台),形成记忆点,而大面积采用性价比更高的暖白墙板、浅色木纹等基础材料进行衬托,实现“小奢华、大简约”的选材智慧。 -
用户体验:作品投入使用后,旨在为用户提供一种 “即刻的放松与持续的愉悦” 的居住体验。
1. 即时效果: 步入空间,用户能立即被宁静、温馨的氛围包裹。柔和的色调与自然光影缓解视觉疲劳,多样的材质触感丰富探索乐趣。儿童房的安全设计让家长彻底安心。
2. 长期体验:
对家庭男/女主人: 客厅的艺术感与卧室的宁静感,分别提供了优质的社交展示与深度的个人休憩场景,满足其社会属性与私密需求的双重身份。
对长辈与儿童: 全屋流畅的动线、无障碍设计细节(如圆角家具)、温和的灯光与舒适的材质,确保家庭成员的安全与舒适,促进家庭互动。
3. 情感共鸣: 整体空间如同一套沉稳的背景音乐,不喧宾夺主,却能很好地承载家庭生活的点点滴滴。它并非瞬间的惊艳,而是经得起时间考验的、能伴随家庭共同成长的“耐看、耐住”的温暖场所,最终实现“房子”到“情感归宿”的用户体验升华。
0
0

认证 · 让您身份增值
161