-
项目定位:零叁幺幺咖啡厅(0311 COFFEE)位于河北正定古城景区内,是一个以咖啡、轻食与社交功能为核心的现代休闲空间。项目旨在通过极简的当代设计语言,与古城传统肌理形成对话,打造一个兼具美学张力与年轻活力的城市打卡地标。其定位不仅是一家咖啡馆,更是一处嵌入历史街区的“白色微光”,为古城注入新的文化呼吸与社交场景。
-
空间意境:1.外部过渡场景:宽大的白色檐下空间与古建台阶改造的座榻,形成半开放的“灰空间”,模糊了室内外界限,使顾客既能融入街景,又能享受户外氛围。
2.内部核心场景:以纯净的白色基调、裸露混凝土顶面与暖木色调家具构成主体氛围,通过线性灯光与点状星光引导视觉,红色渐变玻璃成为空间中的视觉焦点与色彩记忆点。
3.社交打卡场景:专业金属吧台、红色玻璃与光影布局共同营造出高辨识度的背景,适应年轻人拍照分享的需求,使空间同时承担饮品消费与社交传播的功能。 -
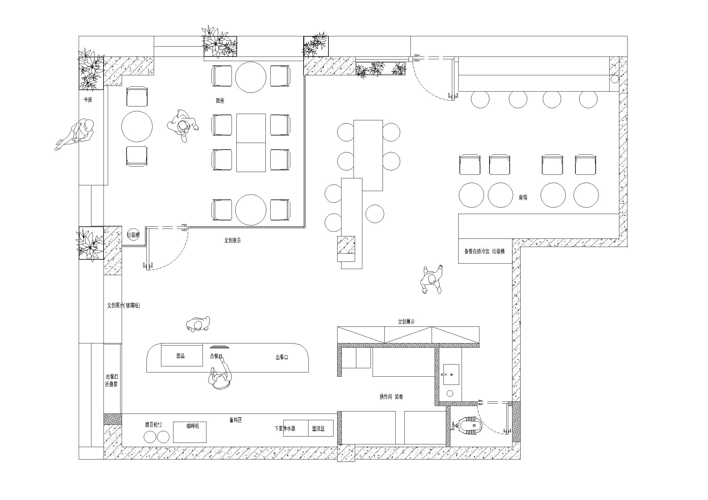
空间布局:· 入口与过渡区:通过白色檐下空间及台阶座榻营造进入前的停留体验,引导人流自然向内过渡。
· 主体经营区:开放式布局,结合吧台、散座与部分固定座椅,保持视线通透与动线流畅。
· 光影与焦点设置:入口上方线性光引导进入,天花点状星光营造氛围,红色渐变玻璃作为视觉落点,形成明确的空间节奏。
· 材质分区感知:混凝土天花与管道体现工业感,白色铝型材构筑框架,木制家具与海洋板饰面划分出温暖区域,在统一中形成材质对比。 -
设计选材:· 结构与基调材料:白色铝型材、金属板,构成简洁现代的骨架。
· 表面与肌理材料:裸露混凝土天花及管线,延续工业质感与古城朴拙气息的呼应。
· 温暖调和材料:橙色调木质桌椅、海洋板饰面,为空间注入温度与触感。
· 视觉点睛材料:红色渐变玻璃,形成色彩焦点与光影互动媒介。
· 过渡与界面材料:白色外墙涂料、户外座榻石材,衔接古城街道与现代室内。 -
用户体验:· 进入与过渡体验:从古城街道经半开放檐下空间逐步进入,自然完成从历史语境到现代场景的情绪转换。
· 感官与氛围体验:在粗犷混凝土与精细材质对比中,感受“冷中有暖”的平衡;在星光点点的光照与红色玻璃映衬下,获得沉浸式的视觉与心境体验。
· 社交与行为体验:空间提供适于独处、交流与拍照的多重座位布置,满足当代青年打卡分享与休闲社交的双重需求。
· 文化与在地体验:在极简现代容器中品尝咖啡的同时,仍能透过窗口与材质感知古城脉络,形成新旧对话的心理触动。
0
0

认证 · 让您身份增值
101