-
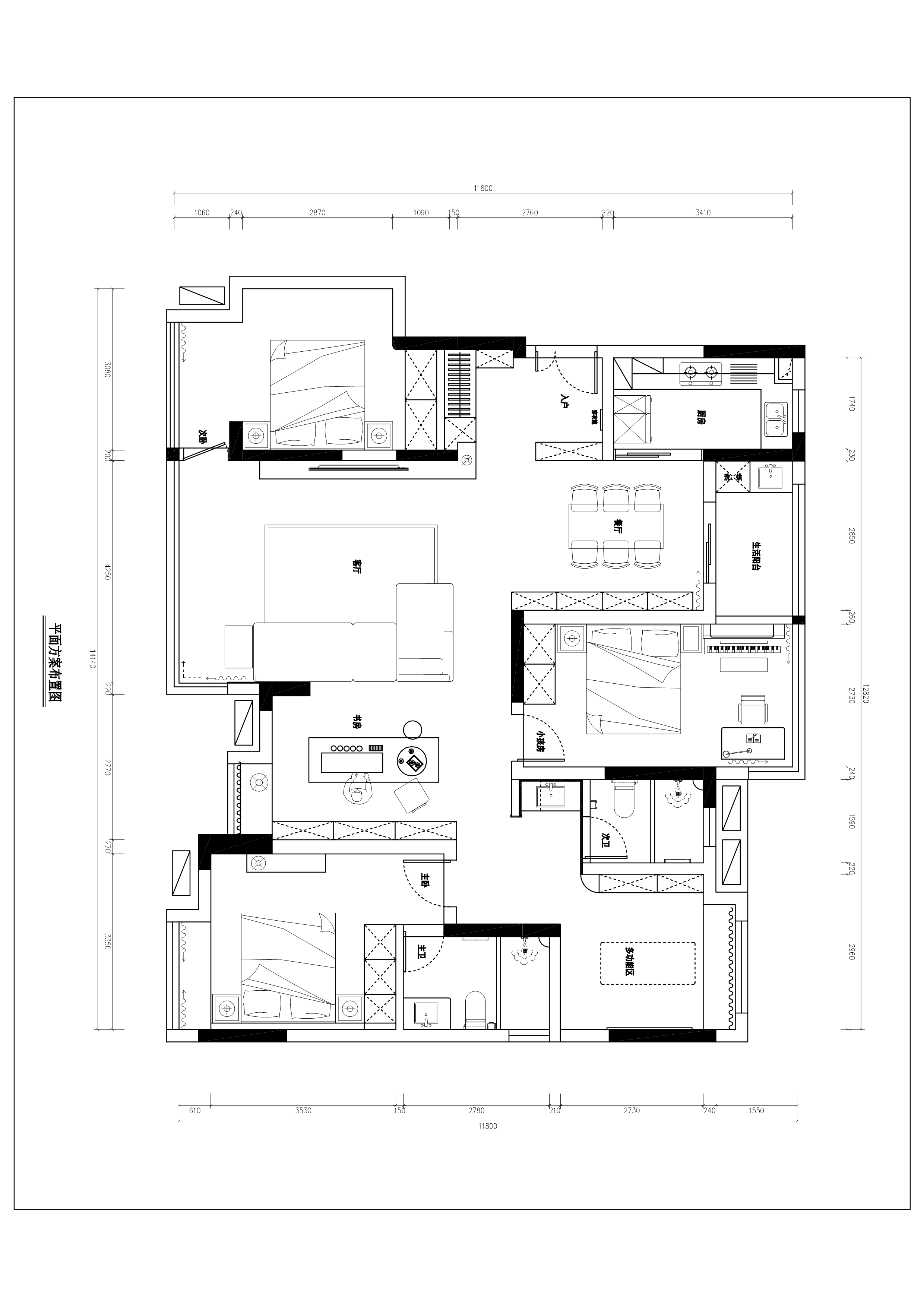
项目定位:以简约为主,最大化的利用公区位置,让一家人活动空间相对自由,没有门的隔断,尽量把公区的几个位置连接起来,成为一个大的公区,没有房门的阻碍。
-
空间意境:打破常规简约风的“黑白灰”单调组合,以深灰+黑色为基底,注入焦糖色皮革软装做暖调平衡,弱化冷硬感的同时,用低饱和度亮色提升空间高级感;采用无主灯设计+局部氛围光源的组合,摒弃单一顶灯的直白照明,通过多层次光影塑造空间层次感,让简约的“静奢感”在不同时段得以呈现。
-
空间布局:打破客厅和茶室的物理隔断,以“开放式+软隔断”的方式实现空间连通;利用定制柜体划分入户功能区,自然形成入户玄关功能;将客厅电视背景墙打造为空间视觉核心,电视嵌入式与悬浮柜的结合设计,向餐厅区、茶区延伸柜体线条,让各功能区围绕核心视觉点形成呼应,强化空间的整体性与秩序感。
-
设计选材:将大理石的冷硬质感、皮革的温润触感、金属细框的精致线条与绿植的自然肌理做混搭,不同材质在同一空间碰撞却不显杂乱,既保留简约风的通透感,有赋予简约的精致细节。
-
用户体验:这个空间布局与设计在居住感受上实现了实用性、舒适度与情感体验的三重提升;打破功能区的物理隔断后,在厨房备餐、餐厅用餐时,能随时与客厅的家人、品茶的朋友交流,避免了传统隔断带来的“空间孤立感”,强化了家庭与社交的互动氛围。
0
0

认证 · 让您身份增值
225