《山河公馆 秘密花园》
20
作品说明
- 项目类型:住宅公寓
- 项目地点:桂林市
- 建筑面积:139.0000㎡
- 项目造价:40.0000万元
- 主案设计师: 闫晶晶
- 竣工时间:2025.09
-
项目定位:本案为一对新婚夫妇的年轻人的家,不喜欢过于复杂的造型,喜欢简约的温馨,用软装装饰出复古的味道
-
空间意境:餐厅的壁炉跳跃的火苗让用餐变成了浪漫的约会,热情、奔放。
-
空间布局:用一个房间打开做开放式的书房,与客厅相连,使得空间感更强,让人一进到客厅,有一种“哇塞”的感觉
-
设计选材:免去复杂的背景墙和吊顶,用简约的PU线条做装饰的点缀,既美观又实用,恰到好处的起到了风格的装饰作用
-
用户体验:视频拍摄后,业主就迫不及待搬到新家了,惬意的空间里非常喜欢懒懒的躺在客厅小憩,下班后总是迫不及待的想回家,舒服温馨的感觉,让人舍不得入睡。
阳光肆意穿梭,洒下斑驳光影,透气性与复古美学并存。
移步客厅,这里无疑是家中的社交中心,绿色的沙发散发着浪漫且优雅的气息,仿佛一位历经岁月的智者,静静诉说着往昔故事。一株散尾葵野蛮生长,绿意冲破深褐主调,为空间注入热带的生命力,这里不仅是待客之地,更是一场设计对生活的温柔策展。
这里不仅是待客之地,更是一场设计对生活的温柔策展
根据居者的生活爱好,将一间卧室设计为开放式书房,将公区扩大,作用于陪伴的空间增长,铁艺与玻璃组合而成的隔断,以“去边界化”思维打通墙体,在划分空间的同时,保持视觉的通透,营造出独立而自由的休闲环境。不仅保留空间的通透性,更让电竞房成为家中一个多变、先锋的视觉焦点。
从书房打开推拉门,看客餐厅空间,格外惬意
客厅
餐厅一角格外温馨
席地而坐,随手拿本树,点上香薰,是下班后最喜欢的动作
下午时光,懒洋洋的品一杯咖啡,享受时光
喜欢看着烛光慢慢的跳跃
推开一扇门,便踏入一场跨越时空的热带叙事,踏入玄关,拱形门洞宛如时光的画框,框起了复古与现代的交融之景。
客厅
客厅空间
地毯的浪漫
复古吊灯投下柔和光晕,映照在花瓶上,伴着壁炉的温暖,餐厅每一次的用餐都像是一场浪漫的聚会。
餐厅
墙面简约的法式PU线条,勾勒出空间的优雅基调,床头的小吊灯宛如空间中的艺术乐章,将主卧雕琢出一个既具艺术氛围又高度实用的私享空间。
卫生间仿幻想成欧式古典花园,将复古灵感与实用功能深度融合,花纹壁纸宛如花园小径的石板,界定了空间层次。色彩丰富的地面花砖,像是花园里绽放的多彩花朵,为空间注入活力。
原始结构图
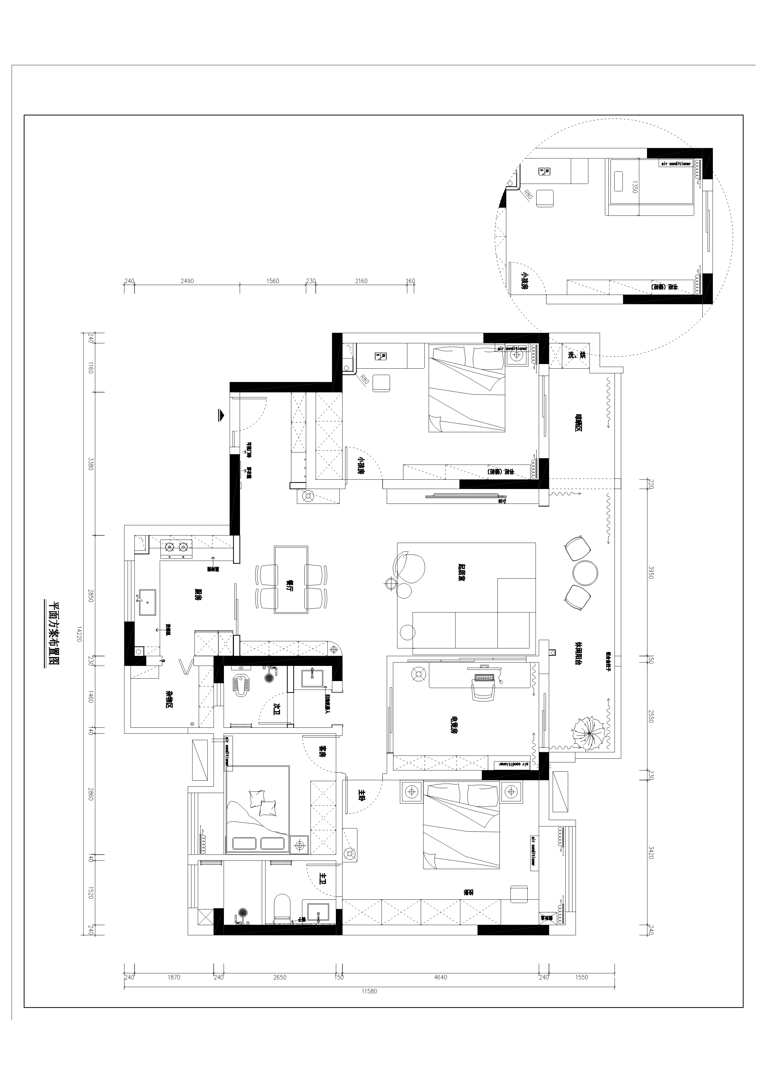
平面方案布置图
0
0

认证 · 让您身份增值