《山河公馆 秘密花园》
18
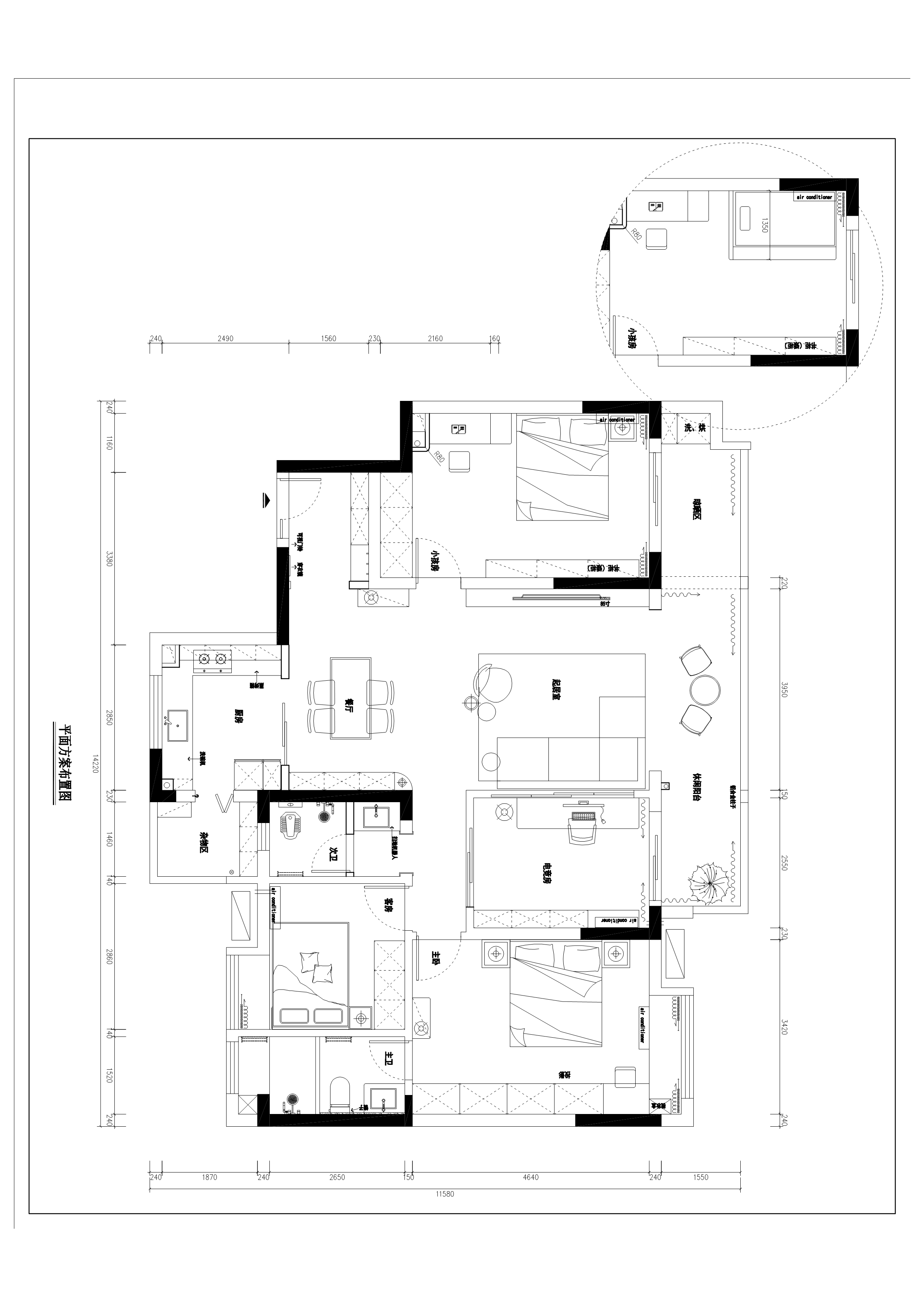
作品说明
- 项目类型:私宅
- 项目地点:桂林市
- 建筑面积:139.0000㎡
- 项目造价:40.0000万元
- 主案设计师: 闫晶晶
- 竣工时间:2025.09
-
项目定位:本案为一对新婚夫妇的年轻人的家,不喜欢过于复杂的造型,喜欢简约的温馨,用软装搭配出复古的味道。
-
空间意境:餐厅壁炉跳跃的火苗让用餐变成了浪漫的约会,热情、奔放。
-
空间布局:用一个房间打开作为开放式的书房,与客厅相连,使得空间感更强,精致的隔断玻璃门,根据生活需要收放自如,让人一进到客厅,有一种“哇塞”的感觉。
-
设计选材:免去复杂的背景墙和吊顶,用简约的PU线条做装饰的点缀,既美观又实用,恰到好处的起到了风格的装饰作用;更多运用可移动和更换的软装饰品搭配出喜欢的视觉感。
-
用户体验:视频拍摄后,业主就迫不及待的搬到新家了,惬意的空间里非常喜欢懒懒的躺在客厅小憩,下班后总是迫不及待的想回家,舒服温馨的感觉,让人舍不得入睡。
0
0

认证 · 让您身份增值