瓦顶合院
107
作品说明
- 项目类型:酒店
- 项目地点:北京市
- 建筑面积:180㎡
- 项目造价:260万元
- 主案设计师: 杨圣晨
- 参与设计师:杨圣晨
- 竣工时间:2022
- 设计机构:北京集美勘察设计有限公司
-
项目定位:北京的四合院是北京最典型的北方民居形式,经历了八百多年发展,最终形成了四合院严格的空间聚落。而这种严格的空间序列是古代家庭社会等级秩序反应,无论是从几进几跨的王府大院还是单进的寒门小户,正厢分明,中轴对称的布局和建筑的结构形式都已定制了非常明确严格的制式。 解放前后,四合院开始向杂院的方向演进,大府宅被拆成了单进院落,甚至在独院内东西厢房和南北房都住进了不同的人家,原来等级森严的阶梯式住宅逐渐变成了“社会性“住宅,没有了等级的结缔,同样生活在大杂院内的不同人家共享同样一个院子和一条胡同,这些公共空间确实拉近了居民的距离,但同样也剥夺了居民间的隐私,甚至很多基本的生活都不能保障。无论是供大家族生活的整进院落还是被割裂成小间的大杂院,北京的四合院都已然不符合当代居民的生活状态。就现代人而言,对于邻里关系的需求已经产生了变化。对于曾经大杂院中的居民,每个家庭的私密性比起公共社交属性更被大家需要。共享空间应避免造成被动式的社交造成住户负担。项目是业主和设计师一道对北京四合院新的居住模式的探讨。虽然项目面积不大,但业主希望项目仍然有能力同时承载自己和朋友们同时居住,甚至多余的房间还可以对外长期出租。 如同老友记那样的“群居”生活,需要公共的客厅空间,大家可以一起活动用餐,但又有自己的生活单元。
-
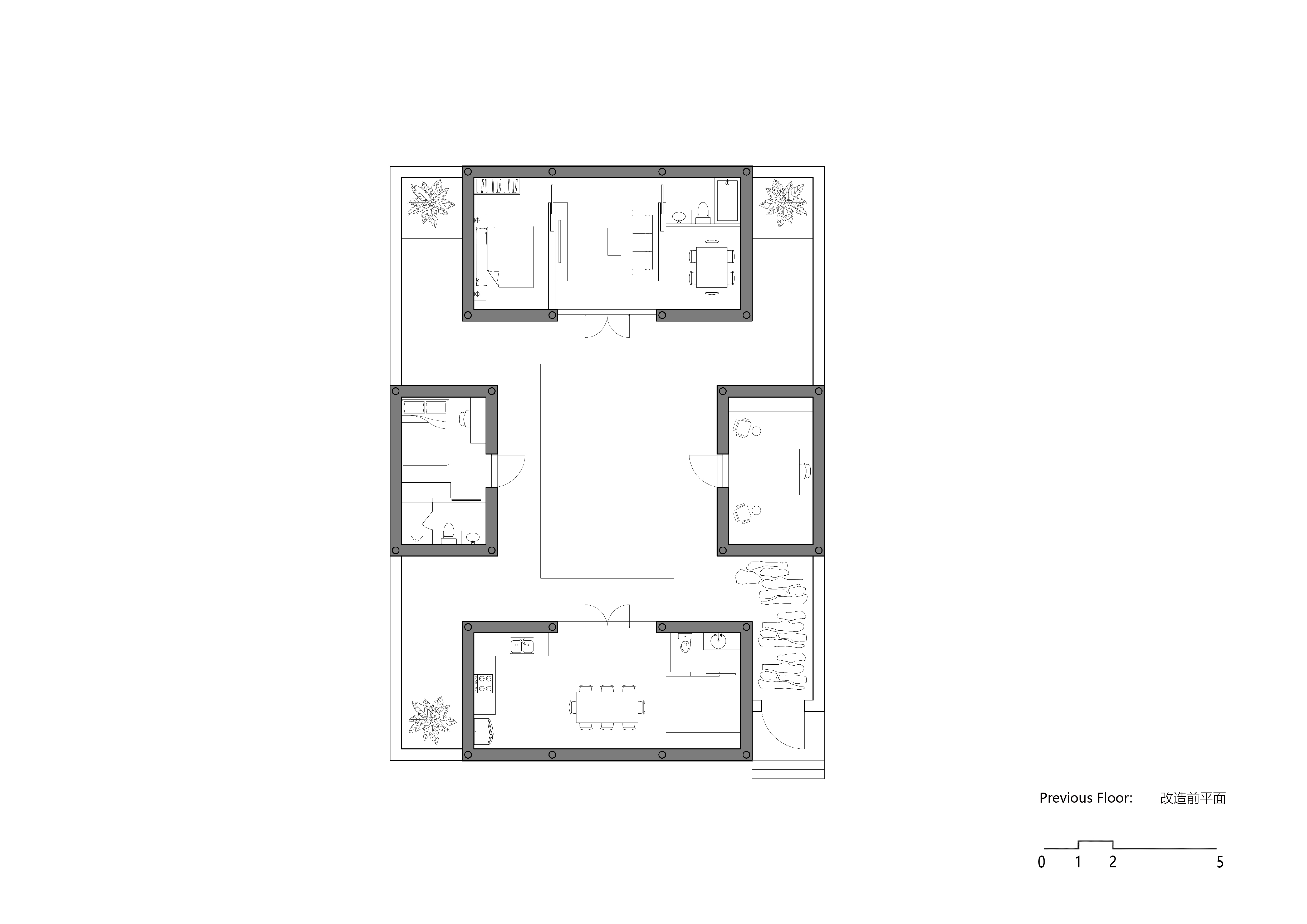
空间意境:待改造建筑是一套标准的一进的四合院,正房,倒座房位于南北两边,东西厢房分列两侧。而特别的是院子在早年间封了起来形成了室内空间。坡屋顶上面做了圈梁,然后在上面支起了木桁架用于支撑起阳光板的屋顶, 结构虽然简单,但却把原本室外的庭院变成了室内空间。 高窗和半透明的阳光板同时保证了通风和采光。 虽然这一举动完全改变了经典四合院的空间结构但却为改造创造了更多的空间可能。项目位于天桥储子营胡同,出于对整体规划和周围邻里的尊重,建筑基本属于原拆原建并且保留了之前的高度。项目在原址上的翻建以及加建,设计最大限度的保留了四合院原有的布局和建筑形式,整个建筑拥有让人难以忽视的亲近感,带有可识别的城市与建筑的历史信息。同时又营造出了新的空间体验。
-
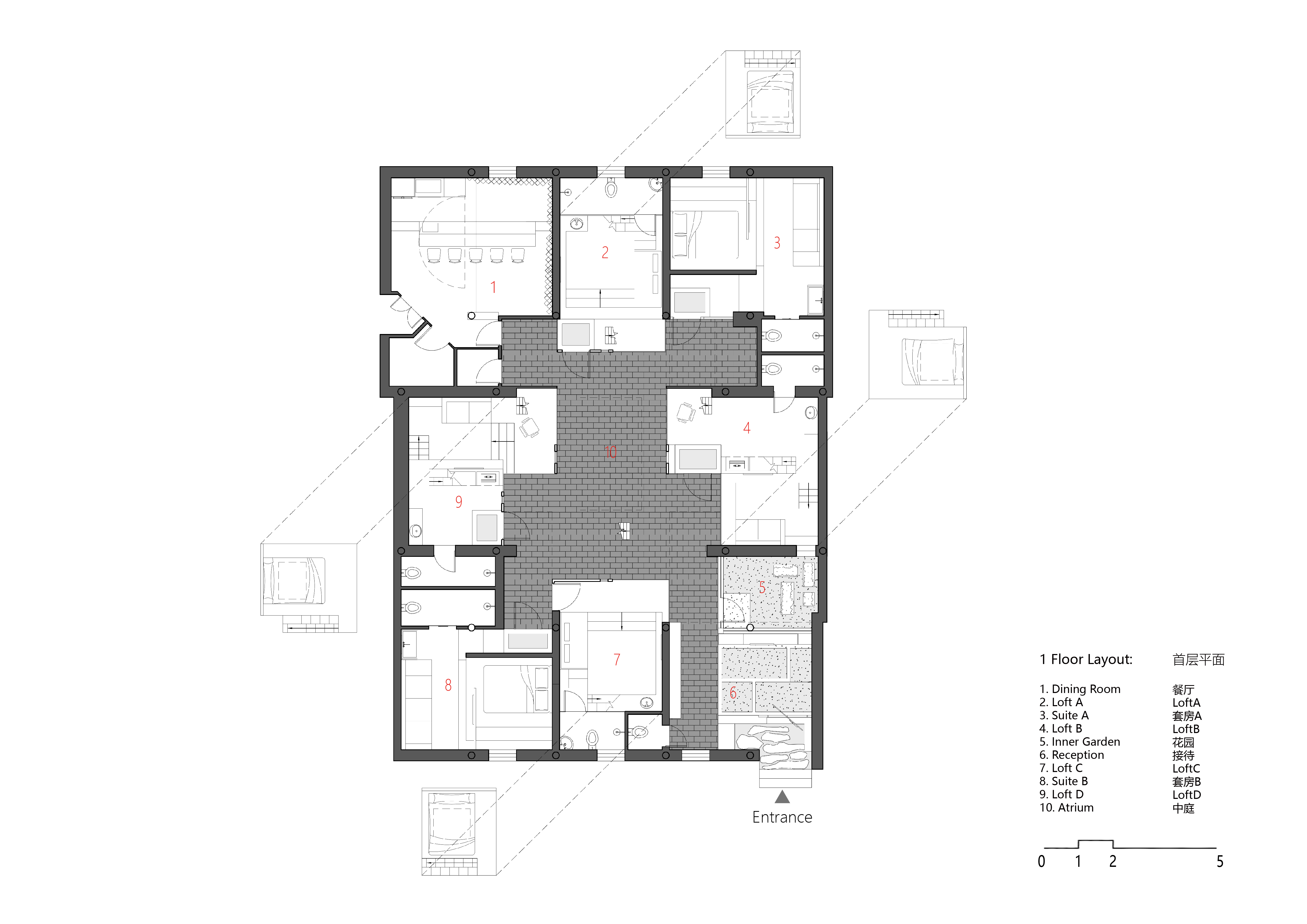
空间布局:在相对局促的空间内把空间再次划分以满足不同功能需求,每个区域也不显得局促。 南北房和东西厢房同样沿用了传统四合院砖木混合四梁八柱的建筑结构形式,而新植入的空间区域则采用钢结构和混凝土等现代结构形式。在原房屋上改造的部分保留原始结构,新建的空间采用现代结构。
天井向上看去,翻转的窗户好像好像不知去向的通道,阳光透过窗户的形状打在木板上,增加了很多趣味。
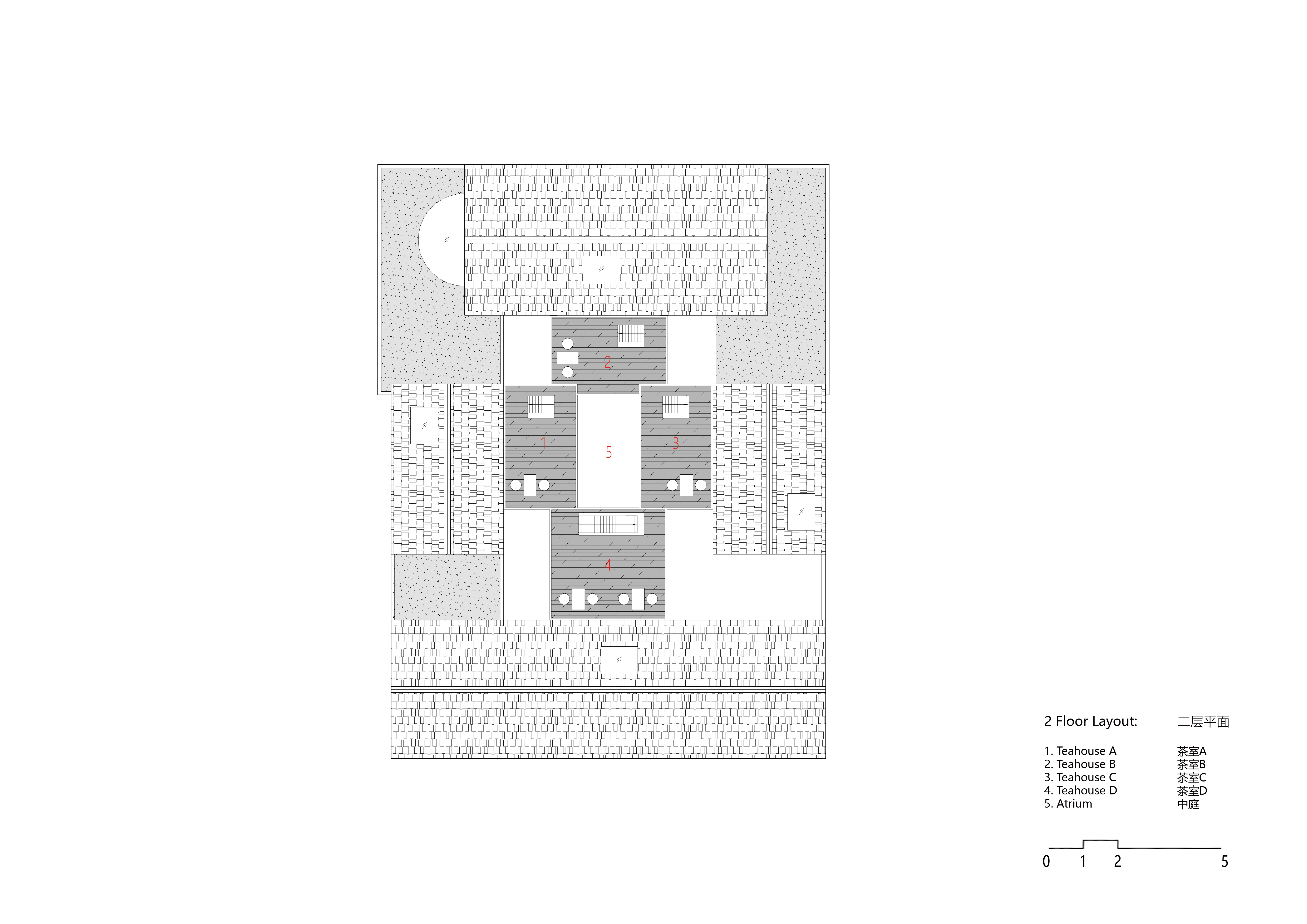
北京四合院中的庭院本身就是北方民居对自然气候的应对,然而封闭的院落如何还能延续这一关系也是建筑师要考虑的问题。项目位于二环内,城市空间拥挤,在地面空间很难与自然发生联系。随着城市的发展,城市空间被挤压,属于北京记忆的各种空间记忆也被压榨。成群结队盘旋在楼宇间的鸽队和鸽哨声也逐渐变成了人们的回忆。从小听鸽哨长大的建筑师对盘旋在城市上的鸽群有着特殊的情感,然而消失了多年的记忆在一次场地勘察时又被唤醒。 储子营胡同平房屋顶上随处可见的鸽子房给出了答案。既然地面空间被挤压,我们便让空间突破屋顶的束缚。北京的传统四合院建筑布局虽然受等级森严的空间秩序影响,但在四合院的屋顶上却是一片完全不一样的天地。像是久久憋住的一口气突然呼吸到了自由的空气,越过屋顶你会发现包围你的不再是墙砖灰瓦而是葱葱的古树,北京的高楼都被推到了远处二环之外,连成片的屋顶起伏的屋顶构了瓦片的海浪,让人难得能有机会享受这没有高楼遮挡的天空。
就像是《邪不压正》中李天然和关巧红碰面的地方,北京四合院的屋顶是这城墙内少有的自由,浪漫,能放空一切的场所。被支撑起来的空间像是漂浮于屋檐之上,为庭院带来了有组织的阳光。在不同标高上的空间在保证私密的同时空间上也同样连贯,人们可以产生视线交流,这既增加了温馨感,空间也变得更连通了。 -
设计选材:这是新老建筑的共存,不同的时代,不同的结构被用来满足人们不同的需求。让居住者在享有现代居住环境的同时更能近距离的,解剖性的感受体验四合院建筑传统的构造形式。在相对局促的空间内把空间再次划分以满足不同功能需求,每个区域也不显得局促。 南北房和东西厢房同样沿用了传统四合院砖木混合四梁八柱的建筑结构形式,而新植入的空间区域则采用钢结构和混凝土等现代结构形式。在原房屋上改造的部分保留原始结构,新建的空间采用现代结构。新建的“鸽子窝”用纯粹的几何形体架于屋顶。与原有的屋顶在视觉上形成了形体的穿插,青砖山墙及瓦当被包裹进室内。屋顶的采光玻璃面加上了半透遮光帘,将日光过滤成更加柔和的光线。这一系列的处理,将室内与室外空间的模糊,现代与传统建筑的对比与相同,明快与温馨氛围的营造,新与旧的关系变得暧昧。悬浮的“鸽子窝”由钢结构搭建,从结构上与砖木结构的建筑主体脱开。 清晰的结构关系让原有的木结构也得以暴露出来。餐厅吧台的位置横跨了正方西侧一间和西耳房两个空间。 设计将新建的耳房和现状正方通过材料进行了视觉上的区分。白色水磨石和青砖将空间一分为二,黑与白,光滑与粗糙,简单与复杂从高度,肌理、立面材质、空间差异化几个不同的方面产生了对比。
-
用户体验:这些传统建筑是城市发展的一部分,经过北京的的传统、气候、人文条件、时代政策等多方面因素影响演变成现在的形态。四合院变成了大杂院,对于北京人来说,四合院包含的更多的价值是情感价值和文化价值。在建筑中去寻找到建筑与城市之间的联系,调和新与旧的矛盾,将老建筑再利用使其焕发新的活力,可能是修旧如旧之外的一个思路。
0
0

认证 · 让您身份增值