一间宅
90
作品说明
- 项目类型:住宅公寓
- 项目地点:北京市
- 建筑面积:30㎡
- 项目造价:40万元
- 主案设计师: 杨圣晨
- 参与设计师:杨圣晨
- 竣工时间:2023
- 设计机构:北京集美勘察设计有限公司
-
项目定位:中国家庭非常重视子女的教育,为了能让子女上更好的学校,他们往往会牺牲自己的居住体验选择老破小的学区房居住。北京的情况尤为典型,优质教育资源高度集中于二环内的胡同街区,这些区域的住宅因年代久远、房价高企,大多破旧拥挤。加之年轻父母工作需要,祖辈常同住协助育儿,三代人共居不足百平学区房,已成为京城许多家庭的真实写照。
此类居住状况引发了诸多问题:人均居住面积严重不足、功能空间缺失、代际隐私难以保障、历史建筑现代化改造困难等。本项目正是对这一现状的极致回应。 针对这些挑战,本项目提出了一个激进且富有同理心的解决方案,通过垂直分层的极致探索,在保留历史建筑外观的同时,彻底重构内部空间体验,为高密度历史街区中的居住更新提供了新的可能性。 -
空间意境:建筑的整个面宽完整的给了客厅空间,加上与玄关厨房的空间视线贯通,在客厅空间并不会感到压抑或是局促。楼梯采用穿孔板材质,以架空的形式存在于整个空间。 客厅的上空保留有原古建的屋顶与房梁,木建屋顶则只保留一半,另一半为穿孔板走道,减轻了木材的厚重感,增加了透气感,也间接增高了客厅层高的空间感知。再与另外一开间的隔墙一侧,设计保留了原建筑的木质结构。由于抬高了原有标高的原因, 客厅空间与原有的木梁椽子这些传统木构架更近了,甚至顺着楼梯向上走可以清晰的观看与抚摸这些具有年代感的建筑体量。 整个建筑变成了触摸式的古建博物馆,我甚至有点羡慕能在这里长大的小朋友。现在出生的小朋友,都是在钢筋混凝土的盒子里长大,居住空间被各种工业体系定义成了各种风格,陪在他们左右的装饰的材料也是像瓷砖,墙板这种无机的工业制成品。在我看来,它们都少了点温度,看似定制化很高的居住体验但却和自然切断了联系。
-
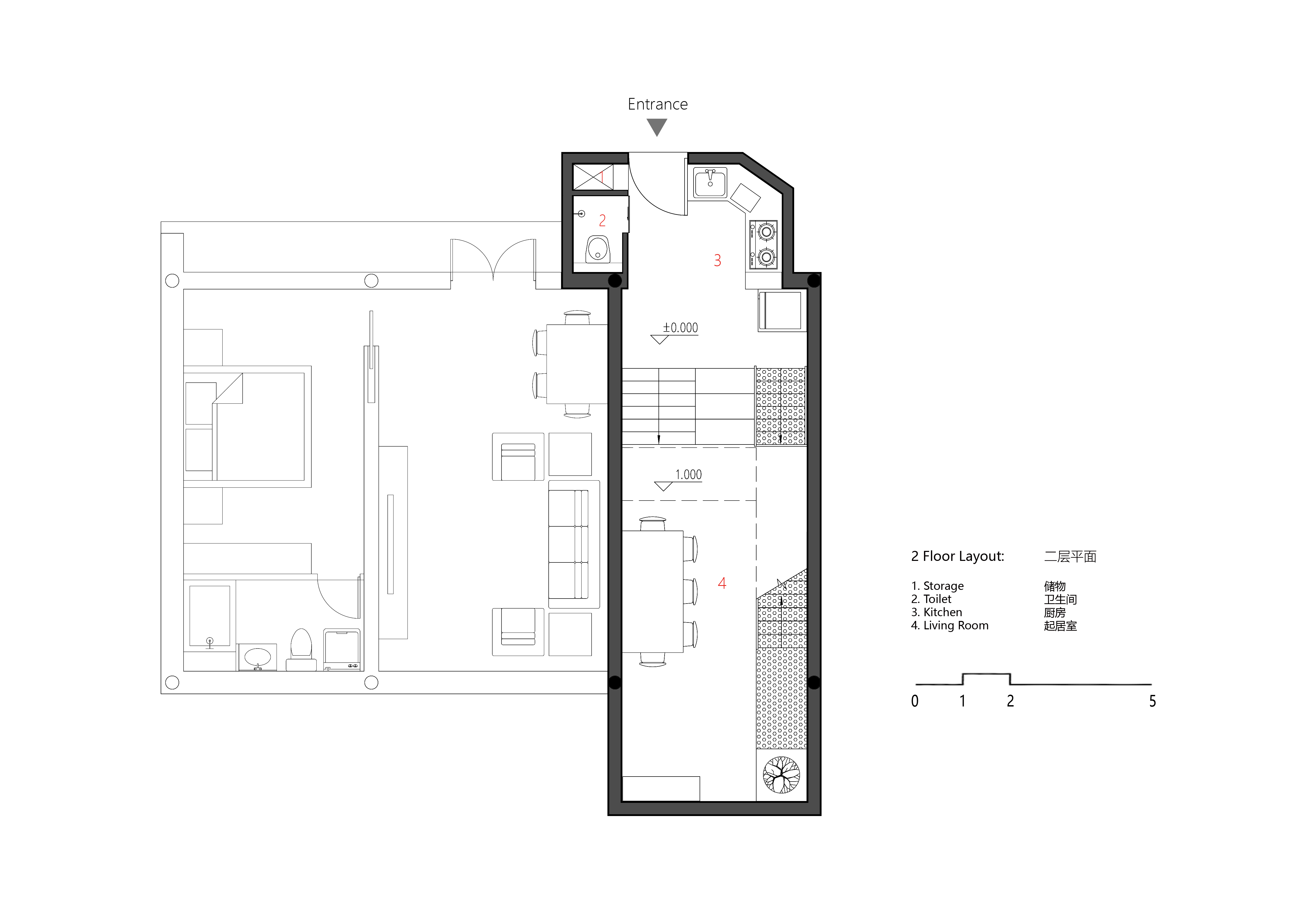
空间布局:原建筑是一个面宽仅3米、进深约10米的狭长空间。除入口一面外,其余三面紧贴邻宅,无立面开窗条件,仅靠一扇小高窗采光。设计任务是在这不足三十平方米的极限范围内,为年轻父母、两个孩子及两位老人共六口之家,规划出容纳四间卧室、两个卫生间、客厅及厨房的居住空间,同时确保每位家庭成员的尊严、隐私与代际和谐,并提供儿童成长所需的私密空间及家庭社交的公共区域。面对窄面宽条件下传统走廊布局会进一步压缩可用宽度的困境,设计团队摒弃了传统走廊布局水平扩展思路,转向垂直分层策略,于高度中挖掘潜力,最终塑造出惊人的五层立体空间
1. 入户层(+0.0m零标高):
推开大门,刚进入一间宅,入口玄关与厨房结合形成复合空间。基于两者使用时段的不重合性,此设计通过时空维度叠加实现了空间高效利用。此处保留了八十年代加建痕迹,破除原有彩钢屋顶,从而可以完整清晰的看清原有四合院建筑的屋檐和瓦当。形成的天窗和高窗连城一体,同时引入自然光线和通风 。
2.下沉层(-0.6m标高)
设计利用原有地基下沉空间,形成半下沉式的卧室和卫生间。此举不仅增加了空间,其厚重的热质效应还有助于保持室内气候稳定。部分走廊和卫生间的顶板用穿孔板代替,这样不仅增加了空气对流也为半地下的空间引入了自然光线。
3.客厅平台层(+1.6m标高)
从入户标高走上几步楼梯,来到建筑的主要公共空间,这里是餐厅及客厅的集合之处。
作为家庭的核心公共区域,一个抬高的起居空间覆盖在下沉区域之上。整合的楼梯同时充当书架和阅读角,借鉴了“马赛公寓”通过高差分离空间并创造多功能性的理念。
建筑的整个面宽完整的给了客厅空间,加上与玄关厨房的空间视线贯通,在客厅空间并不会感到压抑或是局促。楼梯采用穿孔板材质,以架空的形式存在于整个空间。 客厅的上空保留有原古建的屋顶与房梁,木建屋顶则只保留一半,另一半为穿孔板走道,减轻了木材的厚重感,增加了透气感,也间接增高了客厅层高的空间感知。
再与另外一开间的隔墙一侧,设计保留了原建筑的木质结构。由于抬高了原有标高的原因, 客厅空间与原有的木梁椽子这些传统木构架更近了,甚至顺着楼梯向上走可以清晰的观看与抚摸这些具有年代感的建筑体量。 整个建筑变成了触摸式的古建博物馆,我甚至有点羡慕能在这里长大的小朋友。现在出生的小朋友,都是在钢筋混凝土的盒子里长大,居住空间被各种工业体系定义成了各种风格,陪在他们左右的装饰的材料也是像瓷砖,墙板这种无机的工业制成品。在我看来,它们都少了点温度,看似定制化很高的居住体验但却和自然切断了联系。
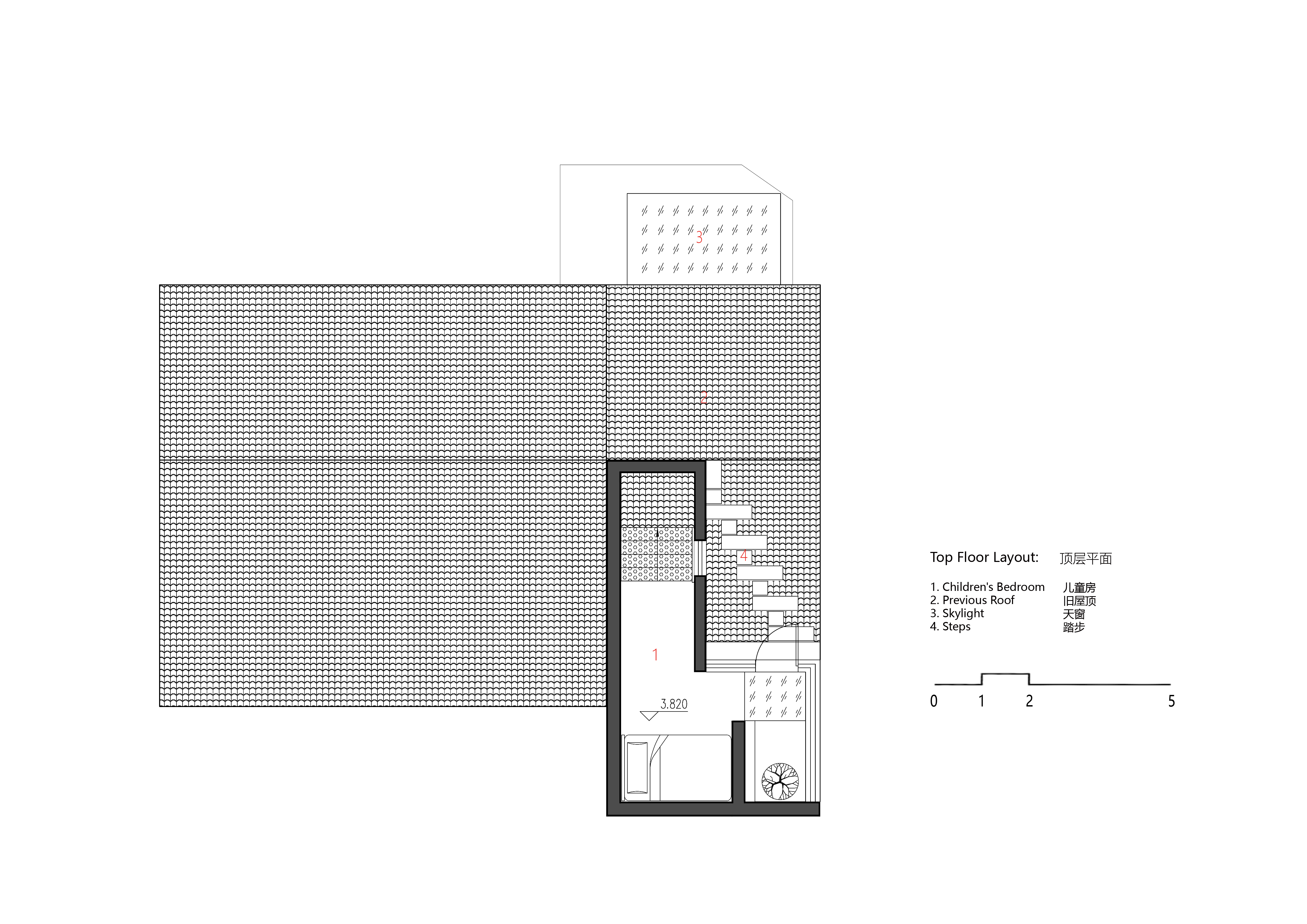
4.夹层(+2.8m标高)
设计在在厨房上方悬浮了一个小房间作为业主女儿的卧室,同时保留了下层客厅区域的原始木屋架,保持了空间的历史感与通透性。这个空间虽然不大,但是对于小朋友来讲刚好,给予了她所需要的独处的空间,去消化对这个世界的信息,像是秘密基地一样给予了女孩成长所需要的私密空间和极大的安全感。
这样的设计灵感,也来源于我自己的生活:我就是生在北京,小时候就睡在我们家的阁楼上面,。它特别小,但特别私密,也了给我很大的安全感。现在回想小时候大部分的快乐时光都发生在那里。 -
设计选材:漂浮的楼梯并没有停滞在夹层的房间,而是继续盘旋上升,从两根梁直接的空间穿过冲破了原有的建筑的椽子和望板,到了建筑的青瓦屋面,与一个轻质增建部分结合,在原始屋顶之上形成了一个新的卧室。小儿子的卧室是真正意义上的坐落在瓦端之上的,设计甚至把一部分室外的屋顶封进了室内。 这个“破顶而出”的房间极大地激发了孩子们的想象力。北京有句老话,叫“三天不打,上房揭瓦”,这种状态反而就是小朋友的天性,不愿意在一个小小的封闭的空间里生活,而是有一种原始的冲动,希望去冲破这个空间。让他们在“上房”的过程中,去获得和寻找自己对天空、对室外、对自然的向往。
-
用户体验:因为北京的胡同、四合院,和城市集中开放建造的建筑不一样,它们没有一个上位的规划,也没有一个设计师画出过一张完整的蓝图,它是自然生长的。
时间久了,这里的住宿条件可能不那么好,甚至连基本的生活保障,像卫生间、热水淋浴这些都没有。慢慢地,很多人都开始搬离,胡同也失去了它最开始的生机。 作为建筑师能做到的,是基于原有建筑的状态和他们对空间的需要,通过设计让他们在这里生活的更舒适,能把人拉回到胡同里,只有更多不同行业的人、年轻人、老人回到胡同让更多真实的生活发生,才能让北京的胡同再次充满生机。
0
0

认证 · 让您身份增值