生长的住宅
95
作品说明
- 项目类型:酒店
- 项目地点:保定市
- 建筑面积:400㎡
- 项目造价:110万元
- 主案设计师: 杨圣晨
- 竣工时间:2022
- 设计机构:北京集美勘察设计有限公司
-
项目定位:百里峡景区是河北少有的5A级景区,景区的爆火为对面的苟各庄村带来了巨大的客流量, 游客们住宿需求的暴增让在这里的居民看到了商机,纷纷将自己的祖宅住房改建成为民宿。 我们接受的委托就是在一个原有7米宽,9米进深的一块土地上设计一栋六层的建筑,来满足自住和对外经营的需求。
-
空间意境:现场原有一栋两层的混凝土房屋,一直由业主一家三口居住。出于对扩建的需要,我们计划在原有的建筑物上用钢结构加盖三层。新建的五层住宅计划每层都有一个套间,其中一间自助,一间留给儿女,剩下的其余三间计划对外运营。业主希望五层的房间每层应该有自己的个性与风格。
首层是业主自住部分,也是民宿的接待空间。 建筑位于街道与自然的中间,为了不分离隔开自然景观与街道,也为了将自然景观引入建筑吸引游客,有更通透的展示作用,临街面用了大面积的玻璃,更是打造了一个景观通廊, 成为住宅的景观卖点。所以在首层的设计上我们做了一个景观通廊,廊道的四周用高反射不锈钢板包裹,得以最大限度的把对面的山水引入建筑,再通过临街面通透的设计把自然的山水像橱窗一样展示给街道的行人。 这一成功设计带来了不少流量,好多人甚至专门来此打卡。
二层的设计是业主自住的房间,南向景观面上我们希望把景观的体验最大化,于是利用原有建筑的一个雨檐作为结构支点,把卧室的床向建筑外悬挑了近两米,让居住者有种睡在河上的感觉。河水在脚下不停留,有种超脱于现实的的漂浮感。
三层是原有建筑的露台部分,由于坡屋顶的悬挑导致整个房间层高被压的很低, 我们在这个户型设计了类似下沉式的围合空间,甚至设计了很多可以跪坐的空间和家具,就是希望让人们的活动尽量低矮贴近地面。 虽然层高带来了限制但为了让空间更加开阔,在这层设计了270度的环绕带形长窗让空间更加开阔,一米二到一米八左右的位置也正好是人们坐卧的高度。
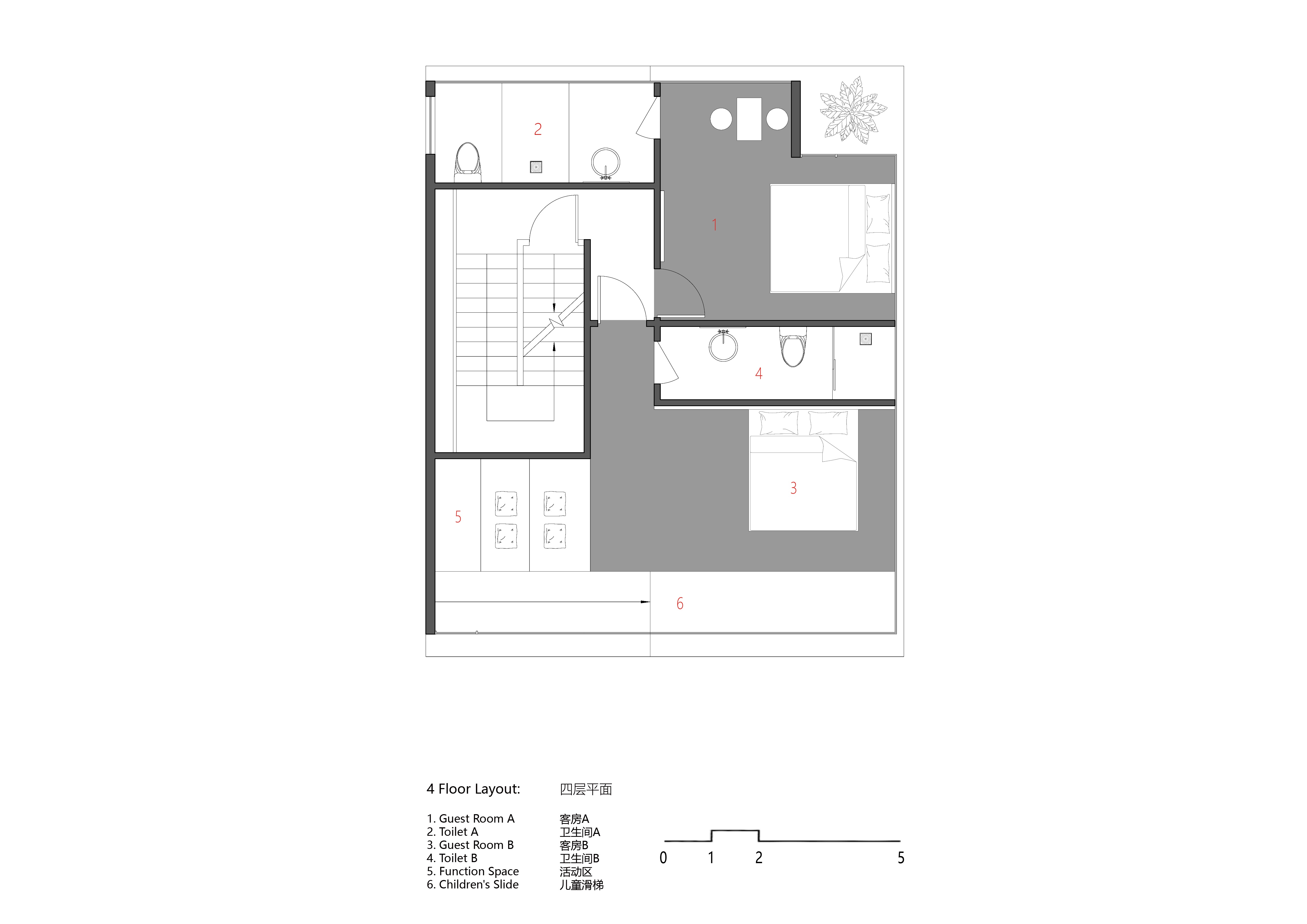
四层则是原有屋顶层,原有混凝土单坡屋顶由于结构原因不能拆除,然而二十多度的坡度给本层楼板和功能布置带来不小的难度。 设计因势利导,利用现有坡度为这个客房设计了一个窗边的滑梯,以及一个阶梯状的观影空间。业主的小孩非常喜欢这个房间,没有客人的时候全家也经常在这间居住,实际上全部五个套房他们都住过一段时间,业主张超常说只有亲自体验过的客房才能真正了解每间房间的特性,将来好给住宿者推荐,也正因为是每间房都各具特色,民宿的复购率一直都很高,甚至形成了私域流量。
-
空间布局:建筑也有新陈代谢,也如同生命一般地生长与变化。与整齐划一, 提前规划建设的城市不同,乡村的建筑往往非常具有地域性与功能的不确定性,往往根据使用需求的变化也在不停的发展变化。 一个家庭住在一间祖宅,由于人口的增加就会在原有建筑上加盖房屋。 有可能几户人家逐渐发展成村落,村落连成片形成乡镇。设计师已经太习惯了设计,设计建筑的外貌,用特定的美学方式去“整容”建筑。 看似好像是更好看更符合审美,但也不乏千篇一律和空洞。 所以在这个项目上我们几乎没做任何的“立面设计”,每一层的功能和需求都不一样,让室内的空间与需求反应到外立面上,五层不同功能反应出的设计罗列起来就形成了建筑的外观,看上去似乎有些杂乱和野蛮,但这种一层一层的感觉如同竹子一般,让整个建筑有一种从一层慢慢“生长”到五层的感觉,因为随着时间的跨度 每层都有他自己的故事。
-
设计选材:经过对结构的研究,决定在原有两层半的混凝土结构上加盖出两层半的钢结构,新加结构与旧结构形成咬合的结构关系。由于建筑整体有限高要求,原结构屋顶层楼板的屋面坡度无法调整,不仅整个屋面结构会在立面上体现,整个坡度需要反应进室内空间。对于设计师而言在这个阶段似乎整个项目的形式已经脱离了掌控,也带来了新的可能性。
仅有七米面宽的建筑留给楼梯间的尺度也被大大压缩了,五层高的小尺度的楼梯极易给人逼仄的压迫感。设计用整板压弯的穿孔板作为楼梯踏步的材料,并在楼梯间顶部开设天窗。阳光甚至能透过几层的楼梯照亮整个楼梯间,白色的墙面、有呼吸感的楼梯和自然光让原本窄小的空间形成了纯净通透的空间。 -
用户体验:城市和建筑不是静态的实体,而是不断变化的有机“生命”。建筑的每一层的形式都有变化,这不仅是来源于每一层的户型和室内空间的变化,也是使用功能的变化。
0
0

认证 · 让您身份增值