Somesome东南亚餐厅
54
作品说明
- 项目类型:餐饮
- 项目地点:北京市
- 建筑面积:107㎡
- 项目造价:80万元
- 主案设计师: 杨圣晨
- 参与设计师:杨圣晨
- 竣工时间:2024
- 设计机构:北京集美勘察设计有限公司
票数 : 1
-
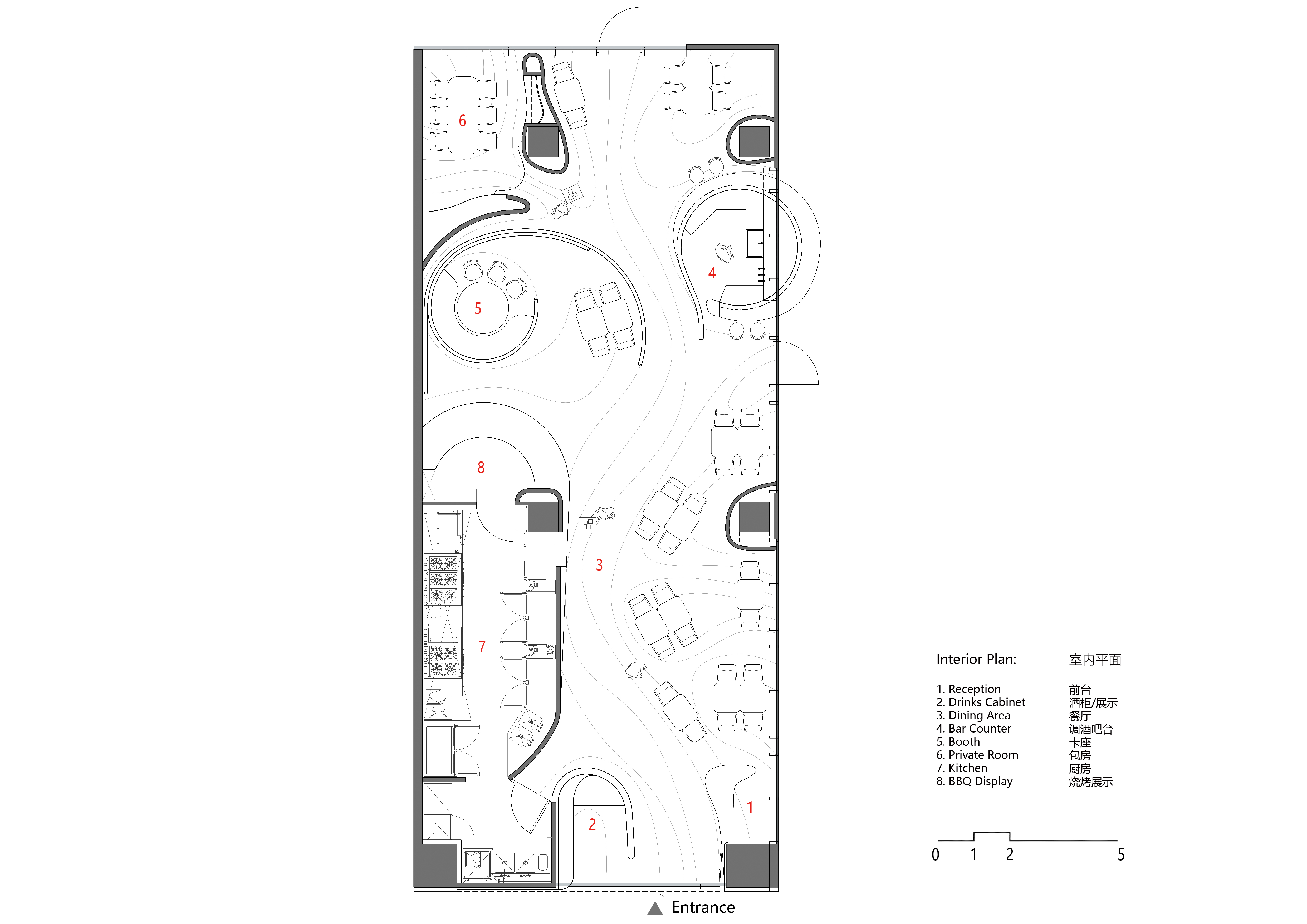
项目定位:somesome是餐饮界的新晋潮牌,几年前在三里屯开设第一家店就以新颖的设计和令人惊叹的口味瞬间爆火,业主计划在三元桥新开一家新店,委托我们从新对空间进行新的梳理。我们希望新的somesome空间不止于就餐,同时她也将作为酒吧、宴会厅,派对空间等多种用途的场所,在提供美味食物的同时同时具有一定社交属性,提供情绪价值和空间氛围。
-
空间意境:新店的面积虽然不大,我们仍希望空间中永远保有一种动态的张力,和驱动力,就如同自然界中潺潺不息的流水。地面铺陈着细腻如织的流水纹样与吊顶相得益彰,仿佛自然界的溪流悄然延伸至室内,引领着宾客自然而然地沿着那无形的轨迹前行,人们被一股的力量轻轻牵引,又被轻轻推向一张张餐桌。而这些餐桌又如同被刚才的“水流”推至浅滩搁浅一样,在就餐的区域形成了慢速的,安静私密的空间。
-
空间布局:Somesome餐厅流动空间的设计,流畅且灵动,打破了传统餐厅餐桌沿着墙体排列的常规,和横平竖直呆板沉闷的排布方式。随着空间的流动,餐桌的排布以及朝向似乎也受到这种社会力推动而达到的平衡状态,每一组就餐空间通过这种牵引和博弈形成了既连贯又相对独立和私密的小空间。
-
设计选材:餐厅的吊顶,采用了纹理纸这种轻盈,半透明的材料,随着空间流动并随风飘动,勾勒出丝丝缕缕的空气感。而层层叠叠的纸张叠加着光线,不仅为餐厅营造出了一种朦胧而神秘的美感,还巧妙地与光线互动,创造出令人惊叹的视觉效果,像是在溪水中挤入了一管红色颜料,随着流水形成了深浅不一的流动的效果。整个餐厅以红色和白色为主色调,红色的纹理纸有着一定的透光度,在自然光和灯带的照射下形成了丰富的色彩系统,不同色阶的嫣红更是把地面的层次勾勒出来,在形成丰富的空间层次的同时,更营造出一种浪漫而温馨的空间氛围。 在白天和夜晚也呈现出完全不一样的视觉体验。
-
用户体验:酒吧区是餐厅的社交中心,无论是独自小酌还是朋友聚会,我们都希望提供一个轻松切具有吸引力的环境。 相比传统酒吧吧台的设计,我们让吧台高度逐渐降低甚至与地面相接,渐渐展现出吧台的“后台”,顾客可以更加直观地看到调酒师的工作过程,这种“开放式厨房”式的吧台设计能够极大地增强顾客与调酒师之间的互动,使得每一次点酒都成为一次独特的体验。
0
0

认证 · 让您身份增值