涌味四季
185
作品说明
- 项目类型:餐饮
- 项目地点:宁波市
- 建筑面积:750㎡
- 项目造价:200万元
- 主案设计师: 陈龙
- 参与设计师:王晓儒 刘丽云 王博雅 贾淇然
- 竣工时间:2025年11月
-
项目定位:老板及股东作为传统老牌餐饮人,开店品牌定位:共情当下市场那些放不下体面更舍不掉乡愁的人,左手烟火 右手远方 ,和爱的人吃好每一顿饭。
目标客群:聚焦年轻消费者及家庭消费,人均消费在80-130元区间。
设计方式上处处精打细算,带出生活的积极感。
社会面整体消费的欲望在降低,消费意识却在提高(并且是不可逆的)。陈述卖点不如制造向往。价值、共识、模式 共同构成一门好生意。 -
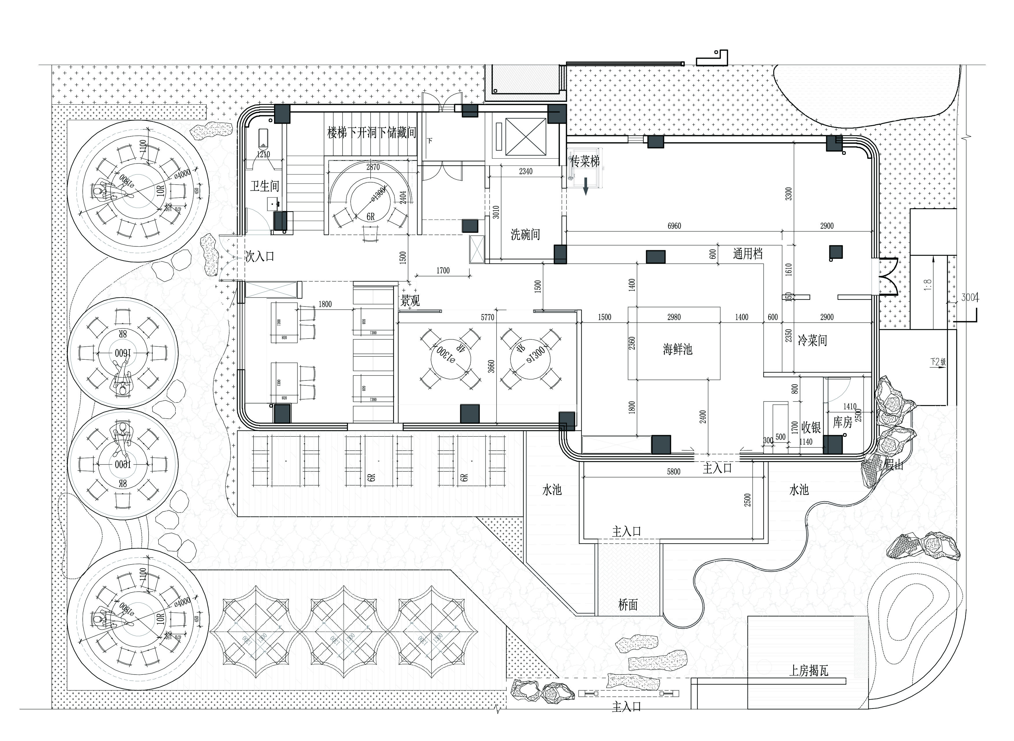
空间意境:涌味四季讲述了,“树”与“屋”的理念,把回家印象作为符号引入,不过形态上更加简化,入口进入院子,院子里有棵柿子树,斜屋檐高低错落,贯穿院子和室内。以树木贯穿空间,用光点亮氛围,取自然之景放入室内,尽可能地营造一个温馨而自在的用餐时刻。新屋延绵不大,却有外延的庭院,便以此作为室内室外空间的穿插,如画中留白,有一隅透气之地。我们再顺水行舟,铺上肥沃的泥土,决意按时节栽种植物,让窗中景于四季流转。
这间涌味四季的家,去那儿的路像一条蜿蜒的溪流,淙淙清亮,延伸向还不可知的远方和记忆的院子。室内张张围桌选用的胡桃木,温润且与木质肌理相映,一半是时光沉淀的拙朴,一半是都市生活的静雅。落坐窗边,整面落地玻璃也将天光云影邀入室内,树影婆娑时,空间便有了四季的呼吸。墙面覆以木块,像给建筑披了件透气布衣 —— 这是我们对自然的温柔注解 -
空间布局:店面面积延绵不大,却有外延的庭院,便以此作为室内室外空间的穿插,如画中留白,有一隅透气之地。我们再顺水行舟,铺上肥沃的泥土,决意按时节栽种植物,让窗中景于四季流转。
室内餐位布置散落,左边一桌,情侣低声说着明天的计划;右边一桌,一家人分食一锅肉汤泡饭,小孩嚷着“还要一碗”。在这里,吃饭是件“慢”事。
期待为你端出的,不只是宁波菜的香辣,还有时间煨出的温柔。 -
设计选材:老木板的二次利用,灰瓦的亲民性,涂料的呼吸,强调空间材料的低造价及亲民性特点
-
用户体验:涌味四季不只是一间餐厅,
而是能带给你和爱的人,一处烟火弄堂。
0
0

认证 · 让您身份增值