壶说悦宴
194
作品说明
- 项目类型:餐饮
- 项目地点:温州市
- 建筑面积:1700㎡
- 项目造价:550万元
- 主案设计师: 陈龙
- 参与设计师:王晓儒 刘丽云 王博雅 贾淇然
- 竣工时间:2025年1月
- 设计机构:石家庄市大石代设计咨询有限公司
-
项目定位:定位轻商务品牌,以明档为点单模式,人均消费控制在180-220元。以“艺术生活场景化”提供美好品质生活,以“质价比”优势弥补大众餐饮与高端商务之间的空白
-
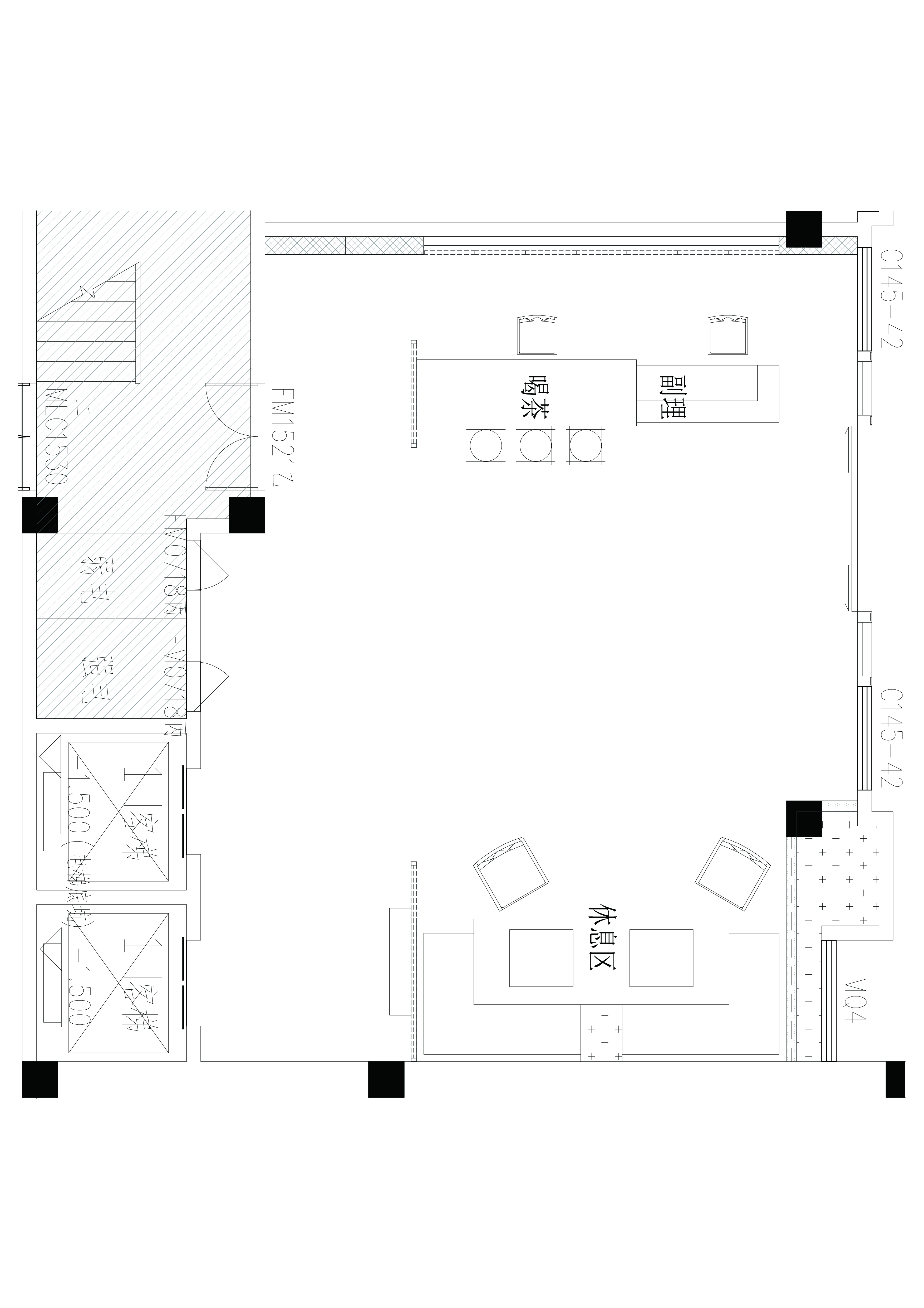
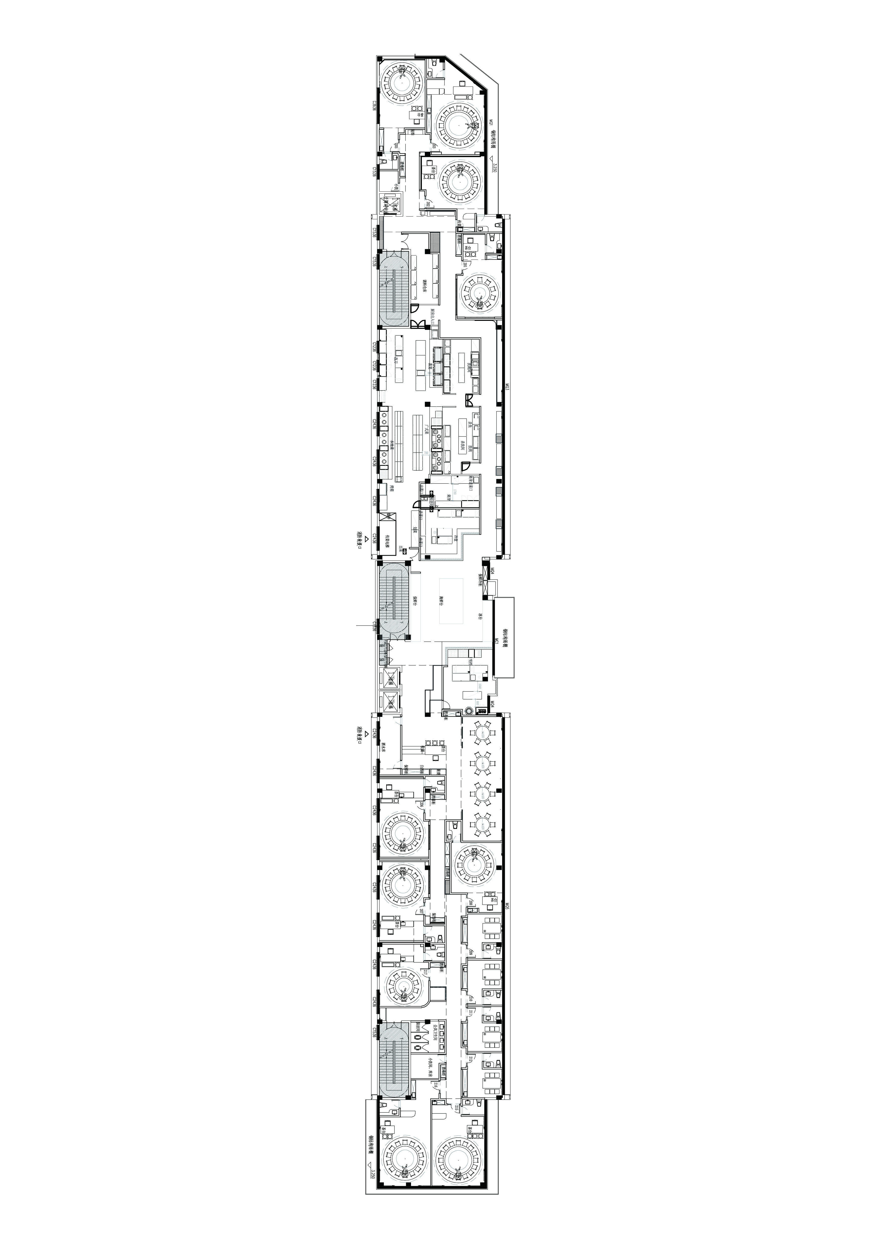
空间意境:在空间演绎上,用中式西作的手法,用现代审美演绎传统生活。公区以自然写意为主,将山水草木缩小到一定比例,置入微景观,将自然写意融入精致的空间中,消费者去体验去欣赏,品味内在的宁静。一景一物总关情,艺术品除了美化空间和装饰本身的作用外,更是关于内心情境的投射。不媚外,不守旧,满足当代商务人群年轻化的审美。精致是轻商务空间的底色,包间内以精巧为底,以色为墨,以绿植为点缀,让物质性的事物有了生机,构建关于美食、关于情调、关于生活的美好想象。包间成环形布局在餐厅四周,包间无论大小,每间都有窗户,将视野让渡给消费者。1200平米的空间内设计了206个餐位,人均面积高达6平米,就餐更舒适。小包间设计强调小而精,条形桌椅拉进了就餐者之间的距离。每个包间都有独立的卫生间,保障了就餐的私密性。对内有近距离的私密,对外有视野的开阔,张弛有度,细节之下,尽显品牌用心服务与场景体验。
-
空间布局:解决一层租金贵的问题,一层保留一个副理前厅,保证电梯到2层、3层的夹长空间中间区域,客人到中间往两边走解决距离长的问题。中间做大厨房,解决传菜距离问题,包间都保留卫生间,解决动线长和商务宴请私密需求
-
设计选材:藤编的自然属性,不锈钢的维护问题,石材的打理经济问题
-
用户体验:实现品牌从高端商务到轻商务的覆盖,多维度发挥品牌优势,巩固头部品牌市场占位。
从需求端来讲,80/85后逐渐成为新的商务消费主力,更重视在消费场景中的自我感受与精神的共鸣,场景化空间体验将是未来餐饮品牌赋能,拉动消费的重要力量。
0
0

认证 · 让您身份增值