鸽园
199
作品说明
- 项目类型:餐饮
- 项目地点:武汉市
- 建筑面积:2700㎡
- 项目造价:600万元
- 主案设计师: 陈龙
- 参与设计师:王晓儒 刘丽云 王博雅 贾淇然
- 竣工时间:2025年6月
- 设计机构:石家庄市大石代设计咨询有限公司
-
项目定位:鸽园作为武汉传统老牌餐饮企业,品牌理念:以“做好武汉味道,讲好鸽宴故事”为核心,通过现代手法演绎经典鸽宴,结合文化符号(如鸽子、茶文化)提升用餐仪式感。目标客群:聚焦年轻消费者及追求精致体验的中高端市场,人均消费在70-150元区间。
-
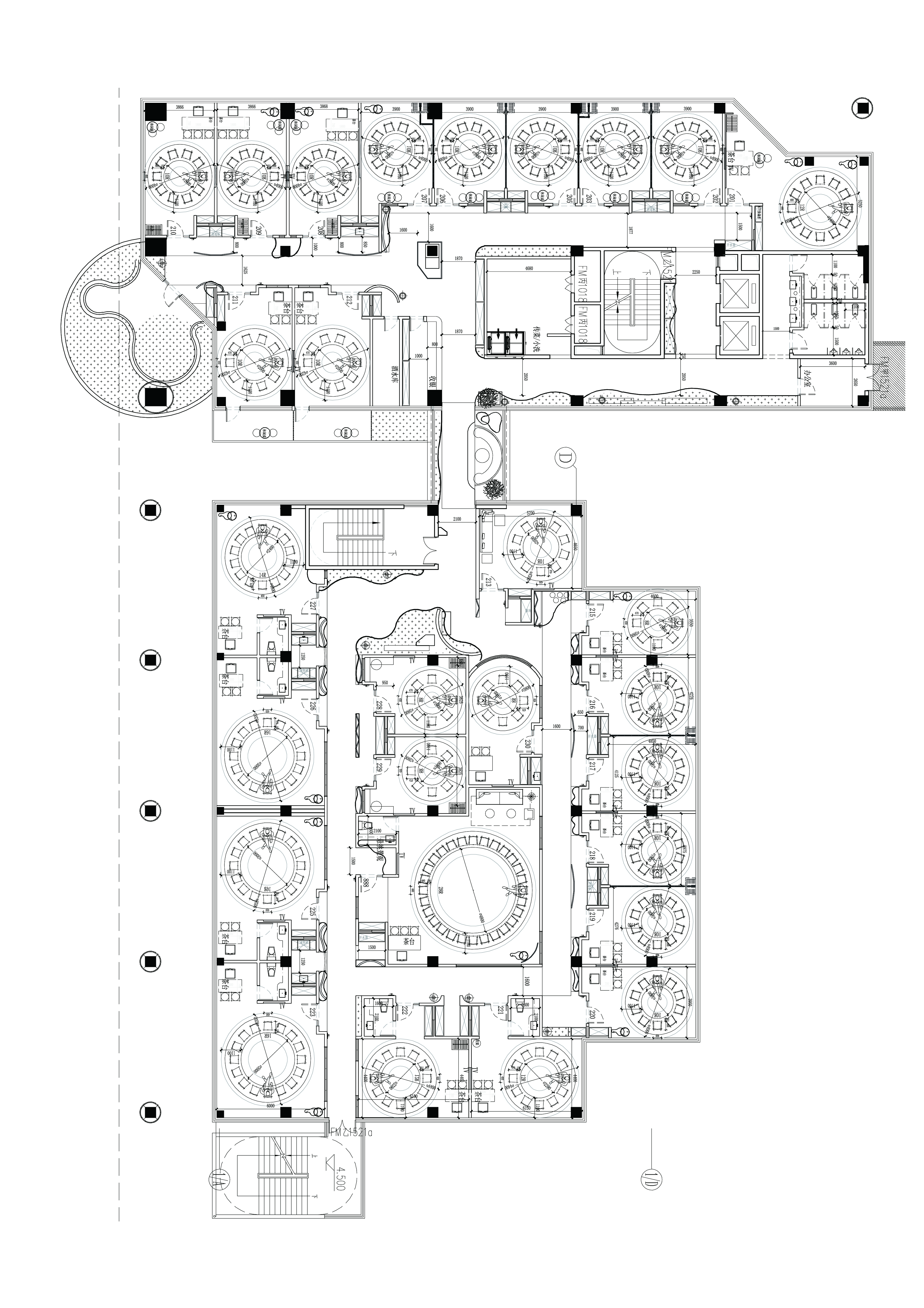
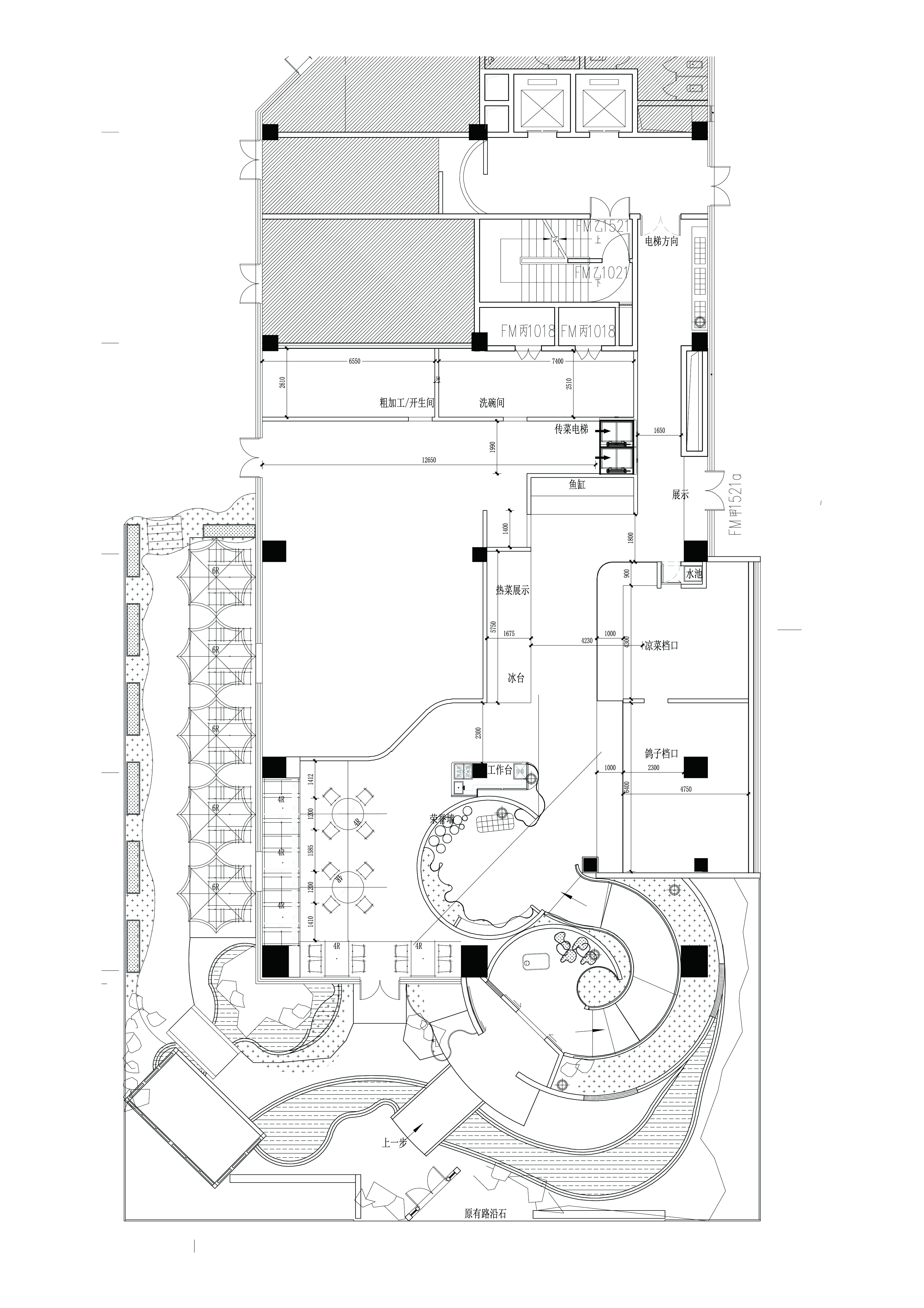
空间意境:将重心放在了内部空间的建筑构件,作为独立的入口门厅,是一个创造漫步式的游园曲线,将一个简单的进入方式,演绎为文化植入的路径。我们把篷布,武汉老街道早市作为肌理原型,设计装置散落在整个餐厅的各处,通过与植物景观、集市陈列、明档展现等不同的组合,形成了全新的空间设计体验。包房的元素以更加多元和松弛的方式将之前的元素应用其中,更有意去突出衬托美食和相聚在这里扮演的主要角色。 我们希望通过设计赋予空间更多的生命与灵性,做更有品质的令人放松的饮食空间。
-
空间布局:利用餐厅门口小院子作为品牌名“鸽园”得引子,为最大化的百姓消费进的来,商务消费私密得到满足,最终回归到商业本质上时,在将所有外景最大化借入的前提下,利用院子自由与围合式的布局形态填满建筑内部, 重点设计的入口与外摆区域,一楼营造舒适松弛的散台及明档空间,二楼通过不同主题的包间突出衬托美食和相聚在这里扮演的主要角色,希望透过视觉、味觉重返春日的繁华,和自然保持心意相通。
-
设计选材:饰面板 不锈钢金属 采购旧木地板 老门板
-
用户体验:这种具有几何户型空间划分,轻盈的划分出不同的区域,使得整个空间中具备了不同的空间尺度及空间体验,带给人们的心里感受,这种通过与植物景观、集市陈列、明档展现等不同的组合,形成了“鸽园”全新的空间设计体验。
0
0

认证 · 让您身份增值