玩偶梦想家
167
作品说明
- 项目类型:别墅
- 项目地点:上海市
- 建筑面积:450㎡
- 项目造价:500万元
- 主案设计师: 金园圆 郭杨宜
- 参与设计师:金园圆 郭杨宜
- 竣工时间:2024.12.31
- 设计机构:风起时设计
-
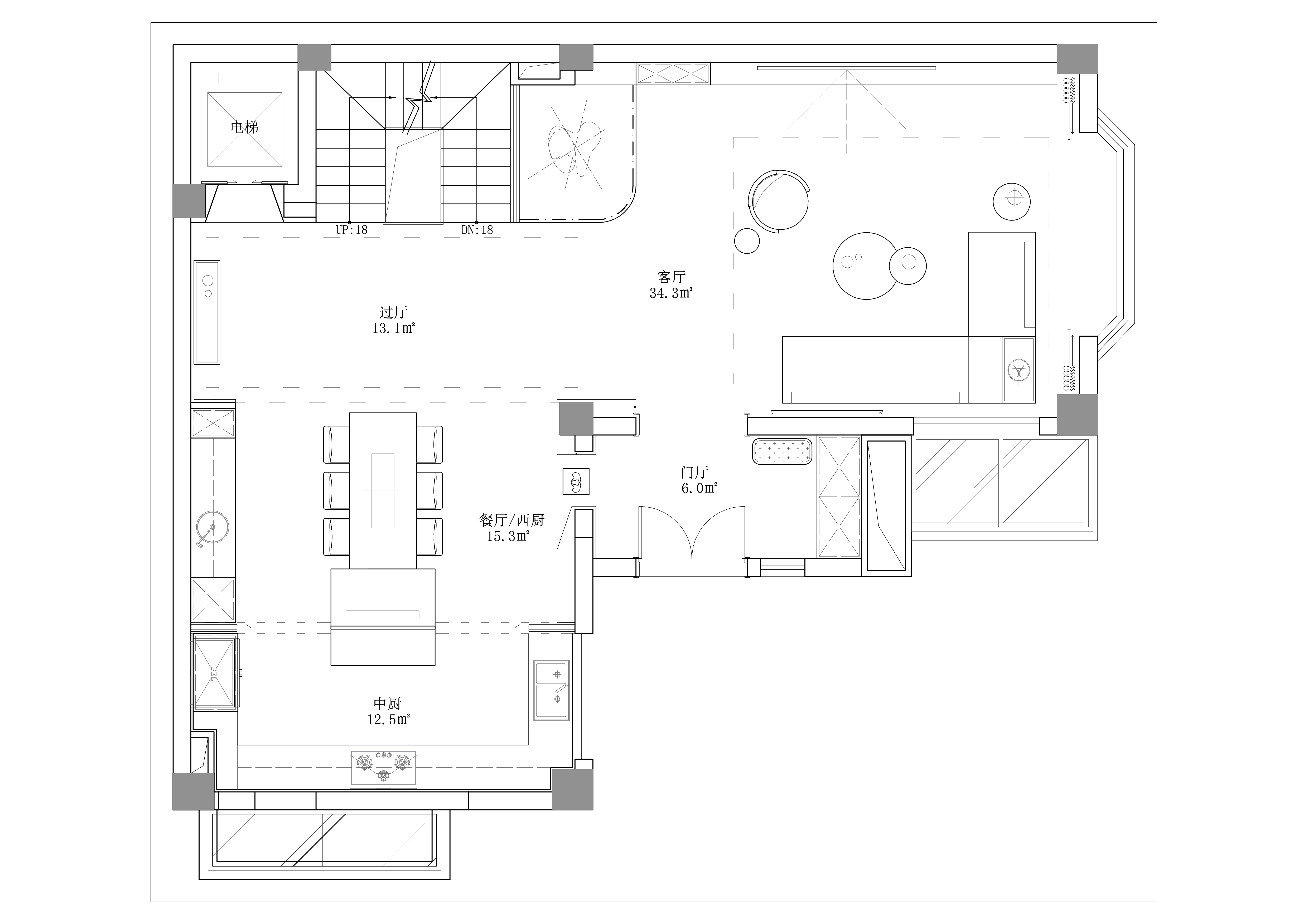
项目定位:原户型中一层不够通透,厨房和餐厅都偏小,对于一个正在生长中的家庭使用起来会产生诸多不便。我们把整个一层做了改建,打通后整体更加开阔,保证了客厅、餐厅、厨房的完整性。
-
空间意境:潮流易逝,气质不减,我们希望家历经时间而愈加经典,尽量简化装饰元素,以简约的线条和经典的色彩来表达,因此公共区域使用了不同色度的米和灰,织物、木材、石材相融合,平衡冷暖。
-
空间布局:一层入户后是开阔的客餐厅,以半隔断的方式与客厅相连接,光线和空气得以自由流通。整面墙的高柜拥有强大的收纳系统,集合了咖啡、烘焙功能。灰色水波纹的大理石与深灰色的柜体,以最经典的方式演绎当代年轻人的生活方式。顶部的透明灯具让空间更显轻盈灵动。
东芮最喜欢的Molly立于雕塑台上,与空间发生了有趣的对话。厨房里明媚的光洒在台面上,投射到地板上,一种田园般的平静光临了这个家,映着早晨清亮的时刻,孩子的喧闹声开启了这个家新的一天。
客厅里,白色的纱帘半遮掩时,光透过院子照射进来,忽明忽暗,在这光影里孩子摇摇晃晃长大了,这一幕仿佛就定格在家里,不管三年五载,情感愈加浓郁,而家一直优雅舒适。
1958年设计的HEART-CONE Chair在傍晚的阴影里鲜明而耀眼,以突破常规的几何线条勾勒出爱心的形状,富有强烈的表现力。椅子不仅仅只是一把供人休息的家具,它成为空间的一部分,是主人对家的理解,更是设计想要传达的温暖。
康德说,“独处的人沉思一朵野花、一只鸟、一只昆虫等等的美的形态,是为了赞美和爱它们,……对自然的美产生直接兴趣。”面朝庭院而坐,我们总会被那明洁清朗的天、静默而立的树、漂泊流动的云所吸引,这种无声的交流治愈着人。
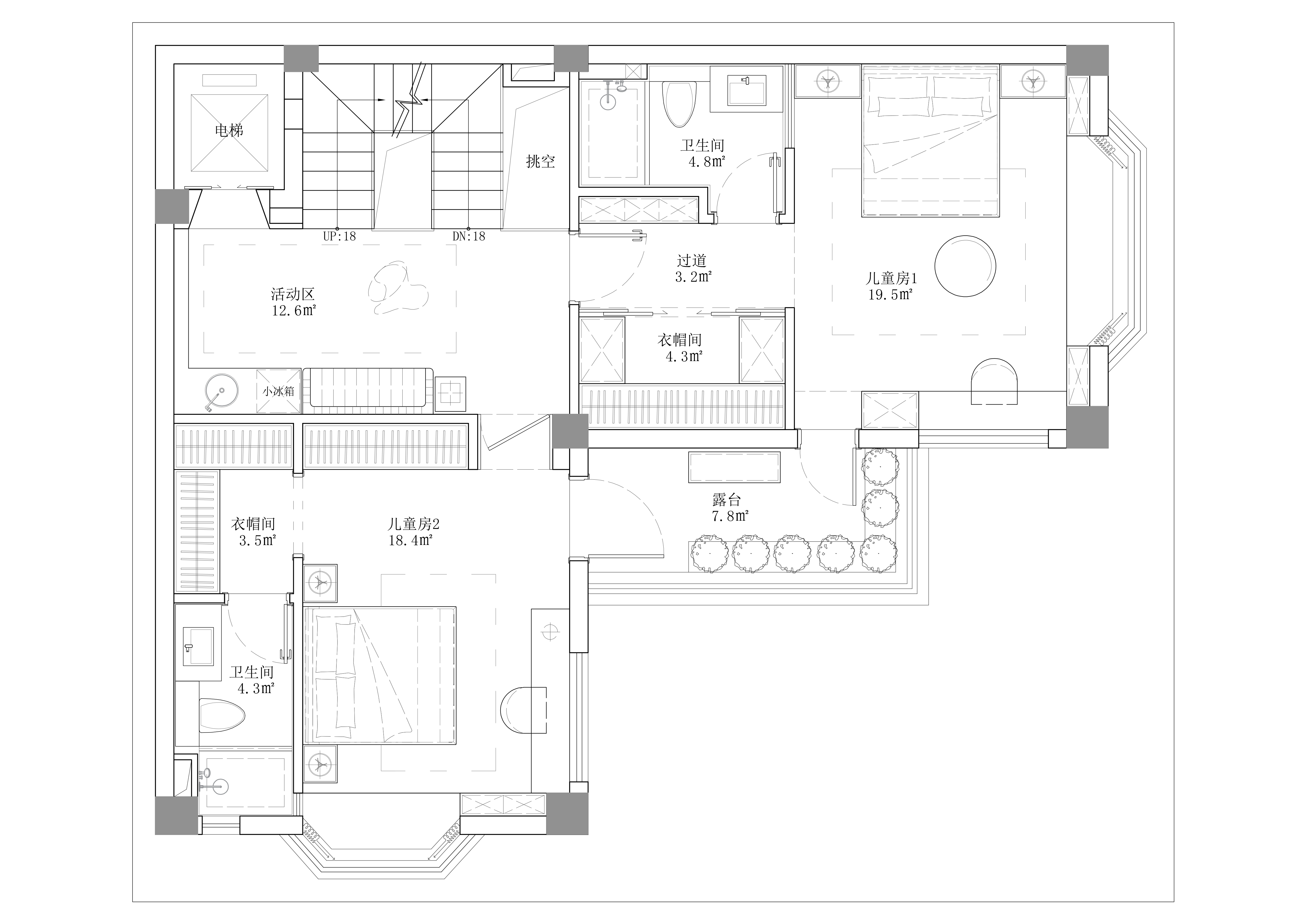
东芮希望这个空间除了承载全家人的生活,也可以完美的展示Molly玩偶,在上下的楼梯通道楼预留了挑空层板作为玩偶展示,展示区域的灯光也成为楼梯间的灯光,东芮收藏的玩偶们拥有了一个完美的“家”。 -
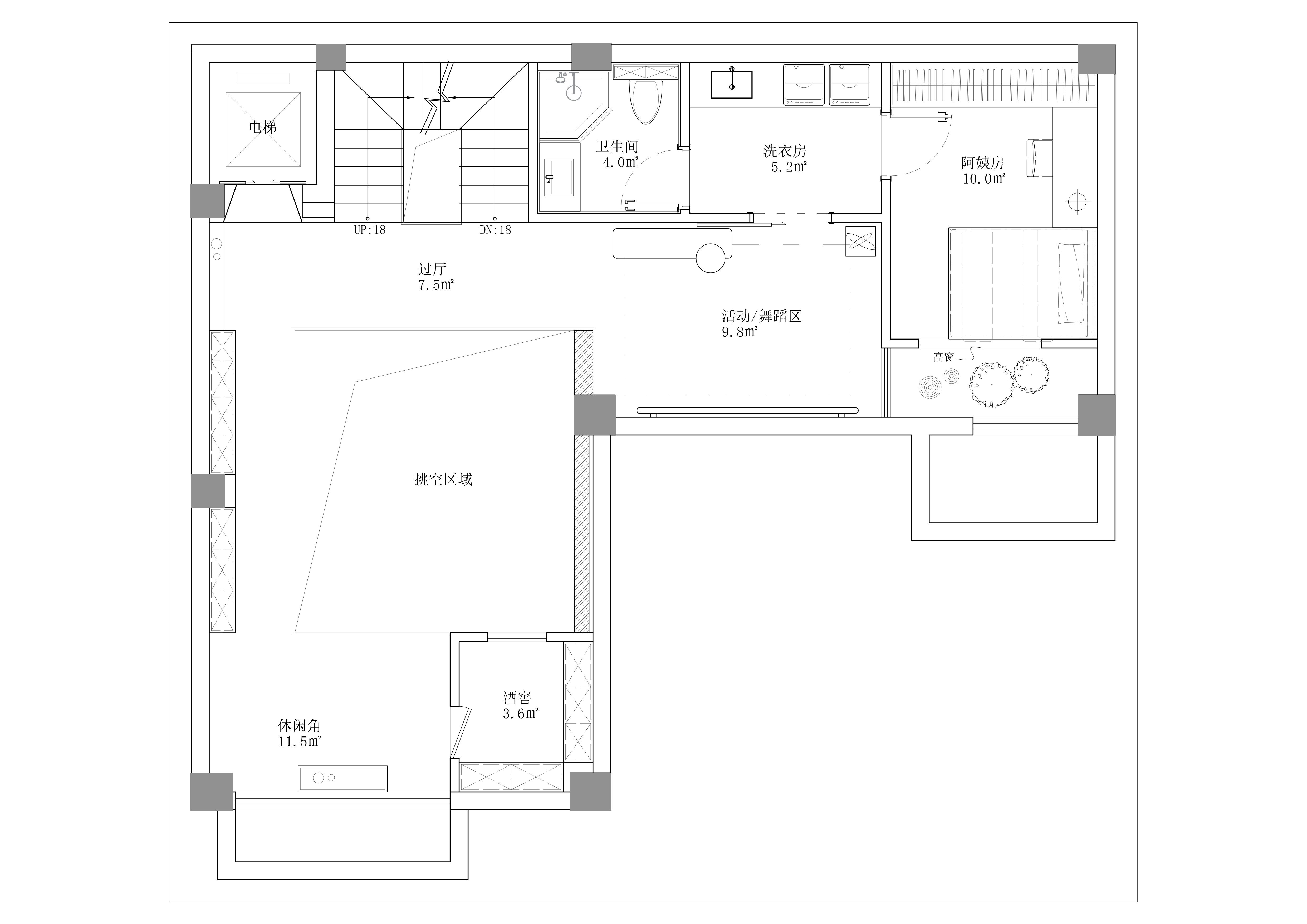
设计选材:原建筑的地下室存在几处缺陷问题,例如只有一个采光井,自然光只能到达B1层,B2层处于纯黑无采光的状态;管道杂乱,层高低;楼梯占用行走动线,两条楼梯动线混乱,地下室闭塞,且没有电梯。
在改造时增加了一个采光井,从而让光线能到达B2层,拆除原有楼梯重新规划格局,不仅增加了电梯功能,还让整体空间更加舒畅、和谐、开阔,只有空间舒适了才能留得住人。
向上的挑空让地下空间更开敞辽阔,线条简洁硬朗,FLOS的线性灯垂坠而下,将纵向空间连通起来。灰色的花瓣沙发后陈列着满满一柜子的Molly,可爱的元素与中性的空间相碰撞,产生了无限的乐趣。钓鱼灯的曲线中和了空间的硬朗。当脚踩在柔软的地毯上,倚靠着沙发,孩子在眼前嬉戏,与心爱的物品相伴,轻松愉悦的氛围足以消解一天的疲劳。
原建筑因为车库高于室内造成入户后存在踩空的危险,利用一步台阶消减落差,解决安全隐患,也增强了独立门厅的仪式感。顶面采用了不锈钢的材质,让空间更显精致,又消解了层高的局限性。
我们希望探索材料、空间秩序和几何比例,以木饰面、大理石、艺术涂料等自然的材质与色彩,在空间中碰撞营造温润雅致的面貌,透明的柜体增加了空间的通透性,在光、自然和品质下,用不同的语言构建新的秩序。 -
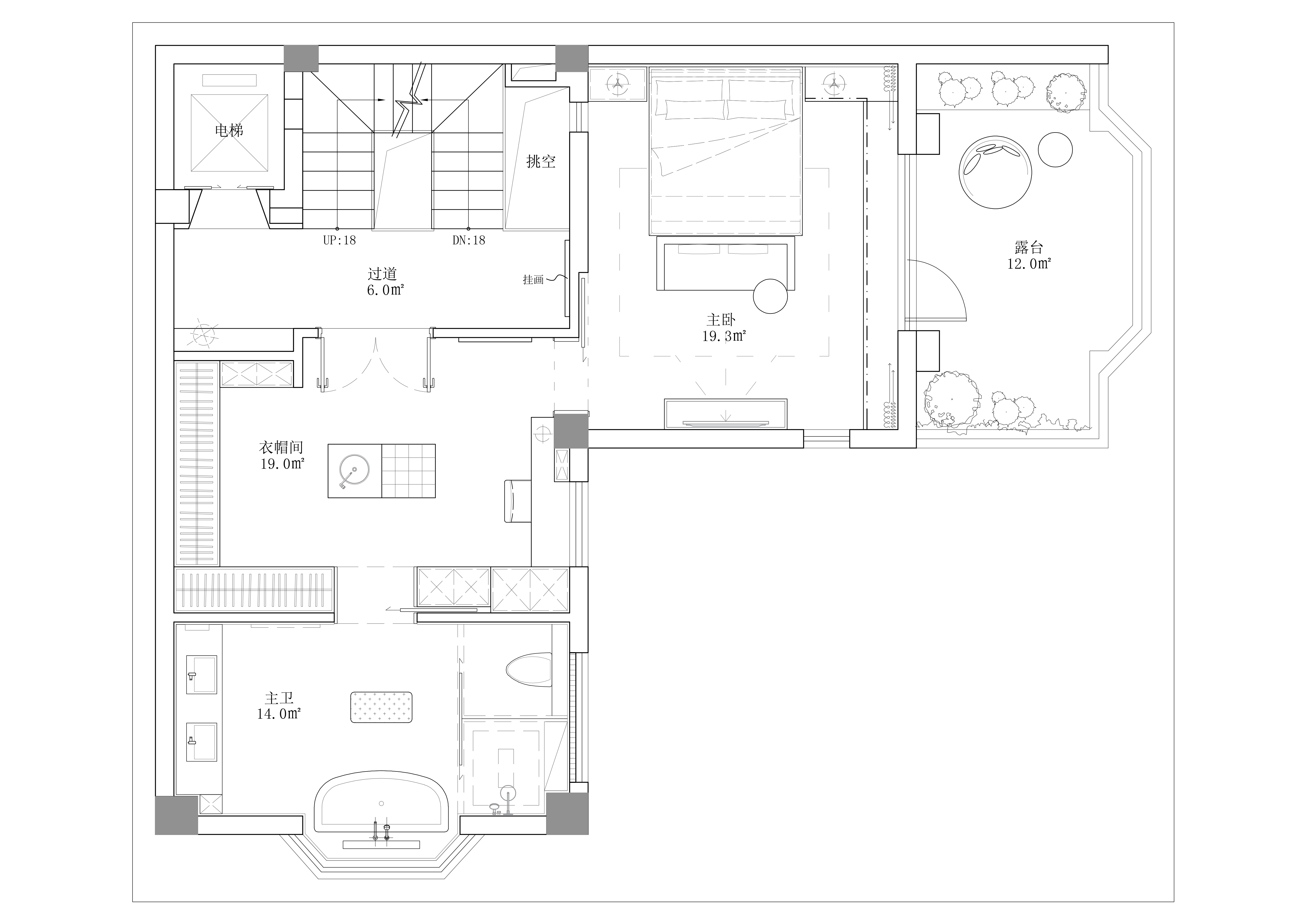
用户体验:普鲁斯特在《追忆似水年华》里描述了一个让身体舒适的卧室空间,“睁眼凝望黑暗中光影的变幻,凭着一闪而过的意识的微光,我消受着笼罩在家具、卧室乃至于一切之上的朦胧睡意,我只是这一切之中的小小的一部分,很快又重新同这一切融合在一。”
主卧套房结合了宽阔的衣帽间和卫生间功能,女主人东芮美丽优雅,对于衣帽洗漱功能要求极高,卫生间是她的疗愈之地,因此需要确保动线的合理便捷,以及使用的舒适。
休憩区功能简单,以极简的黑白灰勾勒出宁静的氛围,米色与黑色拼接的床头背景冷暖融合,让人进入空间的一瞬间身体变得松弛起来,躺在柔软的床上,直到自然醒来,被家注入新的能量。
女儿房选择了温柔的粉色,以低饱和度呈现,奶油白与粉色拼接的床头背景,优雅的法式线条勾勒出甜美的气息,将童真与优雅平衡的恰到好处,满足了孩子不断成长的需求。卫生间也使用了不同色度的粉来装饰墙面和柜体,让心也跟着柔软了起来。
一个舒适的家不在于是否奢华,而是一切都恰到好处。空间的尺度刚好让人能舒适地行走,将人温暖地包裹其中,一切的形式被淡化后,经典永存,加之主人的小趣味得到照拂,每一天的生活既有人间烟火的真实感,又有幸福浪漫的治愈力。
0
0

认证 · 让您身份增值