新华路一号
157
作品说明
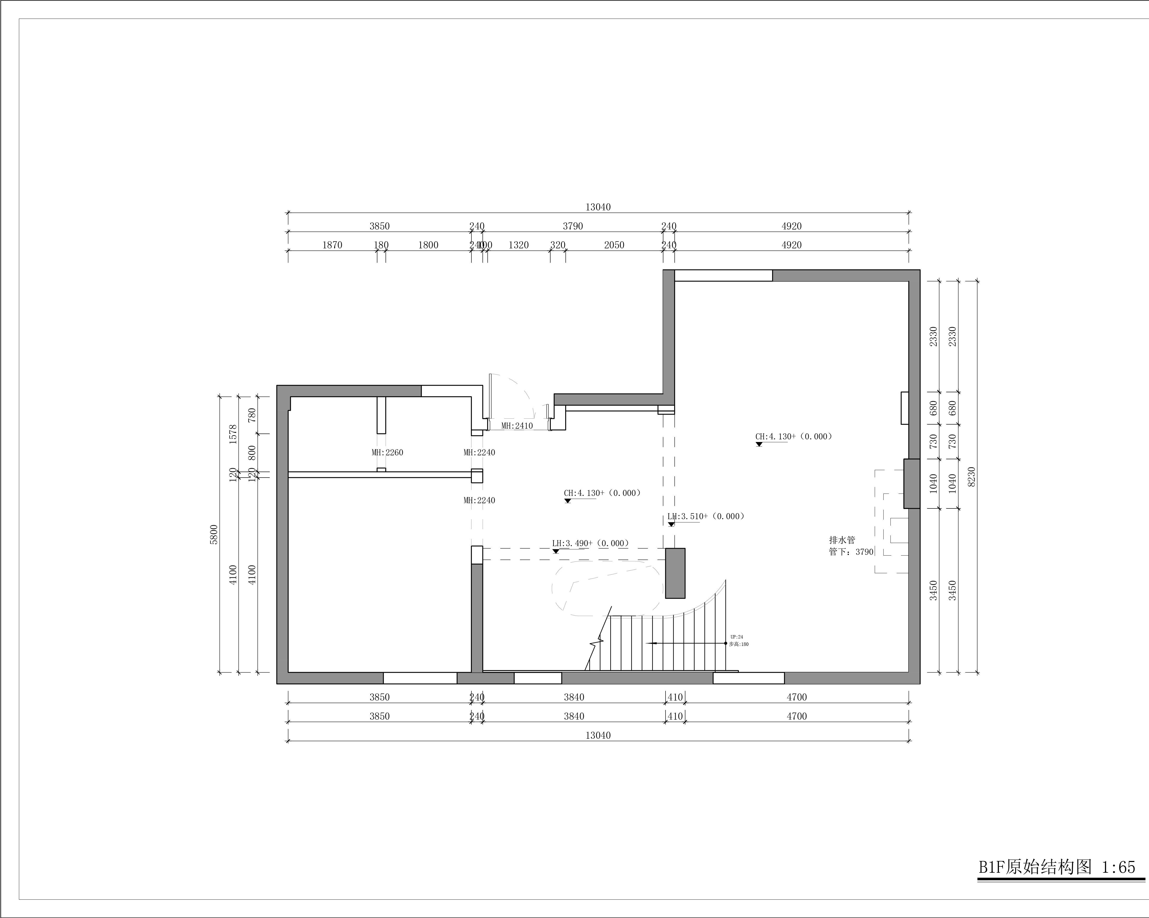
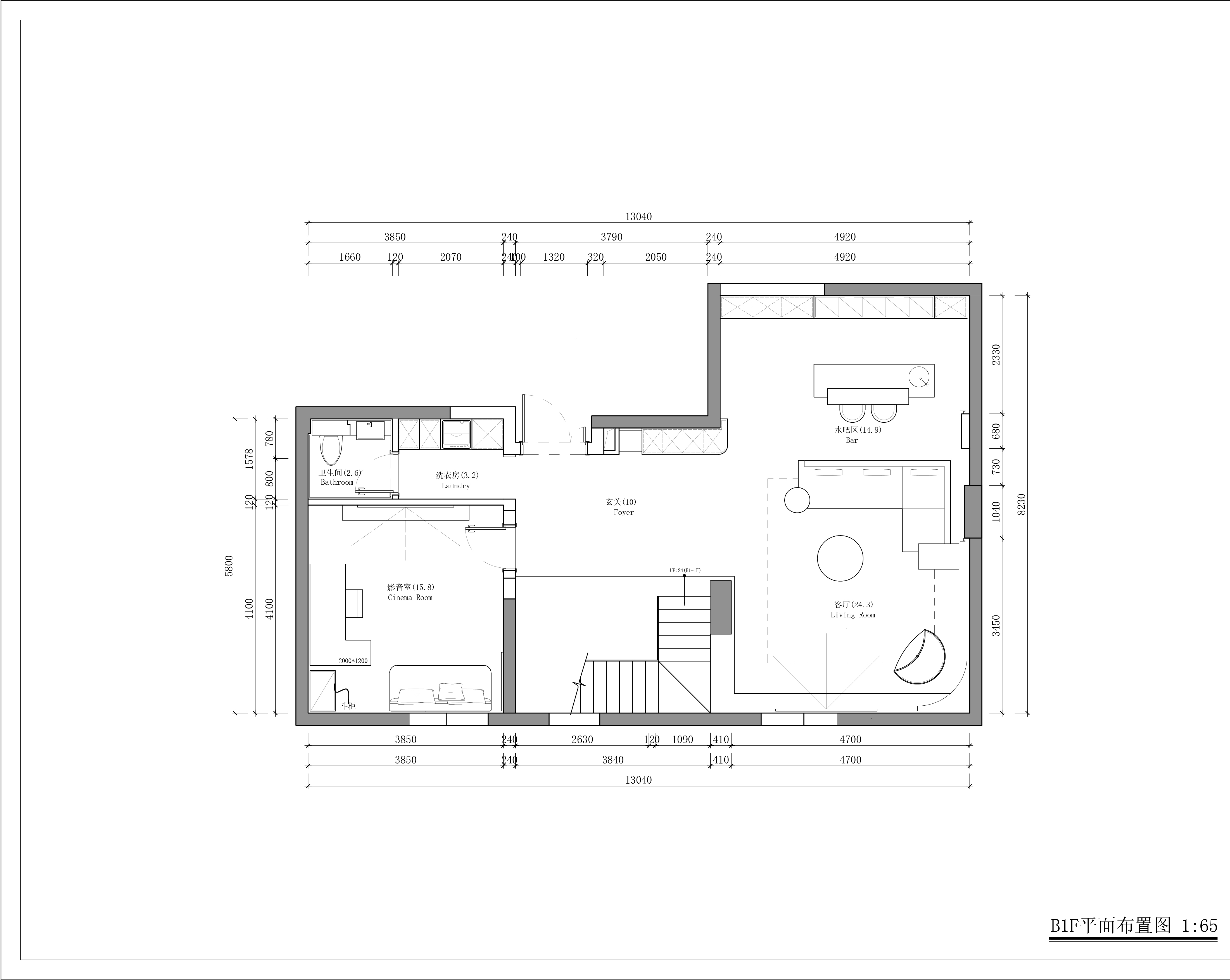
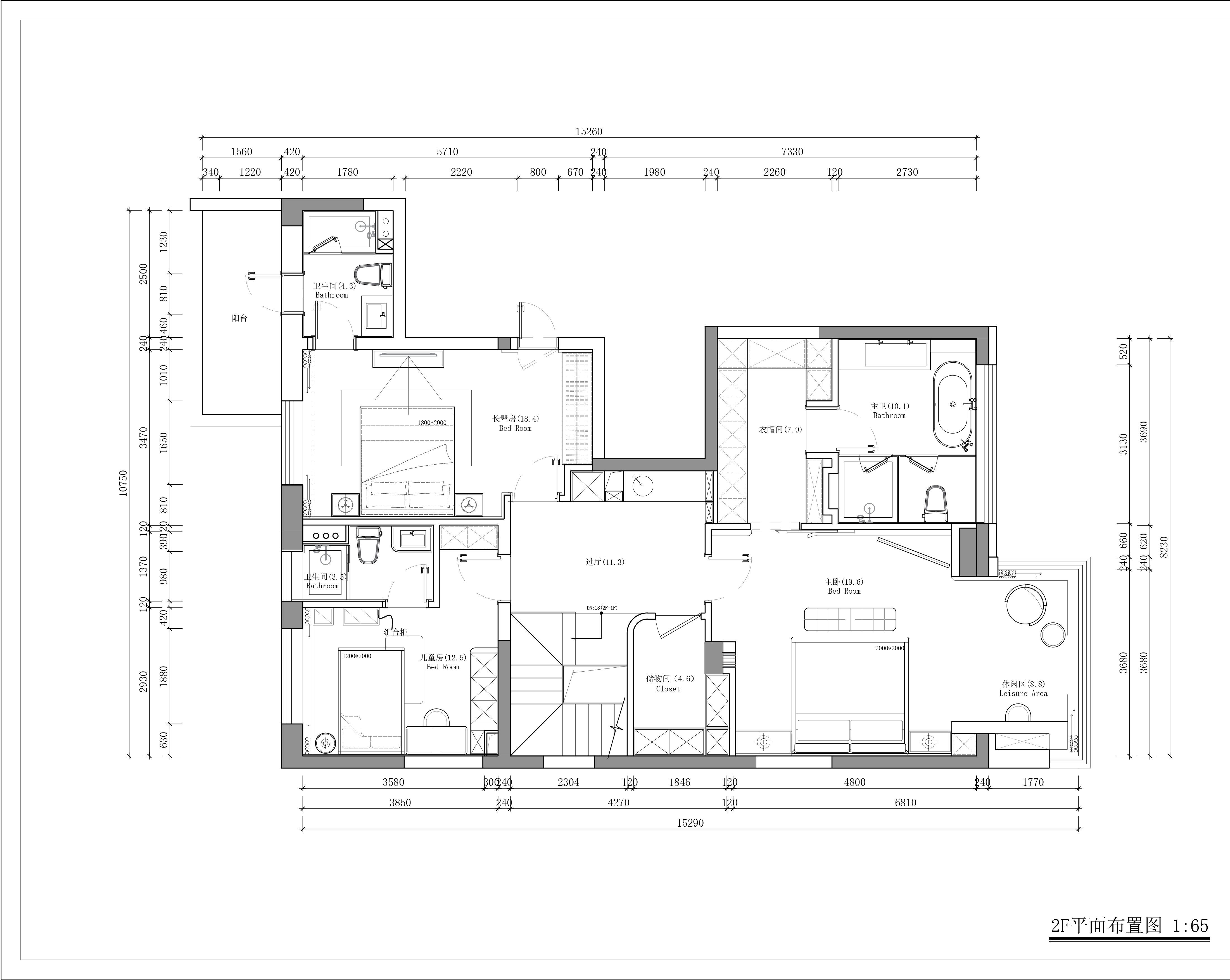
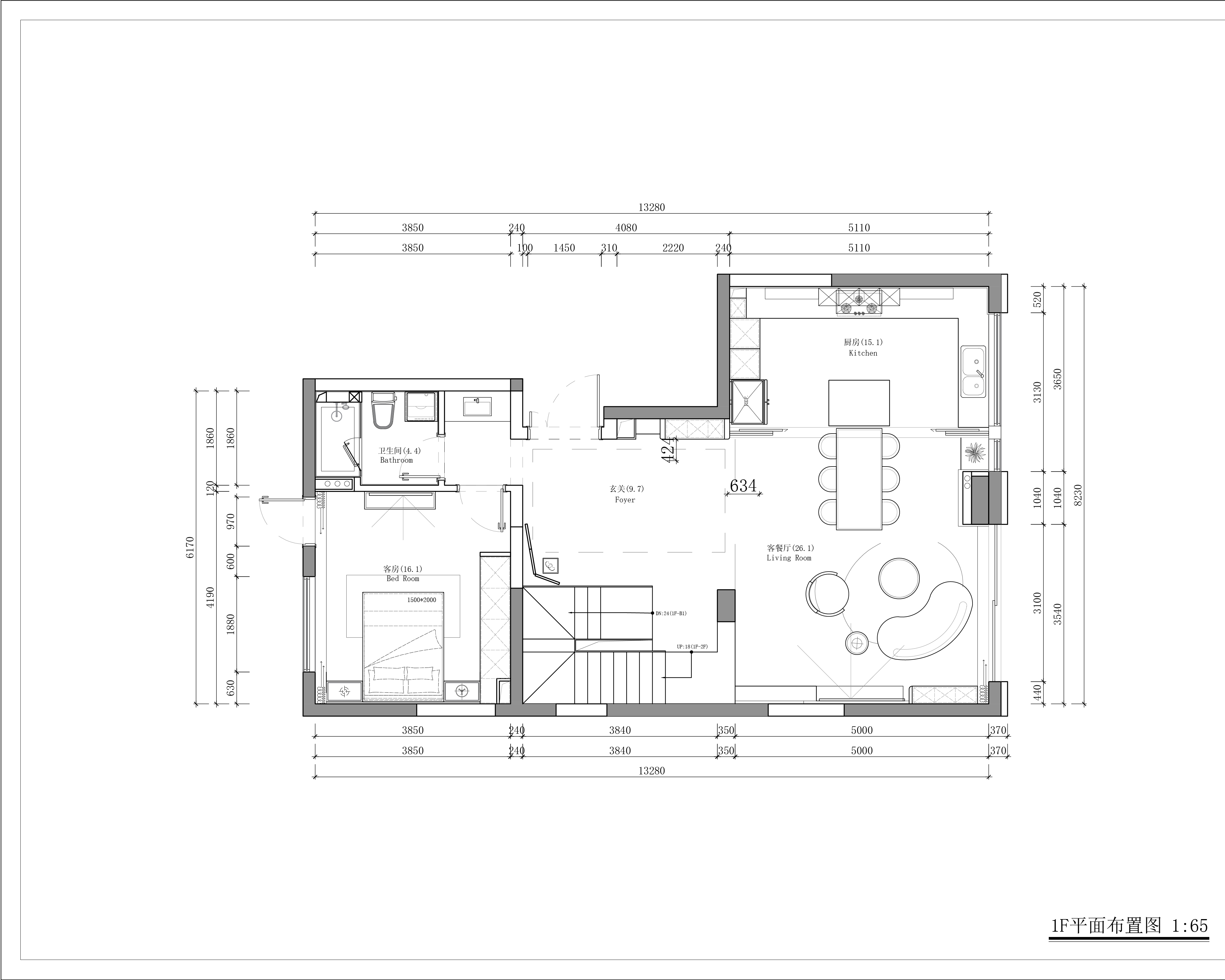
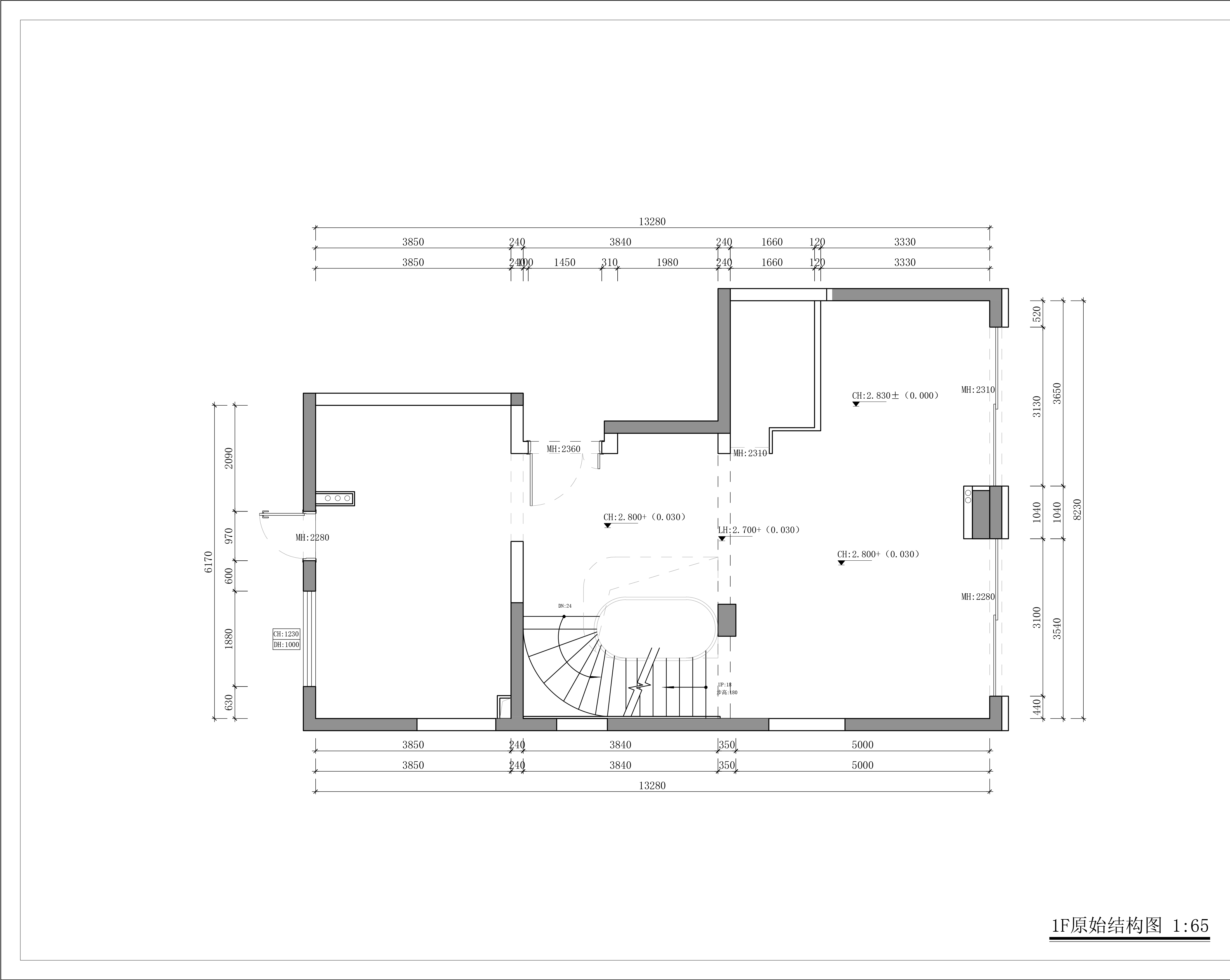
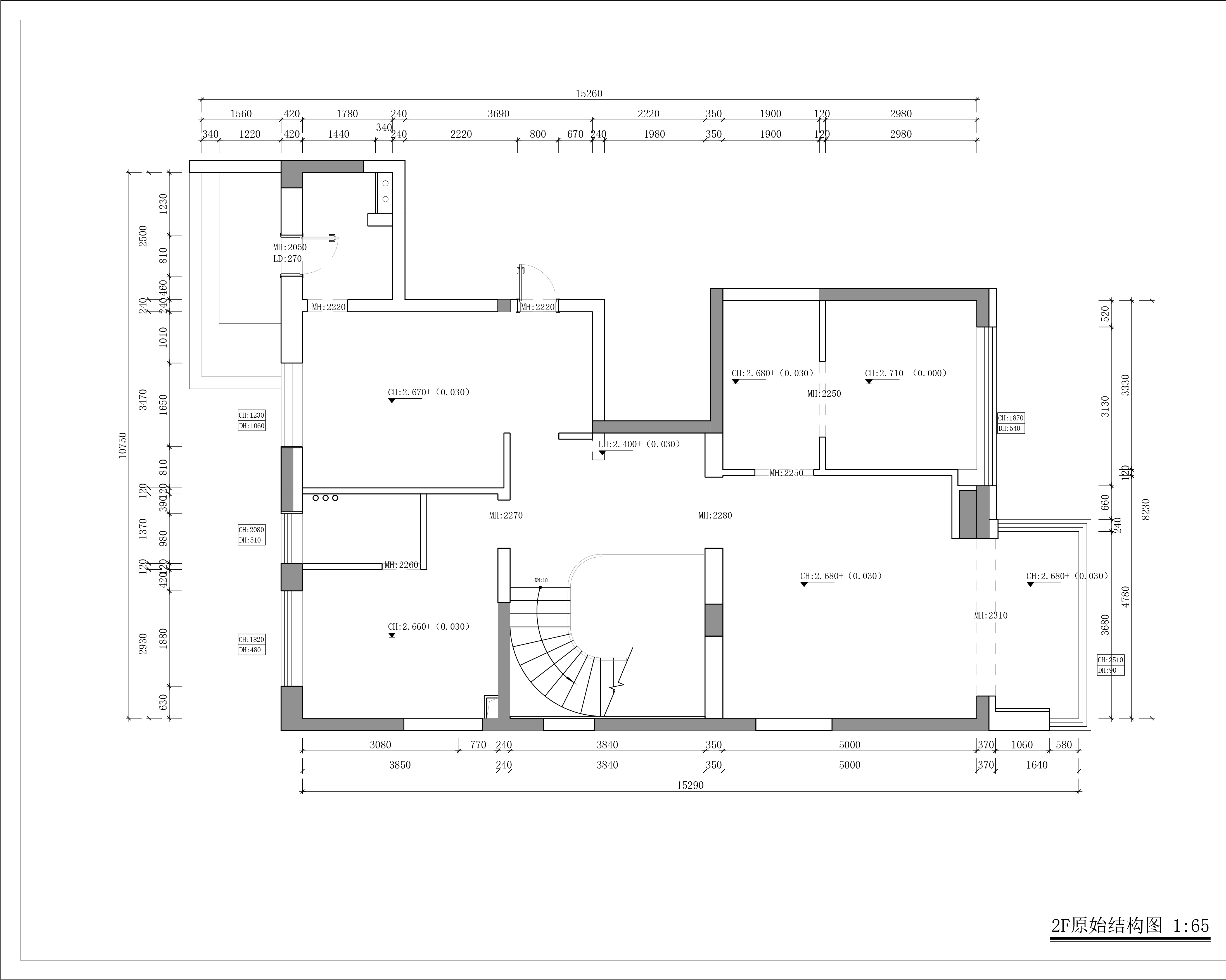
- 项目类型:别墅
- 项目地点:上海市
- 建筑面积:300㎡
- 项目造价:350万元
- 主案设计师: 金园圆 郭杨宜
- 参与设计师:金园圆 郭杨宜
- 竣工时间:2024.12.31
- 设计机构:风起时设计
-
项目定位:都市人每天在室内的时间占据全天的85%以上,大多数人超过20小时,我们与自然之间保持着微薄而脆弱的联系。是钢筋水泥筑成的封闭堡垒,将我们与自然割裂?
都市的居住空间常常像精致的牢笼:恒温的空调取代了四季的风,人造光源掩盖了晨昏的变化,隔音玻璃阻断了雨滴和鸟鸣。我们躲在安全的水泥盒子里,却不知不觉切断了与自然最本真的共鸣。
作为住宅室内设计师,我们希望家成为一座桥梁,重新连接我们与阳光、空气、草木。在家的每平米空间中,都能让居者与自然、情感产生连接和互动,这是住宅设计更本质的需求所在。 -
空间意境:人应该顺着自然所给的本性,像鱼虫草木一样。因此,住宅应当回归它的使命,让空间像树一样呼吸、像水一样流动、像土地一样包容。我们要拆除的不仅是多余的隔墙,更是人与自然间的屏障,让住宅的边界变得柔软,允许自然渗透进来,也允许生活向外延伸。
我们选择将工作室藏在富民路的梧桐树下,不是为了逃离,而是在快节奏的繁华中,寻一处让人慢下来的地方。清晨,咖啡豆的香气四处飘散;雨天,雨水敲打梧桐叶;冬日脚下踩碎的枯叶……那些细微的动静,当人慢下来时都可以逐渐放大成诗。 -
空间布局:风,不可见,但有声音、气味、形态、触感,我们开始懂得,设计不应被效率掌控,回归自然本质、追求身心平衡才能真正读懂生活。
无数的设计大师都是以自然为师的,他们观察风的流动、光的变幻、植物的生长,从中提炼出设计哲学,有机的形态、动态的平衡、生长的适应性,自然界的智慧被转化为实用设计。真正的智慧,不在于复刻它的形态,而在于理解它的逻辑。
建筑从来不是孤立的实体,而是一场关于边界的思考,当室内外的空气、光影、声响开始自由渗透,建筑便褪去了封闭的壳,成为人与自然相互滋养的媒介。
对风起时而言,一种自然而然存在的空间,不以造型和风格为优先级,真实触感大于视觉仿真,动态交互比静态陈设更加重要,让材质本身诉说自然的故事,让结构承载光影。
我们希望将风、光这些生命能量带入到空间中,空间永远在生长,没有完美,只有更好,逐渐变成情感体验场,让人向外拥抱自然,向内回归真心。 -
设计选材:老子说,“凿户牖以为室,当其无,有室之用”,建筑的价值不在于实体墙壁,而在于围合出的「空」,是容纳生活流动的场所。苏轼说,此心安处是吾乡。林语堂说中国人对居住的终极理想,“宅中有园,园中有屋,屋中有院”。在阿尔瓦·阿尔托的人文关怀里,他说,建筑不能拯救人类,但好的空间能让生活少一点绝望。
这些跨越时空的智慧,最终都指向同一真理,真实的生活是人存在的意义。诗意的栖居要满足精神与物质的双重需求。
真正关心居住者的生活习惯、家庭关系和情感需求。通过深入了解,创造出符合需求的空间,让设计真正服务于生活。我们不做生活的导演,而是成为居住者与空间对话的翻译,将那些未被言明的需求、未被察觉的渴望,转化为可触摸的解决方案。 -
用户体验:风起时的价值观里,我们坚信,设计源于生活,且服务于生活。因此,尊重生活是我们设计工作的出发点。我们通过细致的观察、深入的交流以及亲身的体验,去了解人们的生活方式、习惯和情感需求。这样,我们才能创造出真正符合人们需求的设计,让设计融入生活,成为生活的一部分。
我们深知专业知识和技能在设计中的重要性。设计是一个跨学科的领域,涉及建筑、室内、平面等多个专业领域。不断学习、探索和创新,严格遵守行业规范和标准,确保每一项设计都是专业、高品质的。这不仅是对客户的负责,更是对自身职业发展的要求。
0
0

认证 · 让您身份增值