黄浦江畔的家
148
作品说明
- 项目类型:住宅公寓
- 项目地点:上海市
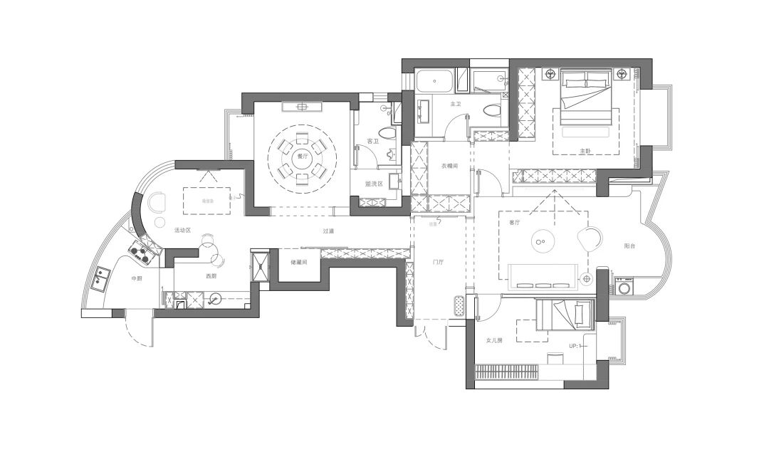
- 建筑面积:150㎡
- 项目造价:180万元
- 主案设计师: 金园圆 郭杨宜
- 参与设计师:金园圆 郭杨宜
- 竣工时间:2024.12.31
- 设计机构:风起时设计
-
项目定位:浩浩荡荡的黄埔江,见证了上海从荒凉到繁华的变迁。沿江景点聚集,复古的万国建筑群,外白渡桥,陆家嘴“三件套”……汇成上海最火热的打卡地。玲珺的家即坐落于黄浦江畔,十几年的居住史,这里依然四方通达、处处是霓虹,而一家人的生活舒适度,却越来越囿于原始的空间布局。
此时的老房子存在收纳不足、空间浪费、缺少休闲区等一系列问题,迫切需要梳理新的生活方式。设计师结合主人的需求,重塑功能分区,将法式的雅糅合现代的简,不受物象之困的空间,以本真示人,成为静雅生活的私享地。 -
空间意境:步入客厅,米白和浅灰大面积铺陈,纯净、温和的氛围,似拂去了一切尘杂,沁润心扉。此时,无需过多的语言,一任情绪蔓延,去感受家柔软的呼吸,触摸它静时的灵魂,以消解烦忧,寻觅安乐。
对收纳的优化,是整个家改造的重点,同时考虑到了主人的观影需求。电视墙被设计为整面的收纳墙,能放置一家人半数的生活杂物;搭配同色系帘幕,避免凌乱感之余,又为空间注入和谐统一的视觉节奏。 -
空间布局:改造前入户无玄关,经由世界归家,没有仪式感,自然削弱了“归”之于人的特殊意义。设计师在玄关造景,简单的法式线条,突显出眼前的画卷,往前走,即是缤纷天地的开启,幸福生活的旖旎想象。
-
设计选材:心向简约的人,才能不疾不徐、从容穿行生活之网。精心挑选的各类物品,渲染出家的张弛有度。顺之其本然,让所有情感纯粹流淌,充盈独属于家宅的深刻记忆。
夜晚,城市华灯初上,家中的一抹灯光却是所有人的向往。倚靠在柔软的沙发上,阅读喜欢的书籍,或欣赏一部收藏已久的老电影,属于家的温馨时光,如此慢慢写就……
人间烟火事,藏着最质朴、纯粹的乐趣。它不以宏大叙事,而是引导人接受生活微末却真实的一面,不厌烦于连绵的琐碎,一餐一食皆投诸用心。当味蕾得以饱足,人才能去品味和相逢更多样的生活意趣。
将原来闲置的房间打开,改为餐厅,宽阔的空间极大提升了使用体验,承载得下更多的家庭欢聚的片段。留白的框架下,设计师填充以颇具特色的装饰单品,亮眼的形与色,烘托出轻松不拘的空间格调。
一道拱门,定格餐桌上的笑语时分。围桌而食,一家人彼此关怀与倾诉,光顺着窗户照了进来,和着浓烈的爱意表达,在整个空间里游动。
旧有的厨房缺少延展空间,无法满足主人喝咖啡、做料理的需求。改造后,原本堆放杂物的小阳台,“变身”为中厨,以适应不同的使用场景。整个餐厨空间,功能完善,家庭成员们在区域间交织互动,归属感和幸福感将他们连接在一起,演绎当代都市生活的美好图景。
通往餐厨区的长过道,原本功能十分单一,设计师增加了整排的收纳柜,让过道焕发新生,整个家的储存力也大大提高。 -
用户体验:生活由我们自己来雕刻,它甚于设计本身。想要哪种生活,就得去细细打磨它,拥抱它,然后守护它。吧台和休闲角由原建筑餐厅改造而成,如今成了一家人最喜欢的地方之一。静谧之中,柔纱、光影相映成诗,这里让心栖息,更为自我的成长凝聚了可能性。
关于建筑,彼得·卒姆托曾这样描述:它应是一个外壳和后台,适于我们的生活在其间和其周围延续;是一个灵敏的容器,适于楼板上的脚步声,适于专心工作,适于安然睡眠。家的意义囊括方方面面,最终归结于行走止息。
主卧克制表达中,亦流露出丝丝柔情;平和清浅的气质,如月光般安抚主人夜夜好眠。丰富细腻的用色层次,以及尺度足够的衣帽间,共同构筑空间的温度,并于生活的点滴中不断流动,给予主人恒久的品质享受。飘窗上的收纳柜既增加了存储空间,又解决了杂物堆放问题。
主卫调整了细节,将设计的人性化贯穿始终。晨起清新漱洗,夜间拭去疲惫,一次次身心的洗礼,让生活的步履不再慌张匆忙,安定的秩序感被重新拾回。
经由岁月磋磨沉淀,却始终贴近人的需求,好的家宅不外如是。它以高度的功能凝结力和审美,让家的深层意蕴经得起时光的考验和品读。从简中拾趣,回溯到内在感知,人从纷杂世事中走出,向内在的真实自我走去。
0
0

认证 · 让您身份增值