奥体海棠园
0
作品说明
- 项目类型:住宅公寓
- 项目地点:南京市
- 建筑面积:166.0000㎡
- 项目造价:60.0000万元
- 竣工时间:2025年10月1日
-
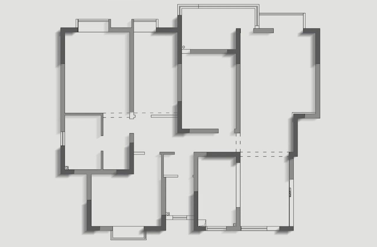
项目定位:空间结构重构策划:打破传统户型界限,公区全打通设计,重点拆除厨房墙体,打造环形西厨区,既提升空间通透度,又构建社交互动核心场景(朋友围绕互动);利用阳台 T 型墙 “偷空间”,嵌入隐形家政间,通过木移门实现功能区隐藏,保持视觉整洁。
动线与功能融合策划:以 C 位沙发为中心设计环形动线,优化空间流通性;整墙胡桃木柜兼顾收纳与装饰属性,暗藏实用功能;主卫门创新设计三个透光孔,既解决采光问题,又实现 “通光不透影” 的隐私保护,平衡实用性与美学。
材质与色彩搭配策划:选定 “餐厨区地砖 + 墨绿色小砖” 的撞色组合,搭配胡桃木复古门,通过材质对比强化中古风复古调性;色彩与材质的选择围绕 “复古撩人” 核心,不堆砌元素,而是通过细节碰撞营造氛围。 -
空间意境:空间结构创新 —— 公区全打通设计:打破传统分区壁垒,以通透感重构中古风空间逻辑,搭配餐厨区地砖 + 墨绿色小砖的材质碰撞,让复古调更具呼吸感。
功能融合创新 —— 厨房墙拆除 + 环形西厨:突破中古风厨房封闭局限,通过拆墙扩容实现「烹饪 + 社交」双功能,环形布局强化互动属性,契合现代生活场景。
动线与收纳创新 —— 环形动线 + 隐藏式设计:以 C 位沙发串联空间动线,整墙胡桃木柜兼顾储物与复古质感;阳台 T 型墙嵌入隐形家政间,木移门遮挡晾衣架,实现「美观 + 实用」的隐形收纳革新。
光影与细节创新 —— 主卫通透艺术设计:门上三孔设计打造「通光不透影」效果,在中古风的沉稳基调中注入松弛感与艺术感,打破传统卫生间封闭沉闷的痛点。
材质搭配创新:胡桃木复古门与墨绿色小砖、地砖的组合,跳出中古风单一材质局限,通过撞色营造「复古又鲜活」的视觉层次,避免风格沉闷。 -
空间布局:公区全打通设计
厨房墙体拆除 + 环形西厨打造
环形动线 + 整墙收纳一体化
阳台 T 型墙隐形家政间
主卫门透光设计创新 -
设计选材:「地砖 + 墨绿色小砖」拼接设计,既保留中古风复古质感,又通过局部小砖点缀降低大面积高端地砖的使用成本,同时小砖更耐脏易打理,适配餐厨高频使用场景;搭配胡桃木复古门,天然木材与瓷砖的材质碰撞,兼顾复古调性与实用性,避免单一材质的视觉单调。
-
用户体验:入住 166㎡中古风小家太治愈啦!公区通透到连风都能自由穿梭,复古细节越品越有味道~ 感谢团队把我的设想落地,每天宅家都幸福感爆棚,这才是理想生活呀!
0
0

认证 · 让您身份增值