润• 内敛于心而隐于室
0
作品说明
- 项目类型:住宅公寓
- 项目地点:南京市
- 建筑面积:143.0000㎡
- 项目造价:60.0000万元
- 竣工时间:2024年12月1日
-
项目定位:这是我们装的第三套房子,每一次都有用心的对待。不活在过去也不惧未来,就在当下给家人营造想回家,倍感温暖的地方。爱可以让我们内心柔软,美的环境也可以滋润心灵。
时间让我们对生活有了更温柔的理解,更多的感悟。想要的空间是放松的,温暖的,婉约但考究,深厚与优雅,慢下来的生活方式。以这一切为核心展开设计方向。 -
空间意境:材质融合的质感创新:将木质材料的细腻纹理与暖色流动质感微水泥结合,通过材质本身的肌理碰撞,营造柔和且富有层次的空间氛围,打破单一材质的视觉单调。
空间设计的呼吸感创新:长走廊特意预留 “留白” 空隙,避免空间压迫感,为视觉提供喘息空间,让功能性空间兼具美学松弛感,而非单纯追求紧凑布局。
功能分区的灵活创新:
书房采用半开放式设计,以弧形墙增加空间趣味性,既保障学习的静谧性,又保留与家人的互动可能,同时预留独立书桌,适配不同阶段的独处需求;
阳台分拆为晾晒区与地台休闲区,用一扇门实现 “实用” 与 “梦想” 的功能隔离,兼顾美观与实用性。
造型语言的温润创新:整体融入圆弧造型,搭配圆形餐桌、灯饰,以圆润线条替代棱角设计,既强化空间的亲昵感,又呼应家人围坐的温馨场景,传递质朴雅素的生活氛围。
人性化细节的适配创新:
儿童房收纳设计兼顾 “展示” 与 “收纳” 双重需求,适配孩子从外向到内敛的成长变化;
暗卫配置感应灯 + 感应换气扇,无需手动操作即可自动触发,提升使用便捷性与舒适度;
主卧改造衣帽间与书桌台,嵌入镜面柜门,优化空间利用率的同时满足个性化生活需求;
父母房采用内嵌电视柜设计,贴合长辈看电视的生活习惯,兼顾实用性与空间整洁度。
情感化设计的场景创新:将居住者的生活轨迹、成长历程与教育理念融入空间设计,如 “渐行渐远的教育修行”“预留独立空间” 等设计巧思,让空间不仅是物理容器,更成为承载情感与成长的载体,实现 “有爱、体察居住者感受” 的风格内核。 -
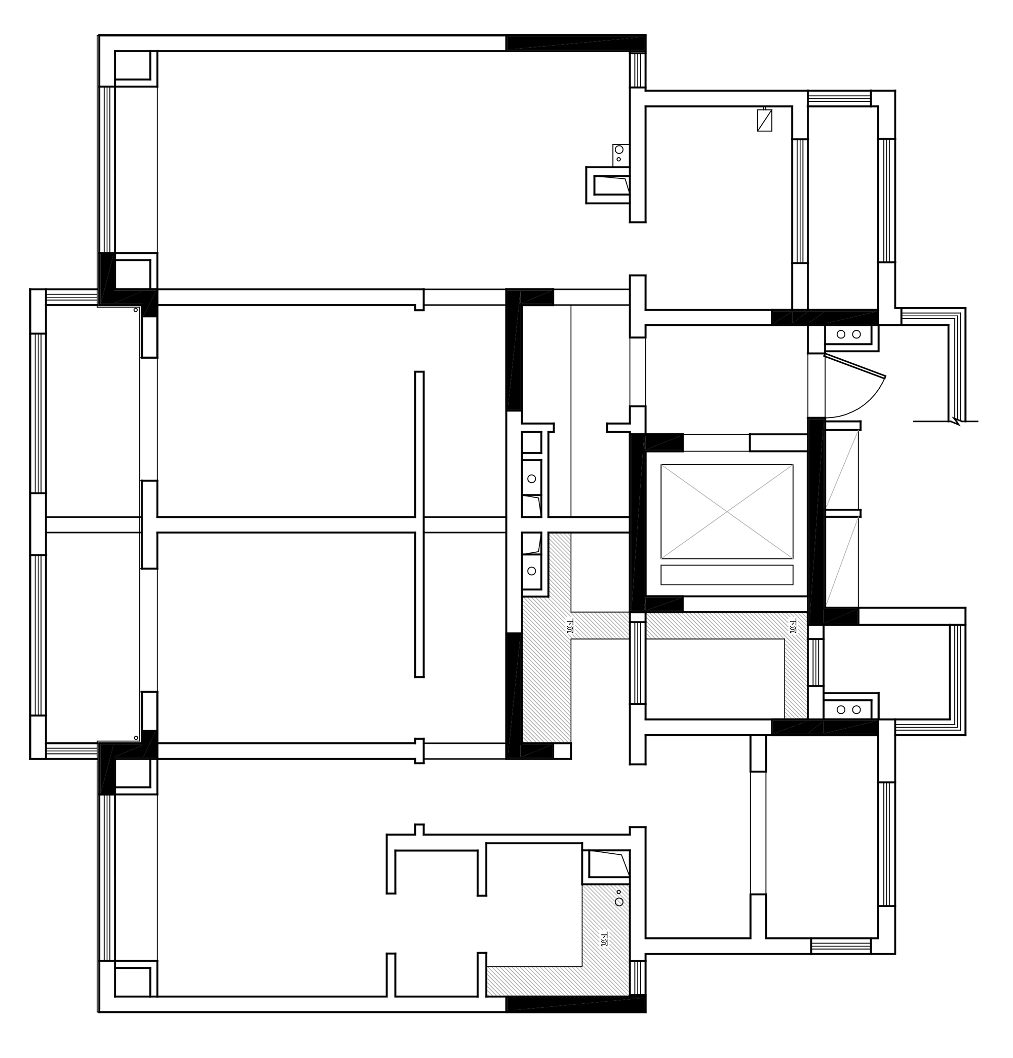
空间布局:走廊巧思设计:长走廊预留视觉空隙,通过 “留白” 手法赋予空间呼吸感,避免狭长空间的压抑感。
半开放式书房布局:兼顾隐蔽性与关联性,既满足安静学习需求,又能随时与家人互动,同时预留独立书桌,适配成长过程中 “独处不被打扰” 的潜在需求。
阳台功能分区:将阳台划分为晾晒区与地台区,以一扇门实现功能分离与场景切换,兼顾实用性与休闲属性。
主卧空间重构:改造原卫生间为衣帽间 + 书桌台,部分柜门整合镜面设计,优化空间利用率,实现生活功能的多元融合。
儿童房弹性收纳布局:床尾设置衣柜 + 书桌,床边预留展示柜,同时保留收纳灵活度,适配孩子从 “外向展示” 到 “内敛收纳” 的成长变化。
父母房嵌入式设计:采用内嵌电视柜布局,贴合父母看电视的日常需求,兼顾空间整洁度与使用便利性。
暗卫人性化布局:搭配感应灯 + 感应换气扇,无需手动操作,解决暗卫采光、通风痛点,提升使用便捷性。
全空间圆润元素整合:走廊、书房弧形墙 + 圆形餐桌 / 灯饰,通过线条呼应增强空间柔和感,同时适配家人围坐的亲昵场景需求。 -
设计选材:新风、 系统窗 、二联供空调+地暖、 投影仪 、嵌入式蒸烤箱 、 零嵌入式冰箱 、洗碗机、 感应换气扇 、人体感应呼吸灯、 嵌入式踢脚线 、 磁吸轨道灯 、线性灯、 壁挂式马桶、暗埋式龙头、暗埋式花洒、厨房和衣帽间 (口袋移门)、阳台暗藏晾衣架设计 、偏轴百叶门 、白色烤漆门板、白色PRT门板、实木皮护墙板、顶面KD板、 微水泥地砖、 墙顶面微水泥、核桃木多层木地板......
-
用户体验:入住新家快半年,每一处都藏着治愈感~ 温润木纹配暖调微水泥,长走廊的留白、弧形墙的巧思,让家满是呼吸感。半开放书房能陪娃学习也能随时互动,圆形餐桌总围满欢声笑语,阳台地台是我的放空小天地。孩子房间的收纳藏着成长轨迹,父母房的内嵌设计贴合他们的习惯,暗卫的感应灯超贴心。
好设计从不是堆砌,而是懂你所需的细心体察。感谢设计师把我们对家的期待,变成了日常里的温柔具象,让奔波在外的我们,总能在这里找回宁静与归属感
0
0

认证 · 让您身份增值