启
0
作品说明
- 项目类型:别墅
- 项目地点:南京市
- 建筑面积:200.0000㎡
- 项目造价:150.0000万元
- 竣工时间:2025年1月15日
-
项目定位:业主经营着2家不同的公司,一直学习并遵循稻盛和夫的经营理念。如事业上的追求一样,在对家的装修上也目标明确,知道自己想要的方向。
对家的期待,希望是打破自己现有的喜好,愿意站在设计师的审美向上延伸,不固守,不执念,愿意改变和接纳,这本身就是一种难能可贵的品质。主动引导自己成为自己想成为的人,打造想要的环境,正如稻盛和夫所说环境造就人,圈子改变人。家是我们的第一环境,所以要极为珍视它。
携手业主,为了实景落地我们付出了不亚于任何人的努力。 -
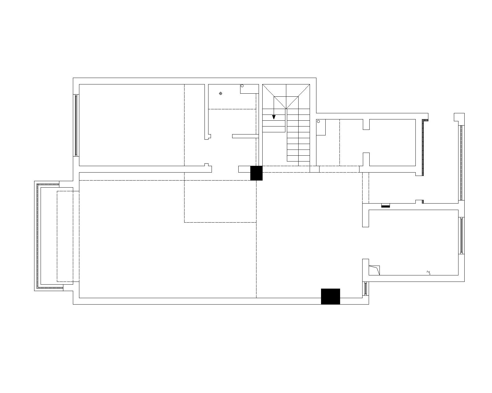
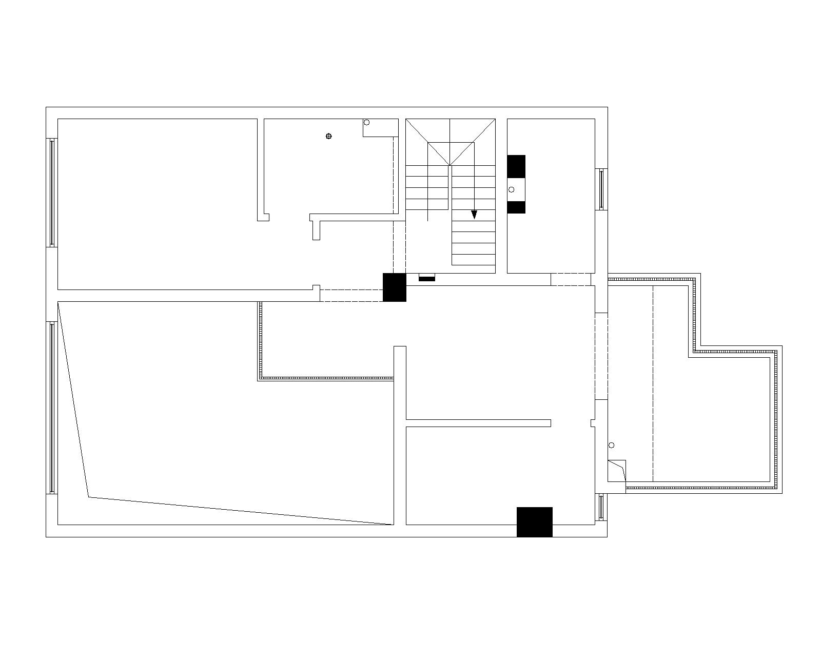
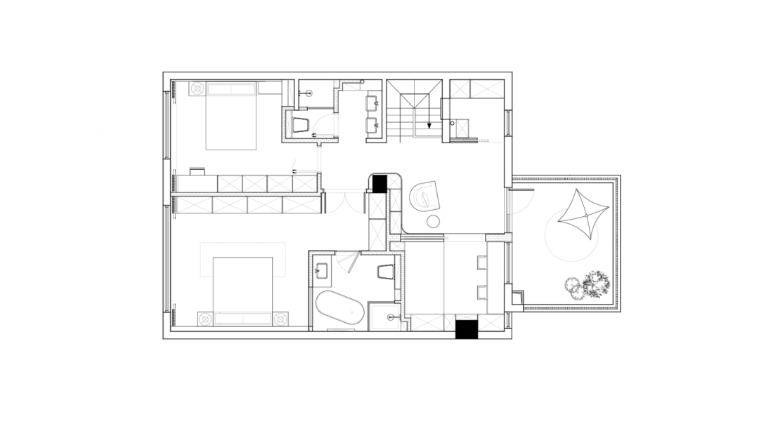
空间意境:原地下室暗淡窄长
现经设计重组 摇变为一个静谧的空间
和光同尘 引光入室
松弛感的核心 是自然 是呼吸
空间都以此为核心 设计围绕于此
客厅想要表达出气场
质朴 氛围 鼓励沉浸其中
顶面造型线条流畅 用弧度 圆表达刚中至柔
木饰面 石材 微水泥 体现质感
立面塑造错落有序
-
空间布局:狭长暗空间的采光重构:打破地下室暗淡局限,通过 “引光入室” 设计(如雾化玻璃借光、镂空 / 飞机窗造型),结合开放式布局削弱窄长压抑感,让暗空间实现 “采光 + 通透感” 双重突破。
功能区的一体化整合:
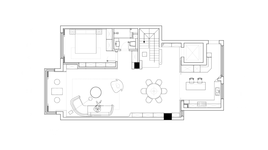
厨房:将封闭零碎的空间 “化整为一”,嵌入隐形门实现视觉开放,仅在中式爆炒时关闭,同时融合中西厨功能,岛台适配多人协作、二人早茶等多元场景;
卧室 + 卫生间:床头木色背景延伸至卫生间,雾化玻璃实现 “借光入卫”,解决暗卫采光痛点,同时保证空间视觉连贯性。
动线与公共区的巧思设计:
楼梯:第一踏步采用地台式设计,打造扩张感与包容感;薄铁艺扶手挂于踏步边,节省空间并留出 “呼吸感”;四楼走廊利用承重墙体打造小憩公共区,兼具书房功能与休憩需求,优化动线便捷性;
功能区错落布局:立面塑造 “错落有序” 的层次,避免狭长空间的单调感,同时通过开放式设计(如厨房隐形门、客厅与餐厅通透衔接)增强空间互动性。
收纳与美学的融合布局:
卧室:大面积白色收纳柜 + 床尾整排收纳设计,提前预设收纳需求,同时保持空间整洁;父母房床位黑色收纳柜嵌入电视,实现功能与视觉的自然融合;
餐边柜:木色主体嵌入普拉达绿大理石,兼顾咖啡机摆放、小饰品展示的实用性与装饰性,让收纳空间成为空间美学的一部分。
场景化氛围的布局表达:
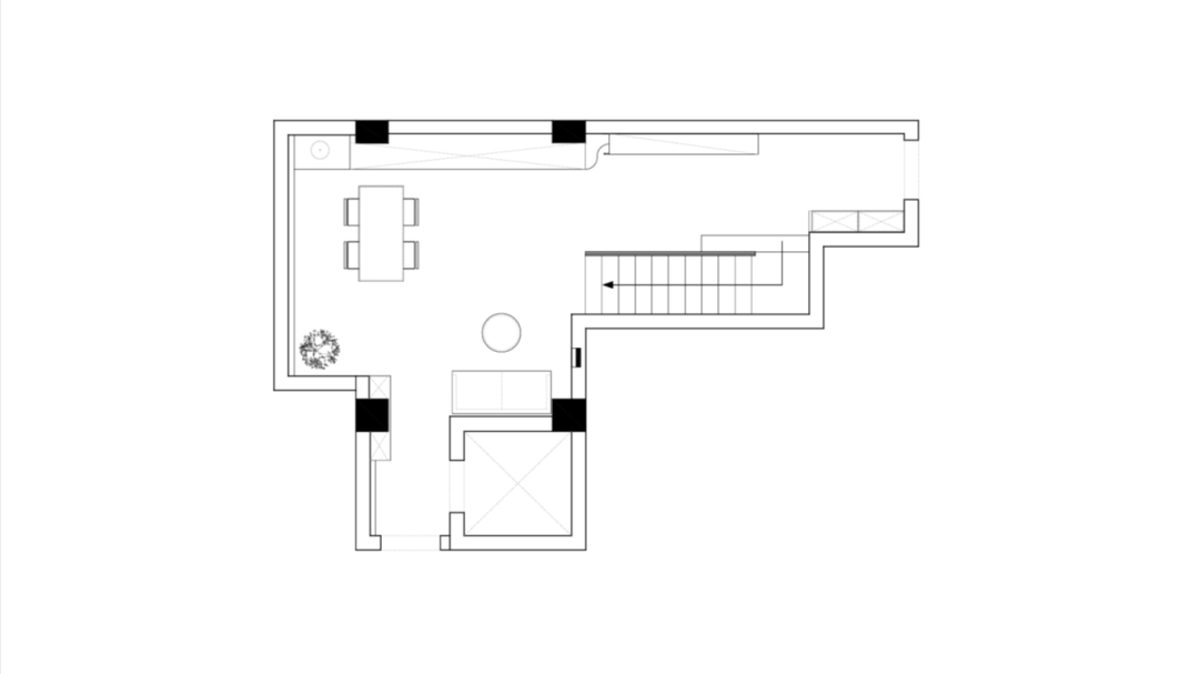
餐厅:顶面圆形造型 + 圆形餐桌 + 环形餐椅的 “全圆布局”,呼应 “天心月圆” 的设计理念,同时营造团聚感;
次卧:床头背景与床头柜、展示架连贯延伸,搭配楼梯踏步式趣味床头柜,在极简布局中融入生活美学,平衡功能与艺术感;
父母房:“见光不见灯” 的背景灯光布局,兼顾舒适照明与氛围营造,适配长辈居住需求。 -
设计选材:功能型材质精准适配场景
雾化玻璃:解决暗卫采光痛点,同时兼顾隐私性,替代传统遮光帘 / 实体墙,实现 “借光入卫” 的空间优化;
自动气味感应换气机:针对性解决暗卫通风问题,无需手动操作,提升使用便捷性;
普拉达绿大理石嵌入木色餐边柜:将高端石材与质朴木作结合,在局部点睛,避免大面积使用贵重材质的厚重感,实现 “朴实中蕴高贵” 的质感平衡;
沉淀东方意韵的水磨石瓷砖:用于厨房墙面地面,兼顾东方美学与耐磨易清洁的实用属性,适配中西厨高频使用场景;
薄铁艺扶手:替代厚重实木 / 石材扶手,挂于踏步边节省空间,同时通过材质轻盈感增强空间 “呼吸感”。
木色材质贯穿客厅、厨房、卧室、卫生间:统一选材减少采购批次差异与运输成本,同时降低后期维护的复杂度(如统一清洁方式、更换配件便捷);
岛台 + 餐边柜 + 收纳柜的实用型设计:以 “收纳 + 展示 + 使用” 多功能集成,替代单一功能家具,减少家具购置数量,降低空间占用与经济投入;
水磨石瓷砖 + 微水泥等耐用材质:选择耐磨、易清洁、使用寿命长的材质,减少后期翻新频率与耗材更换成本,符合低碳长效使用理念。 -
用户体验:从昏暗窄长的地下室,到如今满是呼吸感的家,真的要狠狠感谢设计师的巧思!把光请进房间,木石与微水泥的质感超戳我,客厅的弧度、餐厅的圆月造型,每处细节都藏着温度。开放式厨房太实用,暗卫的雾化玻璃和换气系统彻底解决痛点,每个卧室都兼顾收纳与舒适。这里不只是居所,更是能卸下疲惫的心灵栖息地,克制又有张力,质朴却藏高级,每天在家都忍不住感叹:这才是理想生活的样子呀~
0
0

认证 · 让您身份增值