温序
0
作品说明
- 项目类型:住宅公寓
- 项目地点:南京市
- 建筑面积:88.0000㎡
- 项目造价:20.0000万元
- 参与设计师:许威
- 竣工时间:2025年4月20日
- 设计机构:南京壹石空间设计
-
项目定位:这是我们为业主装修的第二套房子,时隔多年再次选择,是对我们最高的认可,感谢业主的信任,这次依然选择了全案托管。
从“第一个家”到同小区的“第二个家”,变的是需求,不变的是对美好生活的追求。
因孩子成长,也为离父母更近,他们选择在同一片天空下开启新生活。离父母的关怀“一碗汤”刚好,离孩子的成长“一扇门”之隔。
我们对精装房「深度焕新」,彻底重塑空间的气质。打破标准化,构建业主独一无二的、真正契合自己性情的生活场域。 -
空间意境:木质肌理自带温度,搭配柔和乳胶漆色调,每一处都显高级质感~ 入住后阳光洒进来,满室温馨无异味,环保又耐看,
格栅的竖向线条带来了丰富的肌理感和韵律感。它打破了大面积墙面的单调,瞬间“层次感拉满”。也是功能区的“软边界,与客厅区分开来。
悬空式一体书桌柜:功能主义的极致演绎。功能三元整合,是书桌,是床头柜,是收纳展示架。
背景墙“不做满”采用木饰面打造半高造型护墙板,兼具床头靠背与空间延伸效果。 -
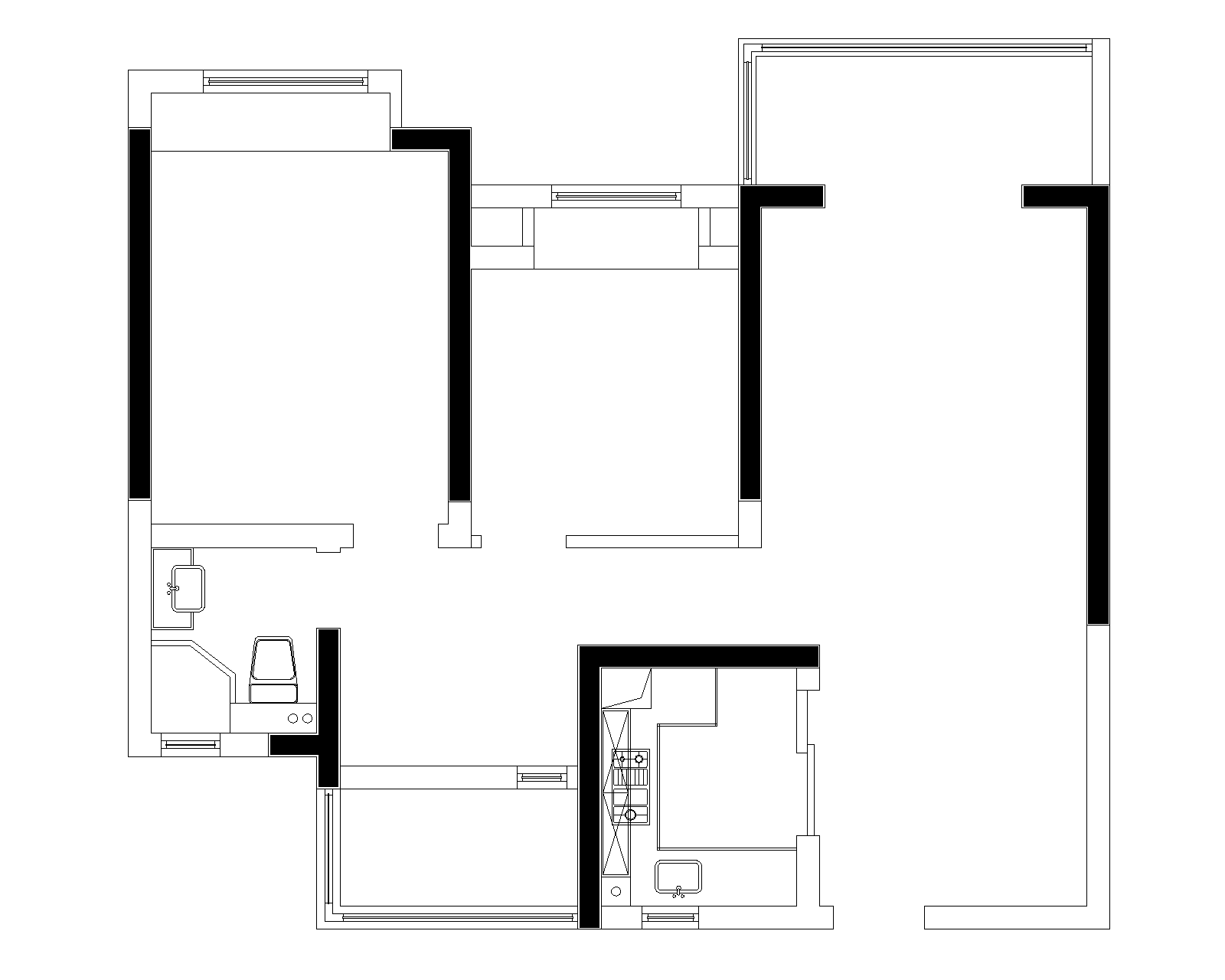
空间布局:抓住核心解决问题,原户型一通到底,且狭长。
所以我们利用拐角做玄关和具有创意的卡座式餐厅设计,解决了多人就餐也不拥挤,过道也游刃有余。
开放式客餐一体化让阳光与视线从客厅长驱直入,直至餐厨区域。这不仅放大了空间感,更让家庭的核心区充满了共享性与互动性。
无论家人在哪个角落,都能感受到彼此的陪伴。家不仅仅是一个好看的、好用的容器,它更是一个能主动创造幸福场景的伙伴。
主卧的设计也减到极致,一切只为让人彻底放松。当空间里只剩下最必要的物品——一张床,一个利落的小柜——视觉上没有了任何多余的干扰,大脑才能从纷杂的信息中抽离,真正进入休息的状态。这是一种 “视觉上的静音” -
设计选材:客餐厅卧室家居多选择棉麻、墙面乳胶漆多乐士乳胶漆刺鼻异味,有害物质排放符合国标,属于家装常见的环保墙面材料。索菲亚木饰面甲醛释放量低,且部分可能采用回收木材或速生木基材,减少原生林消耗。
-
用户体验:解锁环保新家啦!特别感谢团队全程把控,从柜体到墙面都选了环保高性价比材质,实木复合门的厚重 + 棉麻窗帘的柔软,搭配得恰到好处。入住后越住越爱,无异味还耐造,低成本装出温润质感,每天回家都被幸福感包围,感恩遇见靠谱团队!
0
0

认证 · 让您身份增值