漫屿
1 - 项目类型:住宅公寓
- 项目地点:南京市
- 建筑面积:138.0000㎡
- 项目造价:60.0000万元
- 竣工时间:2025年9月12日
- 设计机构:南京壹石空间设计
-
项目定位:我们面临一个普遍的刻板印象:有孩子的家,注定与“整洁”和“美感”无缘。
然而,女主人提出了一个明确而动人蓝图:她渴望一个可以随时记录生活、充满氛围感的家。希望孩子的童年,能在如同电影画面般美好的场景中展开,自己在家的时间也比较多,拍照分享穿搭美图也是日常。
是家,也是生活的「私人美术馆」这里收藏的,不是遥远的艺术珍品,而是由家人共同创作的“生活艺术”。孩子的涂鸦是即兴的抽象画,餐桌上的早餐是精心的静物摆设,窗外的光影流动皆是最美的生活艺术呀。 -
空间意境:整体设计以大面积的奶油色奠定空间温柔、通透的基调;墙面通过精致的法式线条勾勒,赋予其立体韵律与艺术美感。
在此基础上,沉稳的胡桃木定制作为空间的视觉支点,沉稳而可靠。温润的质感与深邃的色调,平衡家里色彩的轻盈感。 -
空间布局:拆除了餐厨间的隔墙,打造出一个融会贯通的开放式布局。餐厅厨房瞬间连成一体,视觉延伸感让家不仅显大,备菜→上桌→收拾,一步到位,家务都变轻松啦!
新增的厨房吧台,是此次改造的点睛之笔。它不仅是操作台面的延展,更是一道温暖的社交桥梁。它让下厨者从封闭的“孤岛”中解放出来,转身就能加入家人之间的谈笑沟通,自然而然地成为了家的交流中心。
儿童房,把孩子的童心和爱好都装下。用复古绿半墙+藤编定制+奶呼呼的墙面,给娃打造一个沉静又充满生机的成长基地。
卧室阳台改地台,给孩子造了个「梦想小屋」我们拆掉了卧室原来阳台移门,巧妙抬高做成了地台,让卧室分成了2个单独的区域。地台一角留给心爱的钢琴,一角留书桌。
两个区域一步之遥,孩子可以自由切换学习与爱好模式。在这个充满仪式感的小天地里,成长变成了一件特别自然又快乐的事 -
设计选材:胡桃木,pu线条,藤编
-
用户体验:历时数月,终于解锁新家!感恩团队全程贴心把控,胡桃木的温润 + 藤编的自然感绝了,动线也十分舒适自然入住即治愈~
一柜两用!家的走廊,是个「宝藏盒子」 整排胡桃木柜,正面「吞」下全家杂物,整洁力MAX!转身却藏着小惊喜——背面竟是干区洗手台! 一眼望去,过道,早已不再是单纯的通道,它更像一个家的视觉枢纽,一条连接着生活不同场景的、会呼吸的艺术廊道。实用和美感,真的实现了双赢。
我们把入户玄关柜体悬浮离地,化解厚重感,让空间显得通透而轻盈。 为扫地机器人留出“专属通道”,让它能够自由穿梭,清洁无死角。下方空间亦可临时收纳常穿鞋履或拖鞋,让入户区时刻保持利落。
拆除了餐厨间的隔墙,打造出一个融会贯通的开放式布局。餐厅厨房瞬间连成一体,视觉延伸感让家不仅显大,备菜→上桌→收拾,一步到位,家务都变轻松啦! 新增的厨房吧台,是此次改造的点睛之笔。它不仅是操作台面的延展,更是一道温暖的社交桥梁。它让下厨者从封闭的“孤岛”中解放出来,转身就能加入家人之间的谈笑沟通,自然而然地成为了家的交流中心。
这个抠脑壳的八角窗,被改成了 「四季取景框」 ,直接被玩成了宝藏! 每天站在这里,女主迎着自然光搭配OOTD,随手一拍就是高级感生活博主同款。这个曾经被浪费的角落,照亮了生活的日常,给女主的心情加分
儿童房,把孩子的童心和爱好都装下。用复古绿半墙+藤编定制+奶呼呼的墙面,给娃打造一个沉静又充满生机的成长基地。 卧室阳台改地台,给孩子造了个「梦想小屋」我们拆掉了卧室原来阳台移门,巧妙抬高做成了地台,让卧室分成了2个单独的区域。地台一角留给心爱的钢琴,一角留书桌。 两个区域一步之遥,孩子可以自由切换学习与爱好模式。在这个充满仪式感的小天地里,成长变成了一件特别自然又快乐的事
原始结构
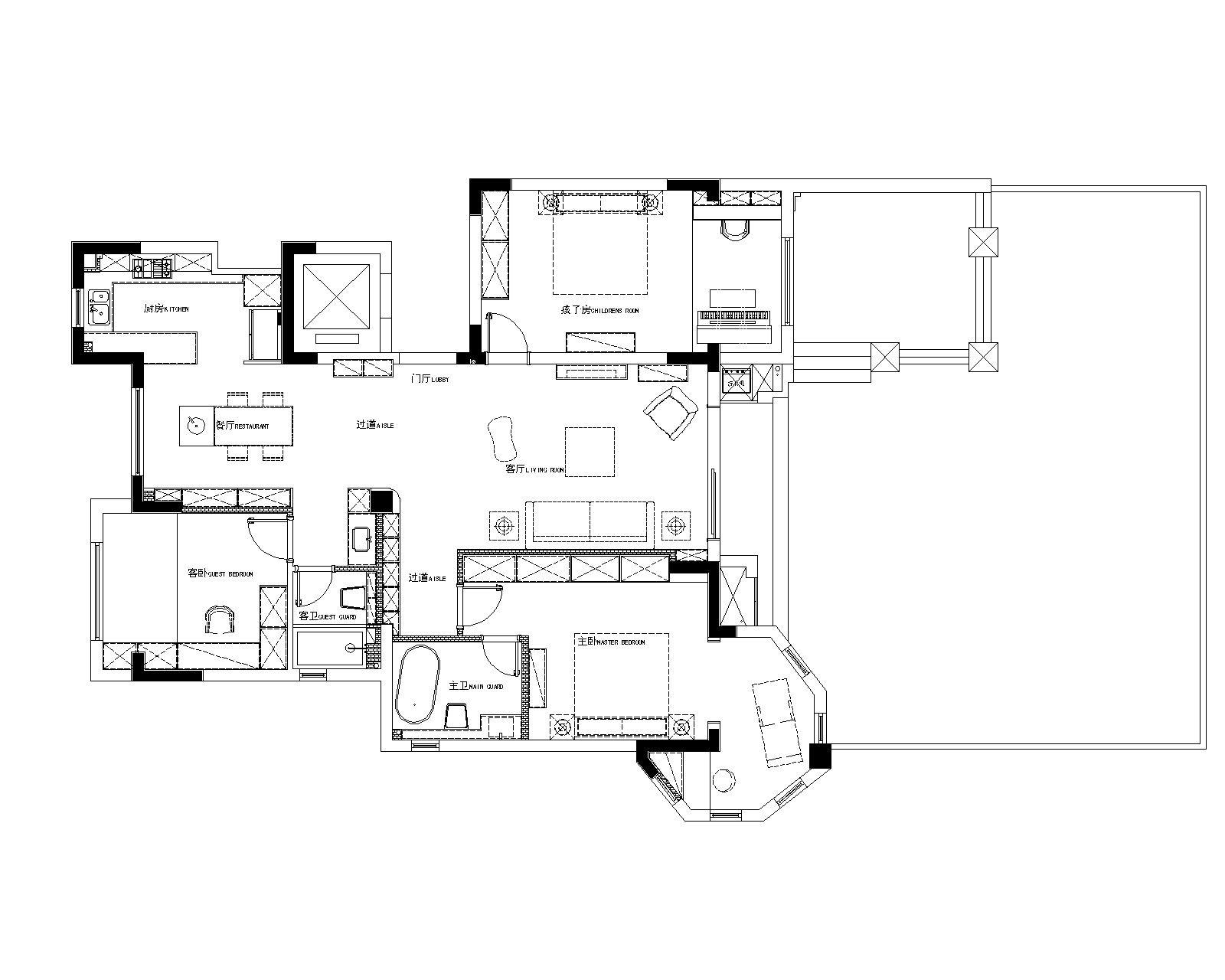
平面方案
0
0

认证 · 让您身份增值