金域悦府售楼部&样板间
17
作品说明
- 项目类型:样板间/售楼处
- 项目地点:渭南市
- 建筑面积:800.0000㎡
- 项目造价:200.0000万元
- 竣工时间:2025年9月
-
项目定位:售楼部:800 ㎡&样板间:118 ㎡&样板间:128 ㎡
本案为售楼部,设计师李艳阳通过精准的场景营造与叙事性设计,让售楼部超越其单一的销售功能,将其转化为一个具有沉浸感与叙事性的体验容器。从“初见”的售楼部到“深入”的样板间,完成一场从宏观社区气质到微观生活哲学的完整叙事。空间不仅仅是单纯的展示,更是未来生活的一场预演,演绎着理想生活的生动剧本。 -
空间意境:这里是一切生活的起点。双用过道,精准承载着双重使命,既是迎接贵宾的礼仪之门,亦是日后业主归家的必经之路。中央玄关巧妙分流,构筑归家动线的秩序与仪式感。而精心设置的吧台,不仅提供此刻的暂休服务,更将作为未来社区生活的温情节点,迎接每一次疲惫或欢愉的归来。在这里,销售功能会落幕,但生活场景将永续。
-
空间布局:沙盘之上,灯光以精准的几何形态悬浮,悄然界定出一片独立的宇宙。它将纷扰隔绝,让所有视线与想象,都聚焦于此刻的微缩世界。社区肌理,于此一目了然。这不仅是接待中心的第一面,更是业主与未来家的第一次深度对谈。
步入洽谈区,淡雅的中式气韵扑面而来。以一幅屏风勾勒出东方的静谧风骨;转身间,现代石材水吧台则满足当下的便捷。这里不止于“谈”,更在于“境”。三面围合的私密空间,如同家中客厅,既可会友,亦可静思。于此,重要的决策在安宁中落定,未来的生活图景在从容间展开。
样板间不止是空间的陈列,更是一部为业主撰写的生活剧本。从归家第一步起,舒适感便如影随形。正对入户的门扉轻启,一间书房与客房自由切换的多功能室静候于此。墙面巧设间隙,借景成画,让光影与视线自在流动。空间仿佛拥有生命,正在自主地、轻柔地呼吸。 -
设计选材:将样板间营造出另一种生活氛围,温润木饰面包裹整个空间,空间便成了会呼吸的容器。客厅中央,一抹优雅弧线沙发,宛若宁静的港湾,界定着家的温度与向心力。柔化边界,引导视线自由流动,让光与景在此驻足、交融。从客厅信步而至,阳台与卧室悄然相连,构成一处流动的私域风景。光影透过白纱,在木质肌理上描摹时间的轨迹,让每一刻休憩都沉浸于自然与安宁。
-
用户体验:这方私密领地,视觉与感知的边界被再次打破。一道通透的玻璃隔断,巧妙区隔睡眠区与卫浴空间,让光线与视野无界流动。它既赋予了空间星级酒店般的奢华尺度,又将每日的梳洗时光,变成一场光影交织的仪式。目光所及,悬浮的床头柜轻盈延伸而出,宛若失重的艺术装置。它摒弃了传统的笨重,以极简的线条承载功能,在灯带的映衬下,让整个休憩氛围更显宁静与高级。
800㎡售楼部实景照片
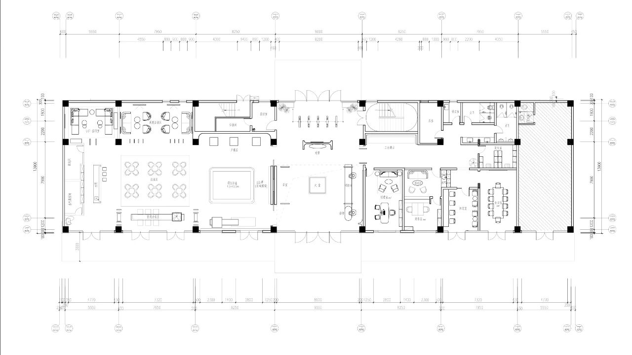
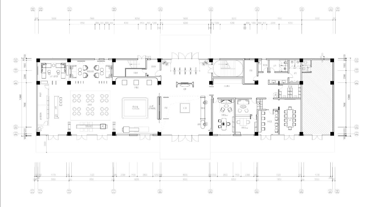
800㎡售楼部平面布局图
800㎡售楼部实景照片
800㎡售楼部实景照片
800㎡售楼部实景照片
800㎡售楼部实景照片
800㎡售楼部实景照片
800㎡售楼部实景照片
800㎡售楼部实景照片
800㎡售楼部实景照片
800㎡售楼部实景照片
800㎡售楼部实景照片
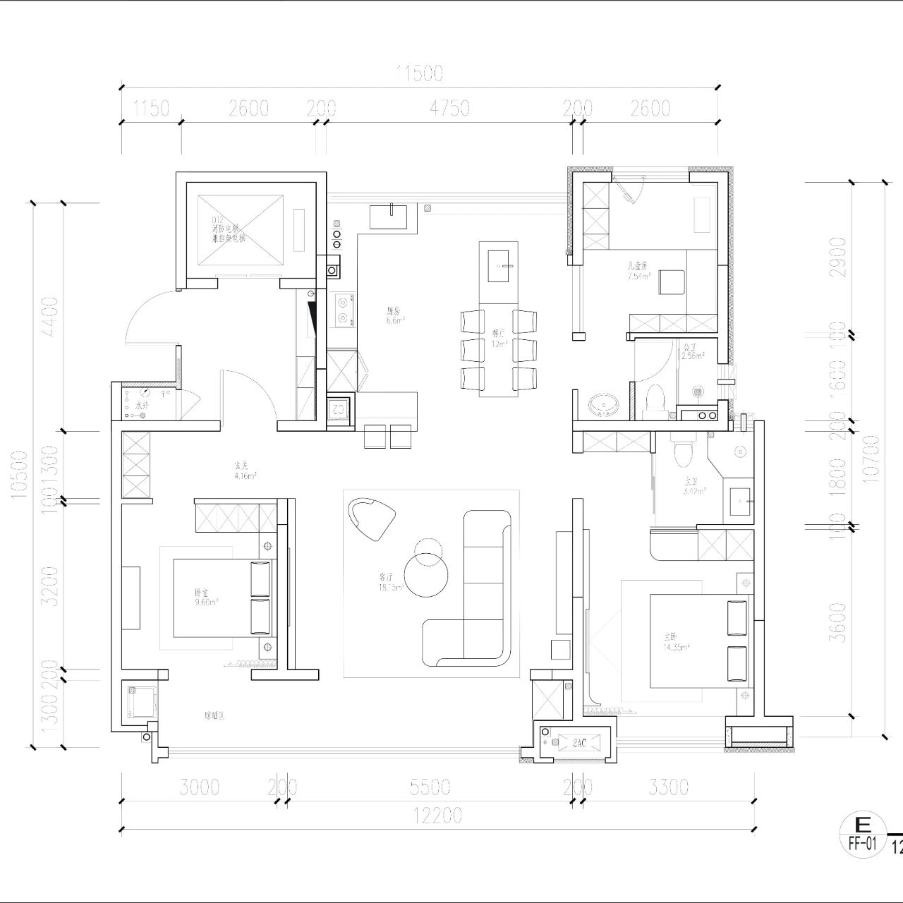
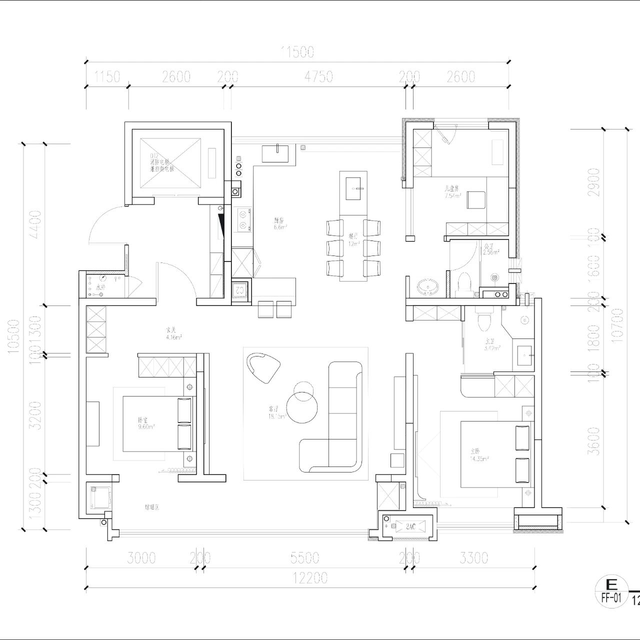
128㎡样板间平面布局图
128㎡样板间实景照片
128㎡样板间实景照片
128㎡样板间实景照片
128㎡样板间实景照片
128㎡样板间实景照片
128㎡样板间实景照片
128㎡样板间实景照片
128㎡样板间实景照片
128㎡样板间实景照片
128㎡样板间实景照片
128㎡样板间实景照片
128㎡样板间实景照片
128㎡样板间实景照片
128㎡样板间实景照片
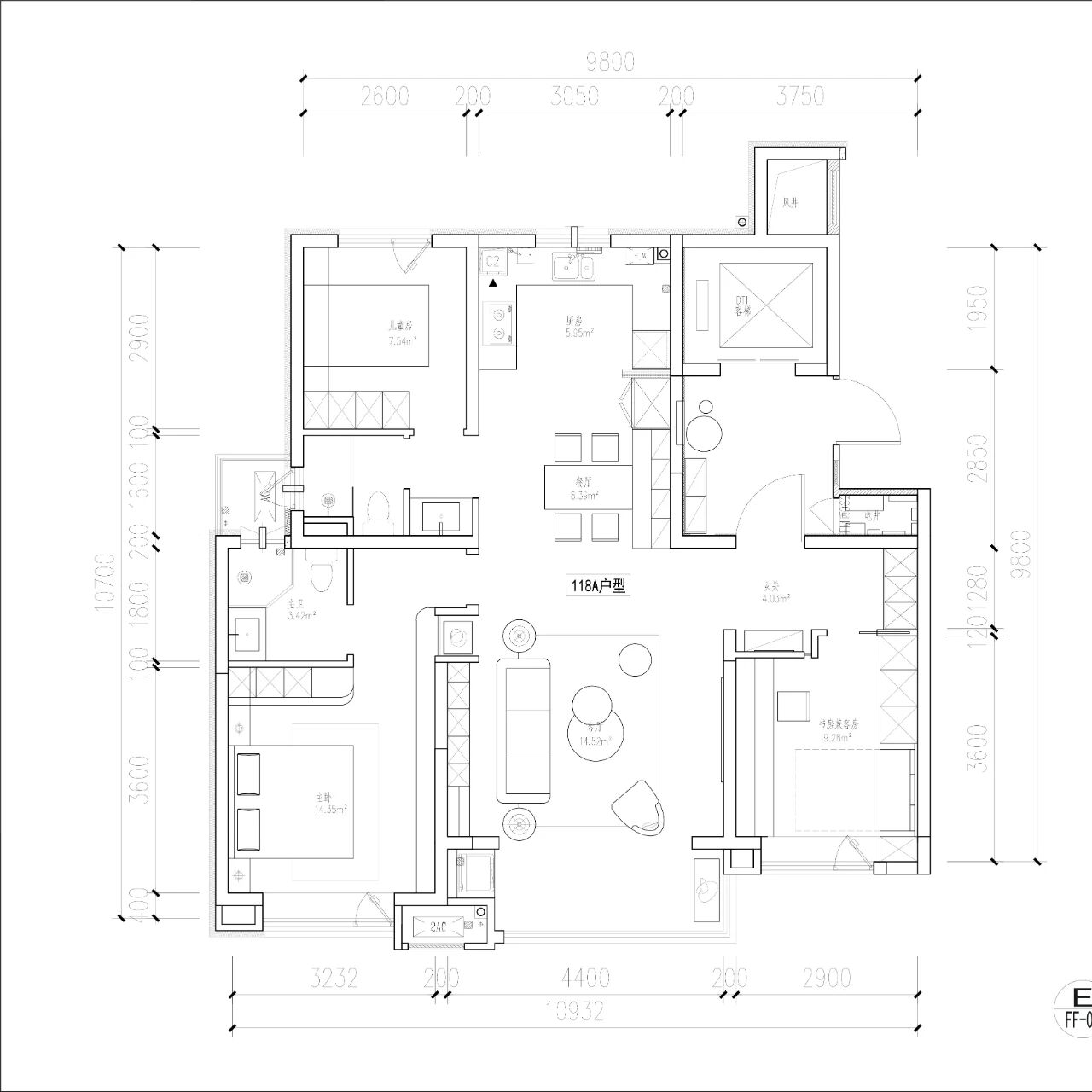
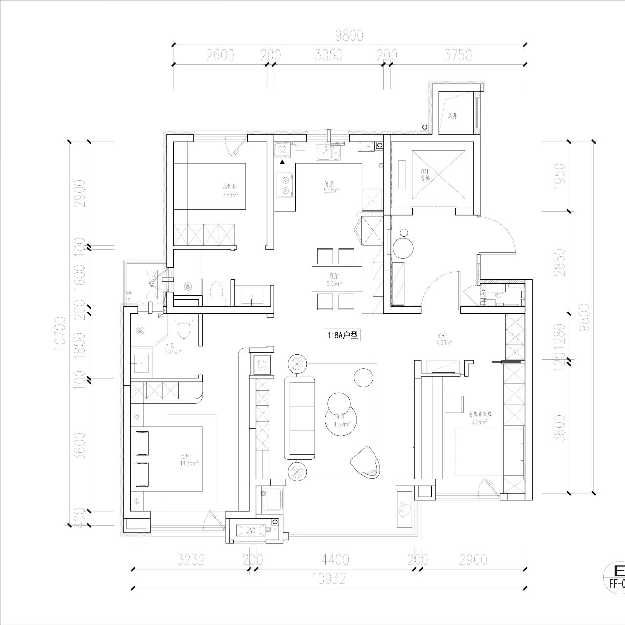
118㎡样板间平面布局图
118㎡样板间实景照片
118㎡样板间实景照片
118㎡样板间实景照片
118㎡样板间实景照片
118㎡样板间实景照片
118㎡样板间实景照片
118㎡样板间实景照片
118㎡样板间实景照片
118㎡样板间实景照片
118㎡样板间实景照片
118㎡样板间实景照片
118㎡样板间实景照片
118㎡样板间实景照片
118㎡样板间实景照片
800㎡售楼部平面布局图
128㎡样板间平面布局图
118㎡样板间平面布局图
0
0

认证 · 让您身份增值