-
项目定位:该项目位于西安市雁翔路华润曲江-“时光里”,总面积约3600平方米。
-
空间意境:在消费降级的大环境影响下,设计主要以功能动线合理,方便顾客使用为大前提,硬装上没有过分的投入,主要以软装陈设来营造温馨、柔美、洁净的体验环境,多采用流线型软体家具,结合适度的灰度彩色系统,加下空间局部的微景观点缀,来缓解和调节宝妈的情绪。
-
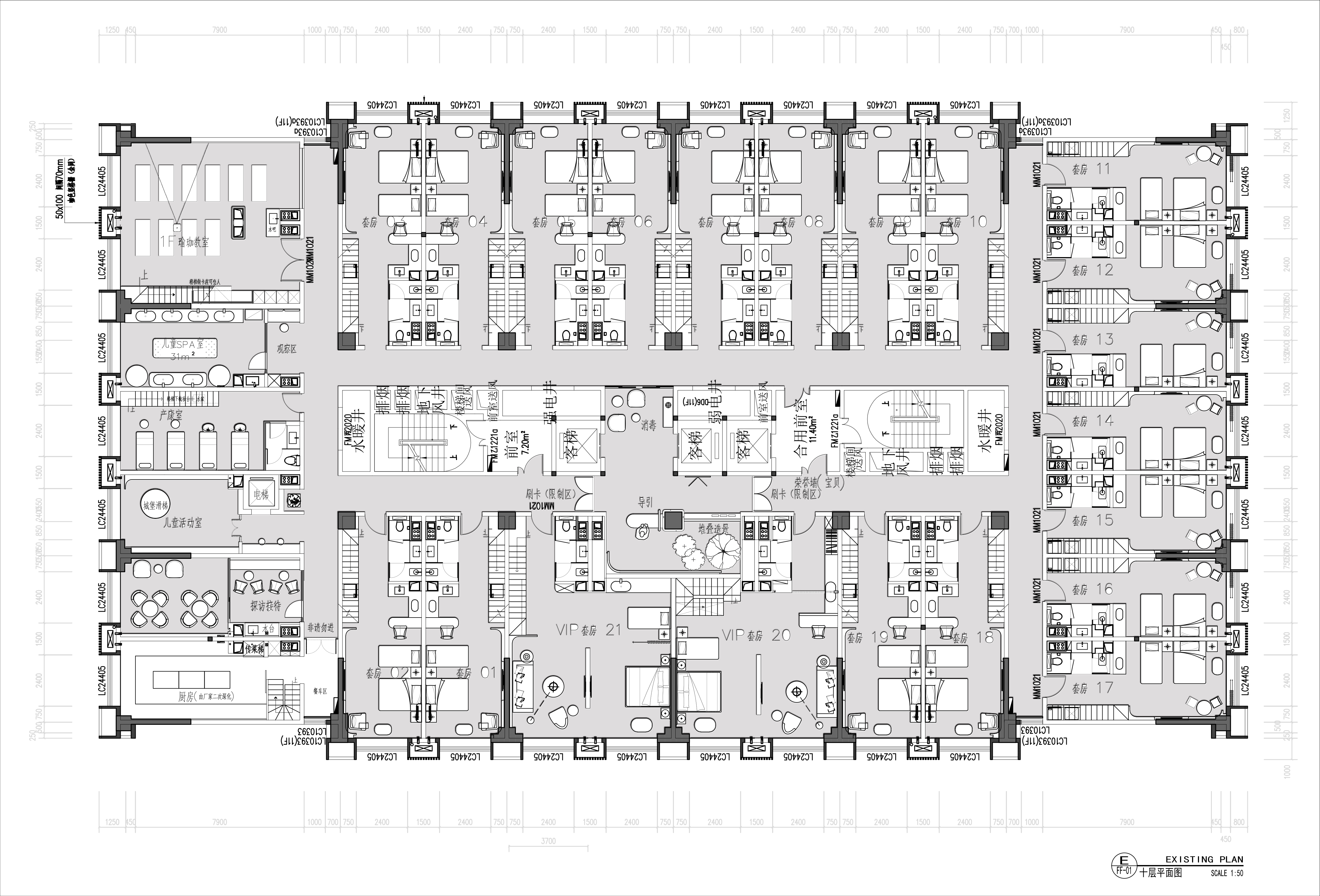
空间布局:整体设计以“轻、柔、洁”为主要设计语素。主要功能区划分有:一层咨询接待、十层、十一层为宝妈房间及婴儿的专属配套服务功能区。
-
设计选材:因为项目的特殊性,针对新生宝宝和宝妈的超低抵抗力的人群,所以在选材上一定需要非常环保、绿色、绿能的。因为面积大,也在整体造价上帮助甲方进行了有效的控制。
-
用户体验:非常满意,感谢设计师非常到位的考虑和符合消费客群的需求,从空间规划、配色、材料使用等方面都有很周到的考量。让入住的顾客度过一个愉快轻松的“月子亲子时光”。

