-
项目定位:设计师要站在业主的立场上,为空间设定一个核心的主线,以总导演的角色来组织和把控整个装修全过程;以设计改善生活,让空间不仅在布局上更为合理,而且业主的使用也更为方便。
-
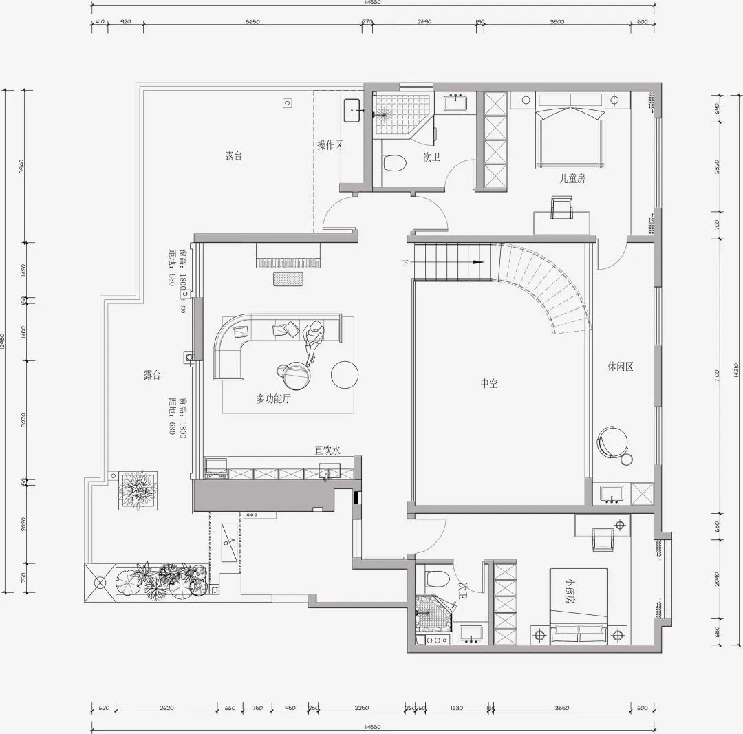
空间意境:经过与业主的沟通,并根据居住情况和业主对改善型房屋品质需求的角度来分析:设计中保留了客厅挑空的纵深感,呈现了复式的品质感。
-
空间布局:设计师将原计划在餐厅的楼梯移到客厅的沙发背景墙边,流线型的半旋转腾空楼梯,和沙发融合为一体;不仅呈现上下楼的实用性通道,也装饰了客厅背景墙,软化了方正客厅的棱角感。
厨房则重新布局,不仅设置了开放式的西厨和便捷性使用的水吧,还增加了中导台,中岛台兼顾了厨房、餐厅和客厅三个空间的多维度使用。
为了保证南向阳台的使用完整性,入口设计在卧室里,不仅避免了从中空开口而破坏掉复式的品质感和视觉效应;也为卧室增加了配套的自暇休闲场景,抬眼还能眺望南山景致。
单独的茶室做成榻榻米,多功能复合式使用。考虑到鞋物摆放的不便也不美观,设计师在门口非承重墙面下方设计了凹进去的位置,增加小鞋柜。
卫生间设置双台盆,满足同时使用;而且干湿分区,各尽其功能,互不干扰。 -
设计选材:全空间都采用了木质产品,确保环保性,并且从品质风格协调性营造及有效使用面积的考虑,以使用度更高的长条方桌代替了原计划的圆形餐桌。增加了经济性。
也为人性化便捷使用,分别在一楼和二楼的公共区位置增设了直饮水点,不用下楼也能喝到直饮水。 -
用户体验:业主反馈:设计服务于生活。设计在整体细节中有周到的考虑,在常规功能的使用之外平衡便捷性,如起夜时的感应夜灯、浴室的扶手、一二层分别的直饮水、智能化设施设备的置入、卫生间背景音乐的提前预埋等等;这都是设计师通过足够的设计经验和生活阅历来规划空间的合理性和便利性。感谢李设计师为我们带来的完美居住空间。
0
0

认证 · 让您身份增值
340