-
项目定位:在奢华餐饮逐渐退潮,单品店餐饮兴起的时代背景下,竹雨堂以独特的视角审视中餐的未来。我们不仅仅是一家餐厅,更是一个让传统中餐回归本真,演绎新风尚的文化空间。在都市的喧嚣中,竹雨堂以匠心独运,打造了一处静谧的餐饮雅境,让顾客在快节奏的生活中,找到一处可以放松身心、品味美食的净土。
-
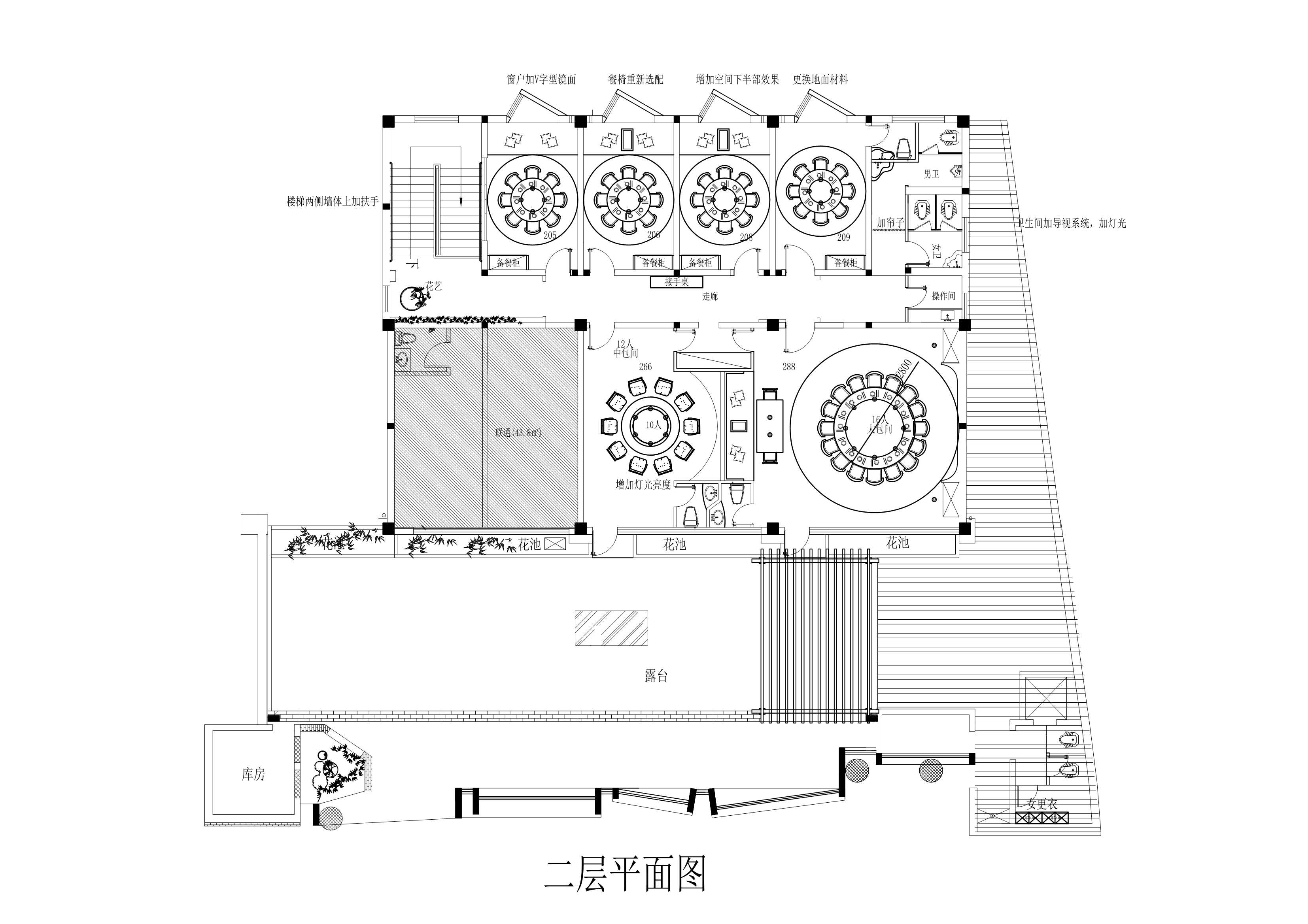
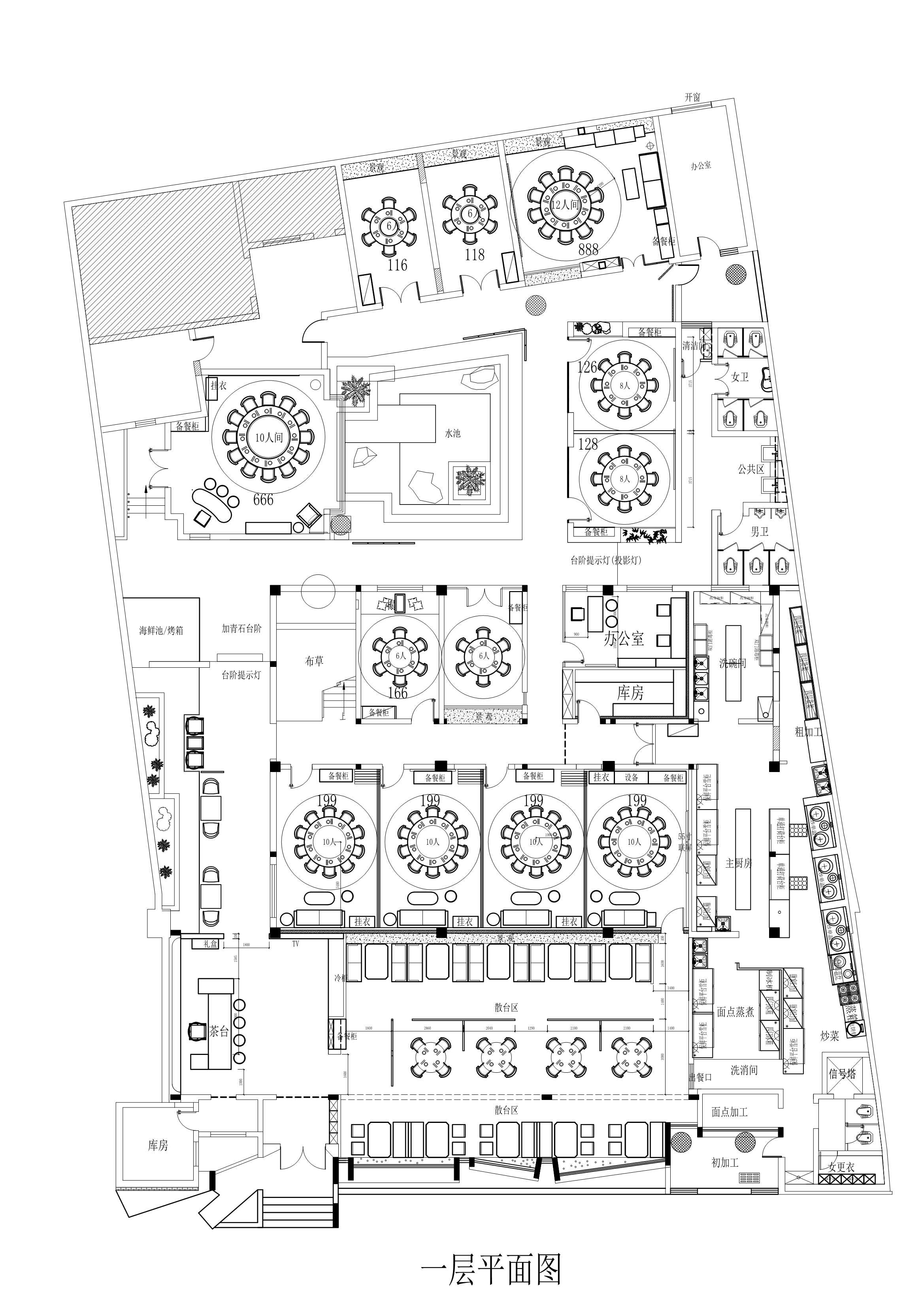
空间意境:步入竹雨堂,仿佛穿越到了一个充满诗意与雅致的世界。前庭檐下,竹韵悠长,连廊勾勒出自然之美,青砖古韵铺就的静谧时光,让人瞬间忘却都市的喧嚣。大厅、包间、走廊都经过精心优化调整,主营区域采用双动线设计,既提升了服务效率,又保障了顾客的就餐体验。包房设计多样,满足各种就餐场景的需求,特色连包设计更是增加了空间的灵活性。
二楼窗前,斜面遮阳,光影曼妙,露台广阔,绿意环抱,餐余小憩间尽享自然之恩赐。后院无界水池与慈孝竹影相映成趣,清风送爽,让人心旷神怡。 -
空间布局:竹雨堂的空间布局匠心独运,缩减餐位,拓宽庭院与廊道,步移景异,私密与景致并重。前庭、大厅、包间、走廊、后院等空间相互衔接,形成了一条流畅的空间动线。同时,我们注重私密性的设计,无论是商务洽谈还是亲友聚会,都能找到适合的空间。
-
设计选材:竹雨堂以竹为主材,合成与绑扎交织,功能与美学并存。青砖、瓦片、乾隆脊桶等传统元素的应用,尽显堂之古韵。同时,我们也注重现代材料的运用,让传统与现代在竹雨堂中完美融合。
-
用户体验:在竹雨堂,每一位顾客都能享受到自然与人文的交汇。微风起时,竹叶轻语,竹雨轻扬,让人心境自远。这里,不仅提供美味的菜品,更提供一种生活方式,一种追求心灵宁静与放松的生活态度。
0
0

认证 · 让您身份增值
686