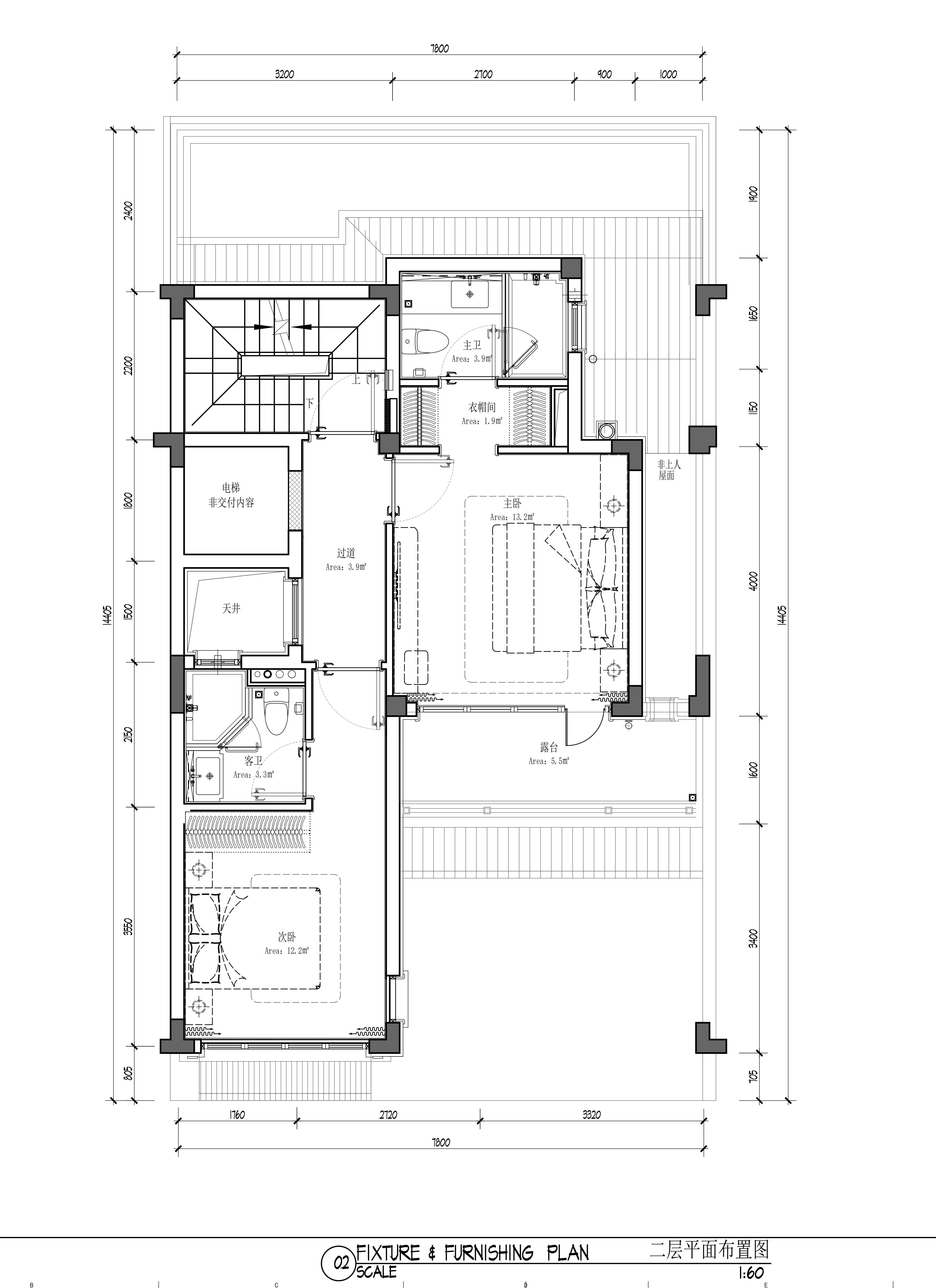
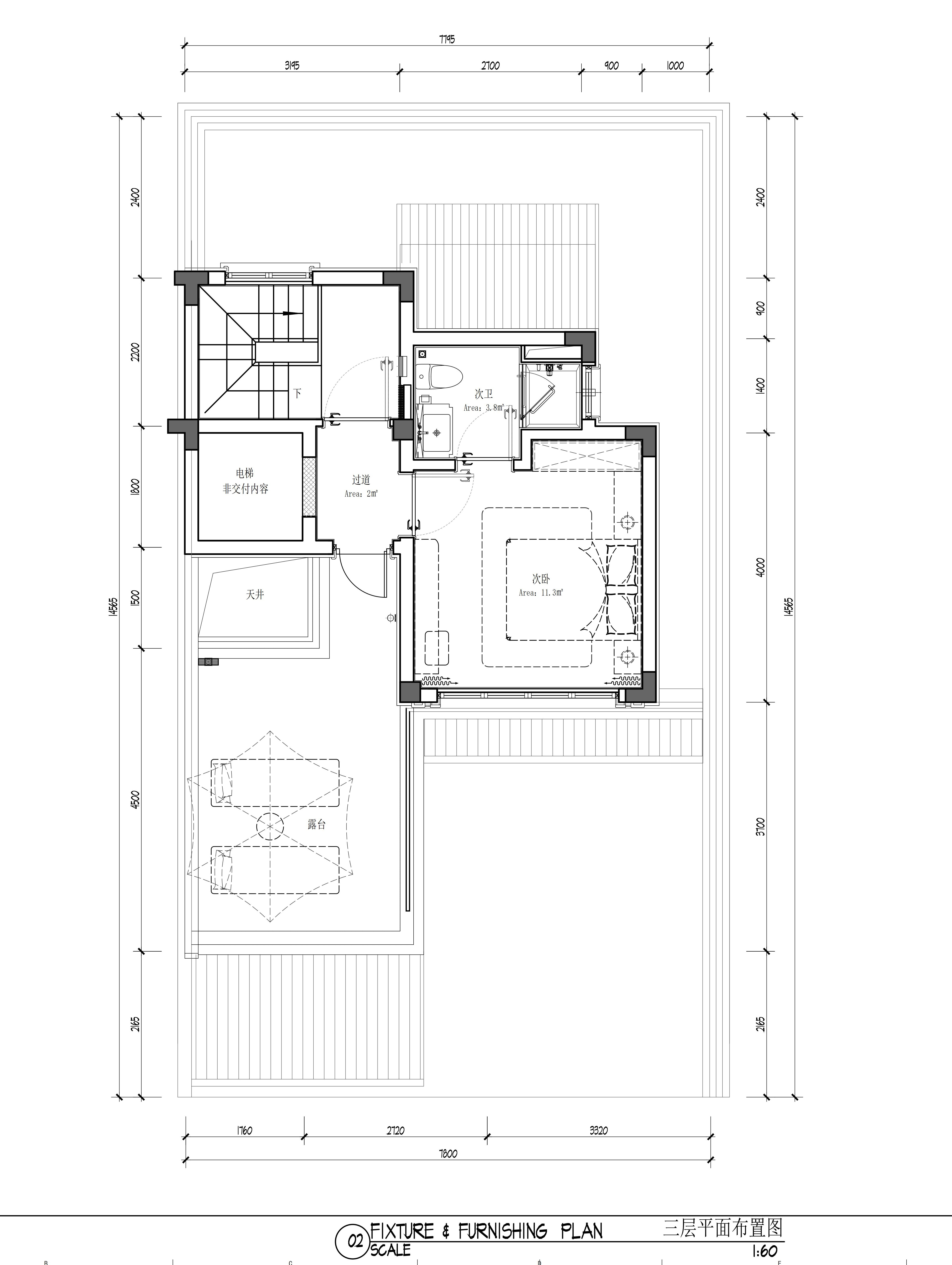
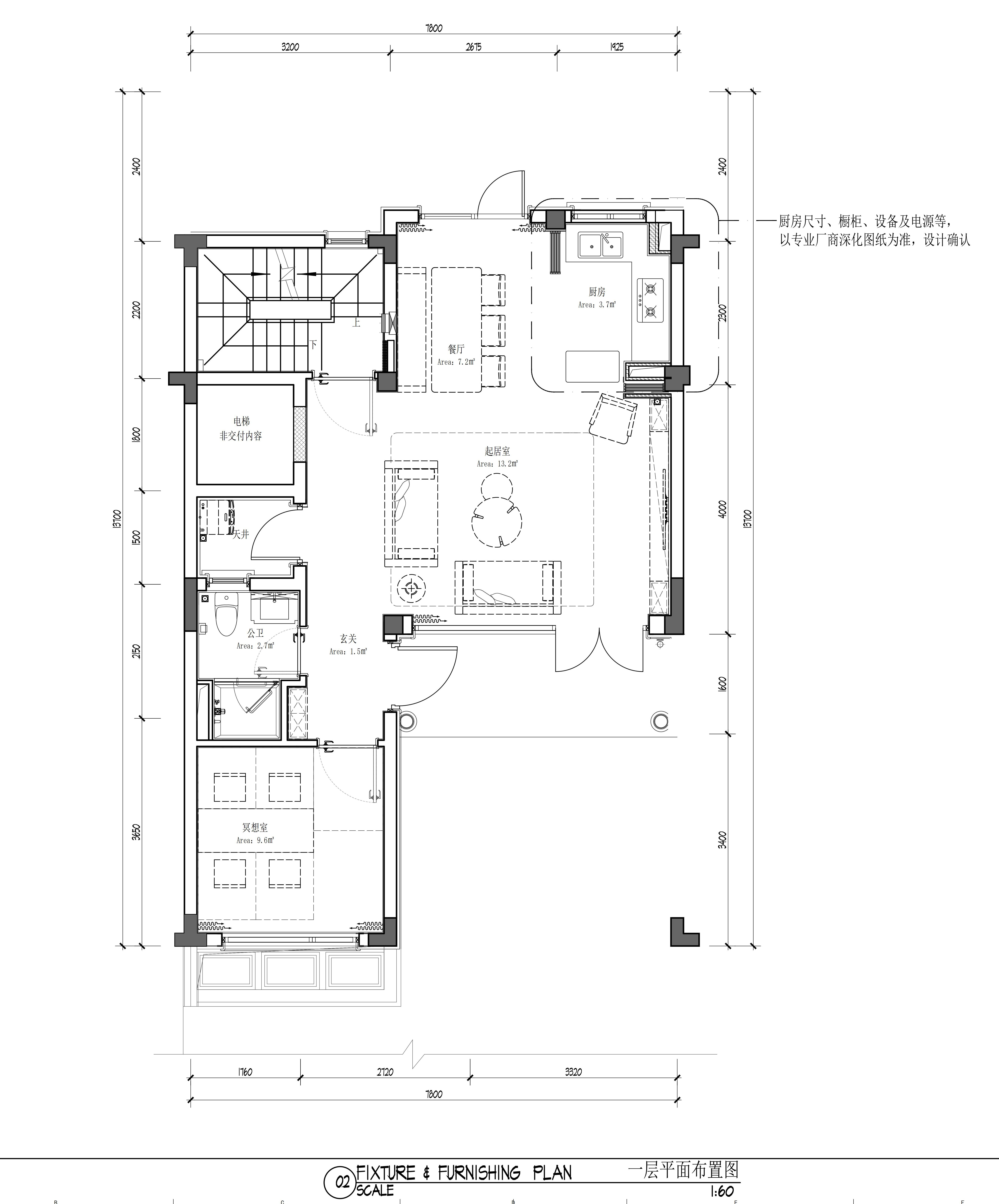
青山湖160户型


作品说明
- 项目类型:样板间/售楼处
- 项目地点:杭州市
- 建筑面积:270.0000㎡
- 项目造价:204.0000万元
- 主案设计师: 程慕
- 参与设计师:程慕
- 竣工时间:2024.07
- 设计机构:广州大朴艺术设计有限公司
-
项目定位:本项目的设计策划立足于青山湖自然生态区的独特地理与文化背景,以“人与自然和谐共生”为核心理念,结合自然景观和东方文化元素,打造出现代休闲风格的居住空间。项目定位为兼具休闲、运动与文化氛围的生态居住场所,不仅满足居民的日常生活需求,也为周边户外活动提供了无缝衔接的空间体验。设计充分考虑了青山湖周围的自然资源与交通便利性,创造一个既贴近自然又充满人文气息的生活空间,推动了生态与文化的深度融合。
-
空间意境:在环境风格上,本项目大胆融合了自然景观与东方文化,通过提取湖景与周边自然元素,使空间既具现代感又富有传统韵味。设计运用古铜色与做旧金属的材质,巧妙地将现代金属质感与自然元素相结合,创造出既有力量感又富有温暖感的环境氛围。景观设计依托青山湖的自然优势,巧妙借景,打造出一系列可以欣赏湖景的休闲空间。同时,设计保留原生绿植,选用耐旱植物,保持生态平衡,实现自然景观的最大化利用与人文气息的传递。
-
空间布局:空间布局上,本项目创新性地打破了传统的动静分区模式,推崇空间的流动性与开放感。例如,一层的客房设计融入了户外元素,通过大面积的玻璃窗和自然材质的运用,让住户在室内也能感受到外部景观的延伸。负一层的设计兼顾多功能需求,提供了休闲、运动、聚会等多种活动场景,极大地提升了空间的使用效率与灵活性。此外,空间优化充分考虑了周围复杂的环境与建筑结构限制,通过地势和结构的巧妙改造,实现了最佳的空间布局和舒适度。
-
设计选材:本项目在选材上秉承低碳环保理念,优先选择本地生产的环保材料,减少碳足迹。金属材料大部分可回收,有效减少资源浪费。为实现能源的可持续使用,设计充分利用自然采光和通风,减少对人工照明与空调的依赖。同时,选用了本地耐旱植物作为景观植物,降低了水资源消耗,推动了绿色生态居住环境的构建。设计中注重材料的长效性和可持续性,力求在美学和经济性上找到平衡点,推动绿色建筑理念的实现。
-
用户体验:该项目投入使用后,得到了业主和用户的高度评价。住户反映空间布局开放且富有灵活性,尤其是负一层的多功能空间,成为家庭成员与朋友聚会、休闲娱乐的理想场所。与自然的无缝连接也让居住者感到舒适与放松,湖景与绿植的设计不仅美化了环境,也改善了居住体验。选材方面,环保与节能的理念深受业主的认可,居民普遍反映,项目提供了一个健康、舒适且低碳的生活空间,符合现代人对环保与高质量居住的追求。此外,项目的创新设计也为同类生态住宅项目提供了借鉴,成为当地区域在生态居住与文化融合方面的标杆。

