青山湖半岛项目售楼中心
231
作品说明
- 项目类型:样板间/售楼处
- 项目地点:杭州市
- 建筑面积:946.0000㎡
- 项目造价:499.0000万元
- 主案设计师: 程慕
- 参与设计师:程慕
- 竣工时间:2024.05
- 设计机构:广州大朴艺术设计有限公司
-
项目定位:本项目位于临安青山湖,周围自然生态优越,交通便捷,湖水与水杉形成的独特景致成为设计的重要素材。项目定位为现代东方风格的售楼处,旨在打造一个能够与自然和谐共生的空间,让客户在享受自然景观的同时,感受到温暖、宁静且富有诗意的氛围。设计的核心理念是“还原·自然”,通过色彩、光影等自然元素的提取和融入,创造出一个能让建筑与自然完美交融、为客户提供沉浸式体验的空间,致力于在竞争激烈的市场中实现显著差异化。
-
空间意境:本案在环境风格上的创新点主要体现在对自然元素的深度融入和空间意境的营造。设计上通过对称美学,打造了一个观景中庭,增强了空间的稳定感,同时让室内装置与室外湖景相互呼应,达到自然与人文的和谐融合。此外,沙盘区的空间留白手法使得整个区域简洁大气、通透敞亮,湖景与光线的融合为空间增添了自然气息。木质结构软装的使用有效塑造了自然肌理,为洽谈区带来了原始自由的张力。通过这些细节的设计,创造了一个现代东方风格的空间,让人感受到与自然深度连接的独特氛围。
-
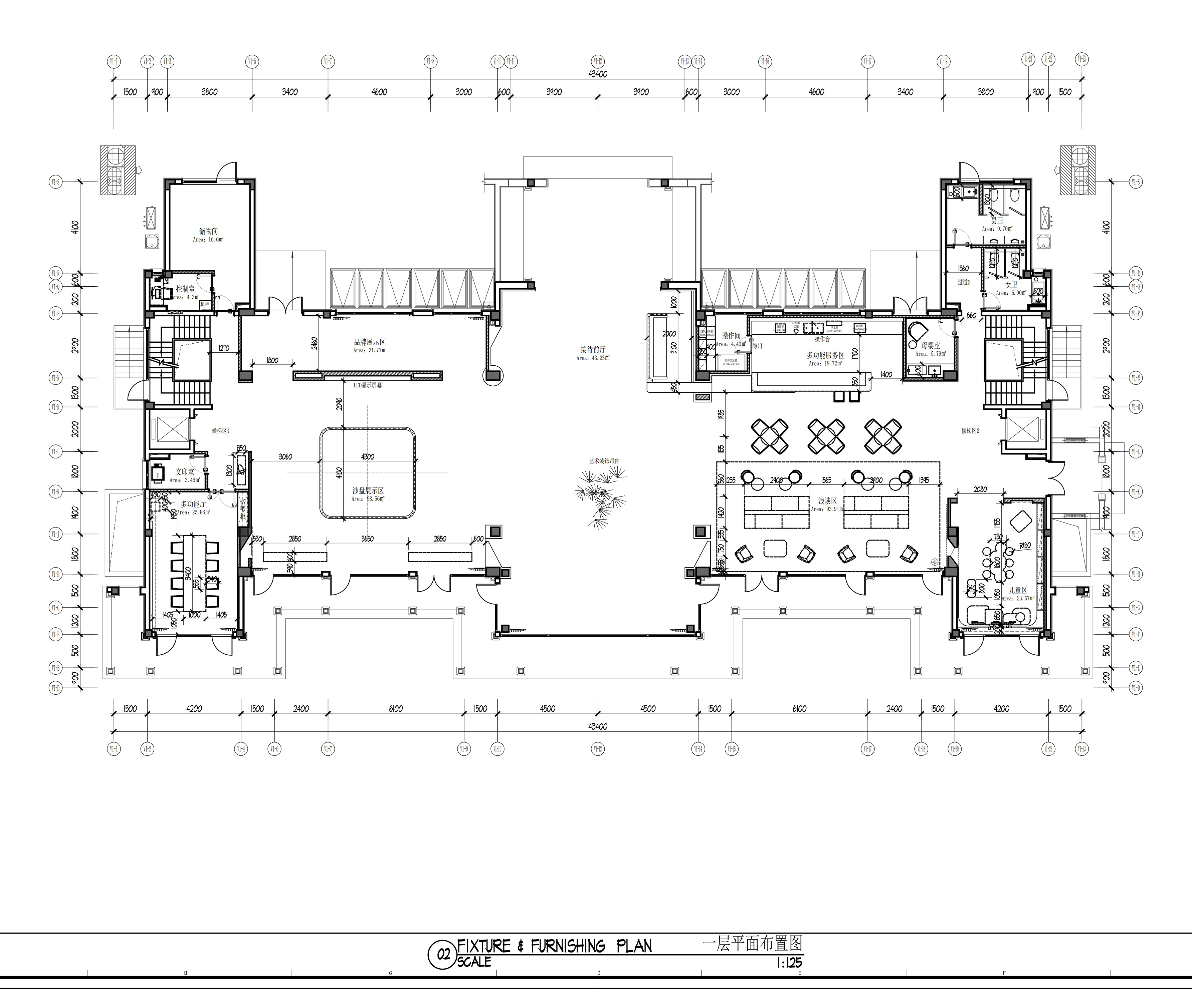
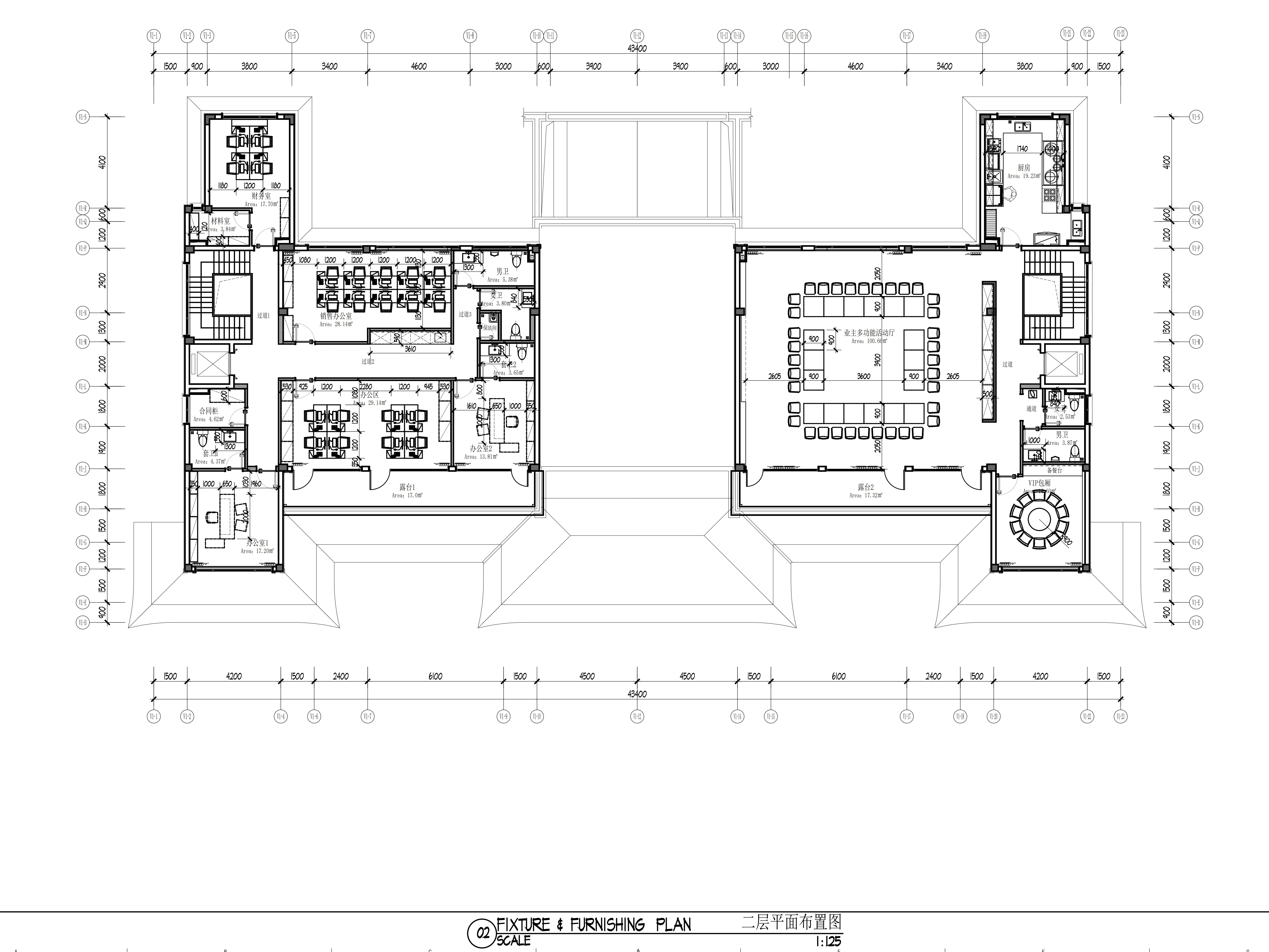
空间布局:空间布局的创新点在于充分考虑了项目所在的复杂地形,并通过合理规划建筑布局与朝向,最大限度地引入湖景资源。通过设置观景平台,优化了建筑与景观的关系,为客户提供了更多的自然观赏空间。在功能分区上,项目不仅满足了售楼处的基本需求,还创新性地引入了多功能室与儿童趣玩空间等,提升了客户体验的多样性和互动性。整体空间设计精细划分,充分考虑到销售流程与客户需求,使得每个功能区域既独立又有机衔接,提升了空间的实用性和舒适性。
-
设计选材:本项目在选材上实现了低碳与经济性的创新。优先选用了本地材料,减少了长途运输带来的碳排放,降低了环境负担。材料的选择上注重环保性和耐用性,例如天然洞石和古铜色金属的结合,展现了东方气韵的同时,也符合绿色建筑的要求。此外,部分废旧建筑材料经过回收加工后重新利用,如拆除的木材被翻新再利用,体现了循环经济的理念。在设计上,建筑充分利用自然通风和采光,减少了人工照明的使用时间,进一步降低了能源消耗,实现了绿色可持续发展的目标。
-
用户体验:作品投入使用后,用户反馈非常积极,尤其是在空间的自然氛围和舒适性方面。由于项目的设计理念深刻融入了周围自然景观,客户表示进入空间后便能感受到自然与建筑的完美融合,带来宁静与放松的居住体验。湖景与空间的无缝连接让人感到身心愉悦,同时,空间布局的开放性与流畅性为客户提供了舒适的参观体验。特别是在功能上,项目的多功能区和儿童趣玩空间受到了客户的高度评价,增加了与家人互动和社交的机会。总体来说,项目为客户提供了一个既具现代气息又富有东方文化底蕴的理想空间,用户普遍认为这是一个既能享受自然之美,又能满足日常生活需求的理想居住地。
0
0

认证 · 让您身份增值