M³社区



作品说明
- 项目类型:样板间/售楼处
- 项目地点:廊坊市
- 建筑面积:398.0000㎡
- 项目造价:285.0000万元
- 主案设计师: 程慕
- 参与设计师:程慕
- 竣工时间:2024.04
- 设计机构:广州大朴艺术设计有限公司
-
项目定位:本项目位于廊坊“京津走廊”,致力于打造一个融合活力与情感的现代社区。项目通过现代简约风格的设计,结合都市与自然文化的融合,力求提供一个富有内涵且能引起居民共鸣的空间。项目定位为“以居民体验为核心的一站式生活圈”,旨在通过创造一个既现代又具有情感联系的空间,探索售楼处设计的新路径和可能性。该项目不仅提供售楼服务,更通过独特的空间设计与功能配置,打造一个让居民感到归属的地方。
-
空间意境:在环境风格上的创新点主要体现在视觉冲击和艺术感的构建上。通过砖红艺术砖与金属材料的巧妙碰撞,以及拱卷元素的运用,塑造了现代艺术感十足的外观,突破了传统售楼处的平面设计,带来极具特色的空间体验。此外,空间的色彩与材质搭配既具现代感,又能与自然元素产生良好的融合,体现了现代都市与自然文化交织的美学理念。
-
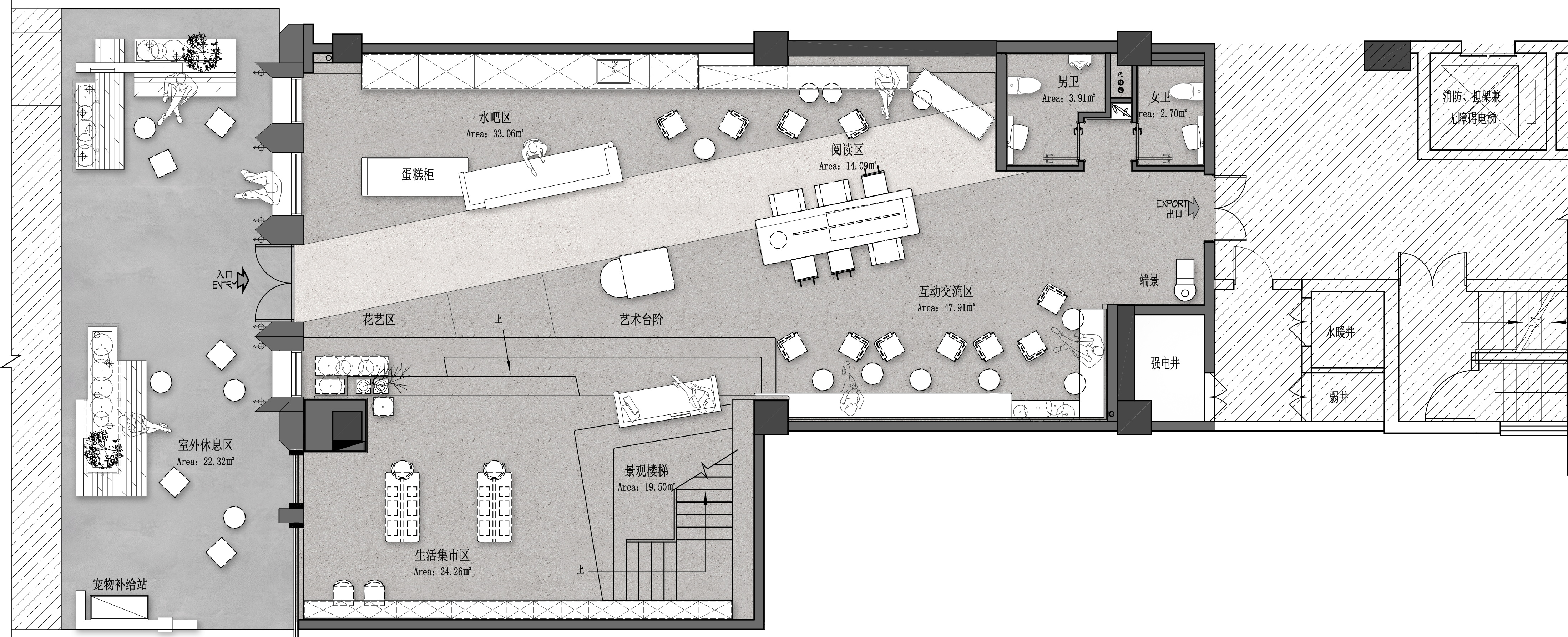
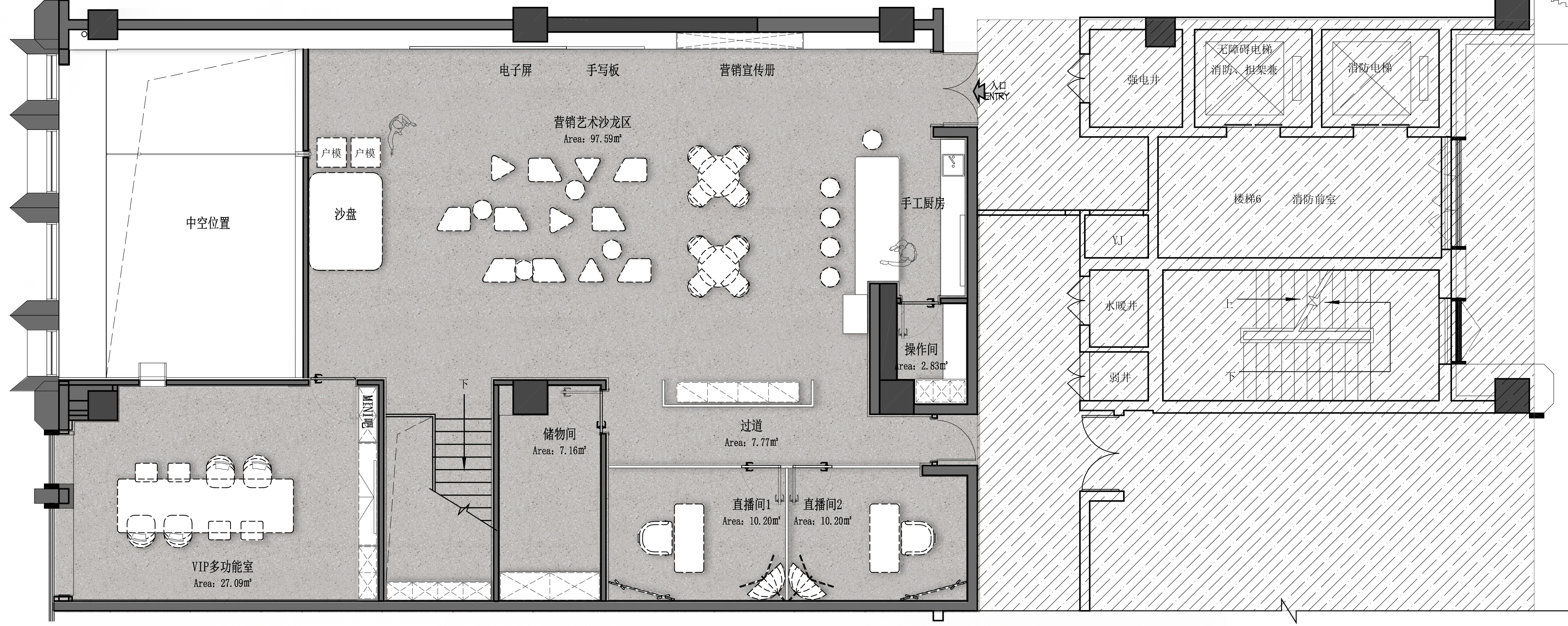
空间布局:空间布局的创新体现在多功能区的融合和立体空间的运用上。项目通过重新定义传统售楼处,创新地将茶咖区、自助模式的材质碰撞、造物手作区的多功能转换等元素融合在一起,提供更加丰富且灵活的使用空间。立体空间的运用打破了传统的平面单调,使空间层次更加丰富,为访客带来新的互动体验。每个区域的设计均考虑到功能与美学的平衡,进一步提升了空间的实用性与吸引力。
-
设计选材:在选材上,项目注重低碳与经济性的创新。首先,材料采购优先选择本地材料,减少运输能耗与碳排放,支持绿色可持续发展。其次,废旧金属和环保艺术砖的运用不仅符合耐久标准,还有效降低了维护成本。绿化选择本地植物,适应当地气候,减少水资源消耗,并为居民创造一个自然亲近的环境。此外,材料回收利用的做法也在项目中得到了充分的体现,确保了设计的可持续性与环保性。
-
用户体验:作品投入使用后,用户反馈表现极为正面。尤其是在多功能性和空间灵活性方面,售楼处不仅提供了传统的接待功能,还成功地融入了茶咖区、造物手作区等创新设计,增强了用户体验的丰富性与互动性。参观者普遍表示,空间的多元化与立体设计给他们带来了不一样的感官体验和情感共鸣。绿植和艺术装置的点缀也让空间更加温馨且具有亲和力,使客户在了解项目的同时,能够感受到浓厚的生活气息。此外,环保与可持续性设计得到了用户的高度评价,尤其是在材料选用和绿色植被的布局上,用户认为这些元素让他们对项目的长远发展和居住环境充满信心。整体而言,项目不仅成功提升了品牌辨识度,也为未来居民提供了一个充满活力与文化共鸣的理想社区。

