300平叠墅设计让家与美学相遇



作品说明
- 项目类型:别墅
- 项目地点:南京市
- 建筑面积:300.0000㎡
- 项目造价:150.0000万元
- 参与设计师:王高建
- 竣工时间:2022年12月
- 设计机构:南京壹石空间设计
-
项目定位:业主经营着2家不同的公司,一直学习并遵循稻盛和夫的经营理念。如事业上的追求一样,在对家的装修上也目标明确,知道自己想要的方向。
对家的期待,希望是打破自己现有的喜好,愿意站在设计师的审美向上延伸,不固守,不执念,愿意改变和接纳,这本身就是一种难能可贵的品质。主动引导自己成为自己想成为的人,打造想要的环境,正如稻盛和夫所说环境造就人,圈子改变人。家是我们的第一环境,所以要极为珍视它。
携手业主,为了实景落地我们付出了不亚于任何人的努力。
-
空间意境:客厅想要表达出气场
质朴 氛围 鼓励沉浸其中
顶面造型线条流畅 用弧度 圆表达刚中至柔
木饰面 石材 微水泥 体现质感
立面塑造错落有序
我们希望给业主的家是心灵的栖息地
是唤起内心情感的一种表达
它是克制的也是有张力的
是低调的但是充满着质朴的内涵
楼梯第一踏步给出扩张感
包容感地台式设计
扶手用薄铁艺挂于踏步边
节省空间 留出呼吸
为了增加空间的活泼感
做了一些有趣的设计
圆圆的镂空 椭圆形飞机窗造型
无论是观其本身
还是透过它们看外景
都让生活多了一番有趣的气息
我们餐厅的设计顶面做了圆且润的造型
内嵌灯饰 宛如一轮圆月
呼应圆形餐桌
就连餐椅也是选择的环形
代表有始有终
使人气和财气都不会流散
增减有道
用材质去调动空间色彩情绪
质朴的餐边柜整体木色材质
嵌入自然连贯的普拉达绿大理石
朴实中蕴着高贵
业主用于摆放咖啡机和一些精致小饰
实用性和示美性俱佳
墙面和地面用沉淀东方意韵水磨石瓷砖
柜体延用客厅相呼应的木色
用黑色石材压色
衬出沉稳气息的高级感
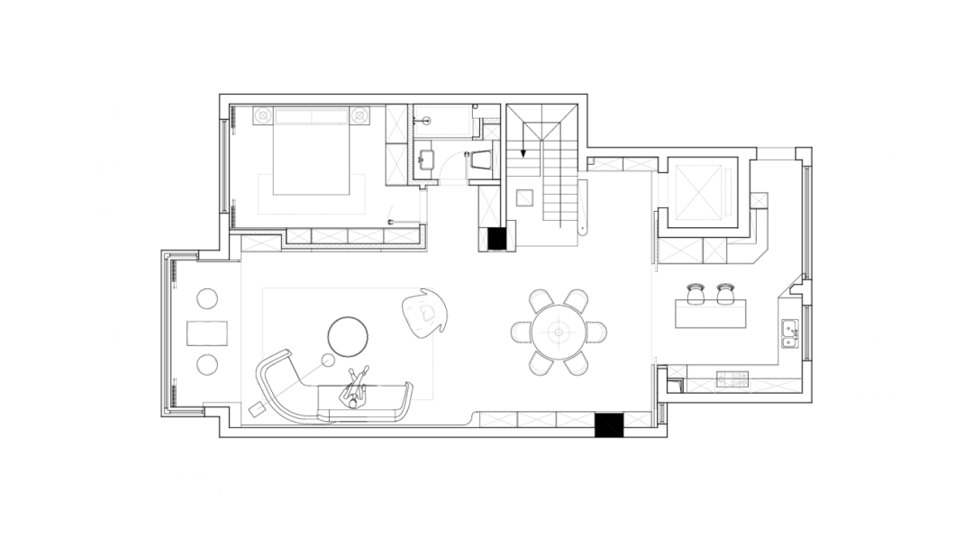
卧室空间更关注功能性与舒适性
白色大面积收纳柜
为后期收纳做好了充足的准备和预设
床头背景木色抽缝
色调延伸到卫生间
保证了空间画面的整洁和有序
让空间更有延伸感
浴室;浴缸旁边背景墙
是设计师选用大理石
让师傅现场做抽缝然后打磨而成
是普通材质达不到的视觉冲击力和高级感
-
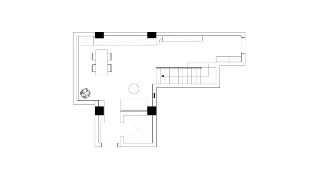
空间布局:原地下室暗淡窄长
现经设计重组 摇变为一个静谧的空间
和光同尘 引光入室
松弛感的核心 是自然 是呼吸
空间都以此为核心 设计围绕于此
原厨房是封闭的 零碎的 我们化整为一
利用原有墙体把厨房门嵌入其中
视觉效果完全是开放的状态
只有中式爆炒菜肴才需要把门关闭
中西厨结合
岛台为业主生活场景提出了不同的畅想
或是夫妻二人早茶
或是一大家人相聚忙活的不同场景
卫生间:采用了雾化玻璃借光入卫
解决暗卫采光
同时卫生间顶部通风换气也考虑到位
装置自动气味感应换气机
全面解决暗卫采光和换气问题
次卧更具极简和艺术感
床尾一整排收纳柜为生活的零碎做好包容
外面的空间都以静和美的形式展现
床头背景和床头柜连贯延伸到展示架
另一侧放了一个有趣味楼梯踏步做床头柜
在空间中审美
在美学中表达生活
父母房间功能齐全
满足父母看电视的需求
床位收纳柜部分做成黑色
电视嵌入更毫无违和感的自然
卧室背景见光不见灯
可以使空间更加自然 舒适
减轻光线对眼部造成的疲劳
好的氛围感必定离不开灯光的设计
楼梯走到四楼
走廊设置了一处小憩的地方
原承重墙体被包裹其中
除了让空间视觉感更舒适
四楼有了公共区
目前兼具书房的小卧室
女主人喜欢在此办公
工作累了喝水休憩一下非常的便捷
-
设计选材:沙发背景墙延伸至餐边柜质朴的木色材质突出普拉达绿大理石,
楼梯扶手选择薄铁艺刷乳胶漆,不会过多占用踏步空间,轻盈
墙面和地面用沉淀东方意韵水磨石瓷砖
浴室大理石抽缝增加层次感
雾化玻璃增加暗卫采光 -
用户体验:点赞壹石!壹石作品大小户型都很舒适,相处见细节,咱这也是老客户回评点赞了,壹石稳稳哒,艺术情怀审美兼具,实力用心省心放心。

