筑梦空间
1176
作品说明
- 项目类型:餐饮
- 项目地点:大连市
- 建筑面积:8000㎡
- 项目造价:3500万元
- 主案设计师: 易秀
- 参与设计师:宋成健、顾金欣、李雄星
- 竣工时间:202310
- 设计机构:易秀空间营造工作室
-
项目定位:本案坐落于大连市开发区,园区原为工业厂房。
随着城市化的推进和产业结构的转型,越来越多的工业用地失去了原有的作用和功能,衰落工业厂区的更新改造逐渐成为城市新消费增长点,城市升级新亮点。被重新赋予时代活力后,重新焕发生机。 -
空间意境:选用白色作为本案的设计基调
-
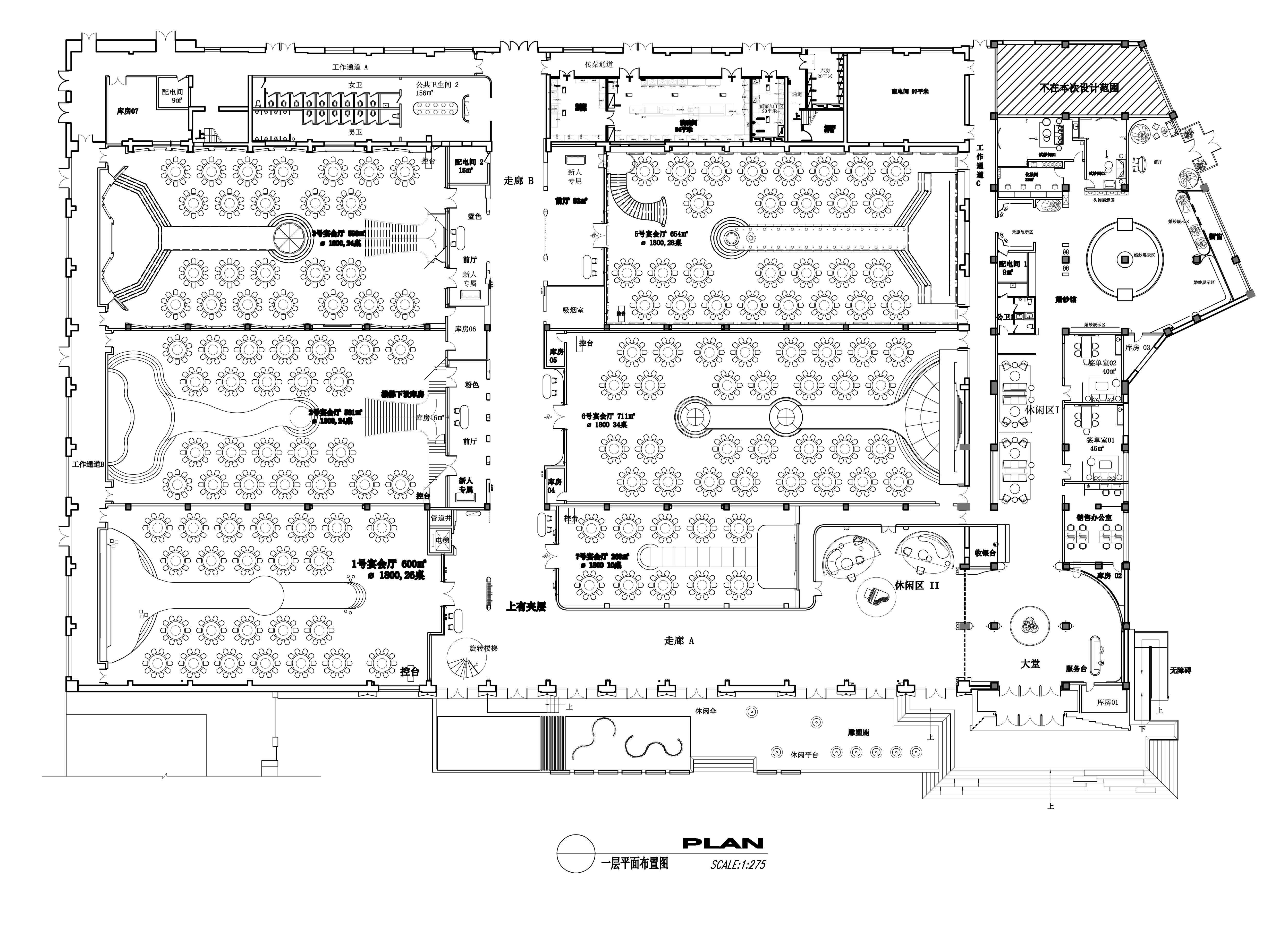
空间布局:诺尔森婚礼艺术中心以精致的场景,为新人提供沉浸式的婚礼体验。项目总面积10000㎡,由三个独立建筑组成,通过合理规划,有效的将功能分区有效的串联起来,6个各具特色的主题婚礼殿堂,配套6个专业的化妆间,独立的婚纱礼服中心,真正的做到“一站式”婚礼服务机构
-
设计选材:摒弃了大量使用昂贵的材料和工艺,运用建筑的手法,大面积选用漆类作为天花及墙面的面材,营空间氛围。
-
用户体验:在尽量控制成本的前提下为客户赢得了高质量空间效果
1
1

认证 · 让您身份增值