东方雅韵-六喜精致中国菜



作品说明
- 项目类型:餐饮
- 项目地点:哈尔滨市
- 建筑面积:960.0000㎡
- 项目造价:3300000.0000万元
- 主案设计师: 易秀
- 参与设计师:唐海波、宋成健、顾金欣、李雄星
- 竣工时间:2020-11-01
- 设计机构:易秀空间营造工作室
-
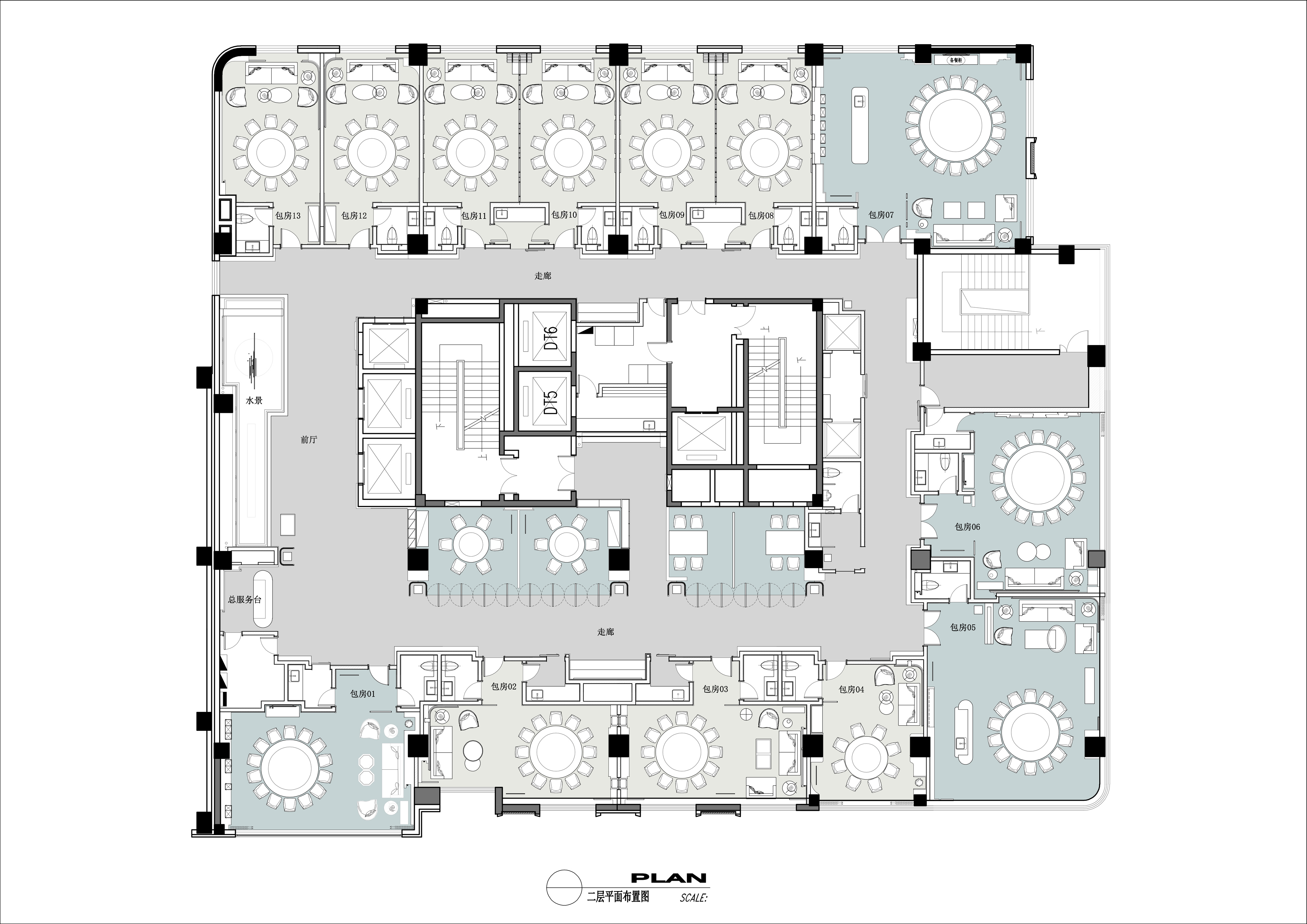
项目定位:本案是酒店项目的中餐厅,位于酒店的二层整层空间,消费定位为中高端的商务宴请,而餐厅出品为以江南菜系为主的融合菜。
-
空间意境:在空间规划上,主要以包房为主,配以4个可开合的卡台,包房都配备洗手间,以及会客交流的休闲区。
-
空间布局:在空间规划上,主要以包房为主,配以4个可开合的卡台,包房都配备洗手间,以及会客交流的休闲区。
-
设计选材:空间内大量运用金属玻璃屏风的艺术表达形式,又让空间多了几分现代感的精致之美,华而不俗。设计选材,墙面选用暖色粗麻和真丝壁布硬包,木饰面选用温润的胡桃木,再配以古铜色金属板镶嵌造型,运用去繁化简的手法,延续东方文化的历史文化底蕴,将传统与当代在方寸之间相融,呈现东方情韵。
吊灯造型灵感来自中式建筑,设计师提炼与解构经典东方建筑元素,以透明水晶材料为载体,让东方意韵与当代意境的完美结合。 -
用户体验:氛围营造,设计师基于“自然东方,诗意人文”的理念,真正为客户营造出具有东方美学的就餐空间。

