旬酒堂



- 项目类型:餐饮
- 项目地点:深圳市
- 建筑面积:160.0000㎡
- 项目造价:40.0000万元
- 参与设计师:张成
- 竣工时间:2023-09-07
- 设计机构:深圳市花万里策划设计有限公司
-
项目定位:东北餐酒馆,一个融合现代潮流与东北韵味的独特餐饮空间
-
空间意境:旬酒堂的空间场景创新之处在于将现代元素与东北传统风情融为一体。现代的家具、灯具和装饰品与东北的朴实、自然的元素相结合,创造出一种独特而具有鲜明地域特色的环境风格。以暖色的红色为主色调,搭配有质感且厚重的做旧木料,细节上以雪花、大花布元素作为点缀,各元素巧妙结合运用,实现了现代、新潮与中国东北特色的碰撞。旨在打造一处舒适温馨、热闹又有格调的空间环境,让所有人在这方天地里,欢聚一堂,从陌生到熟悉,畅聊生活。
-
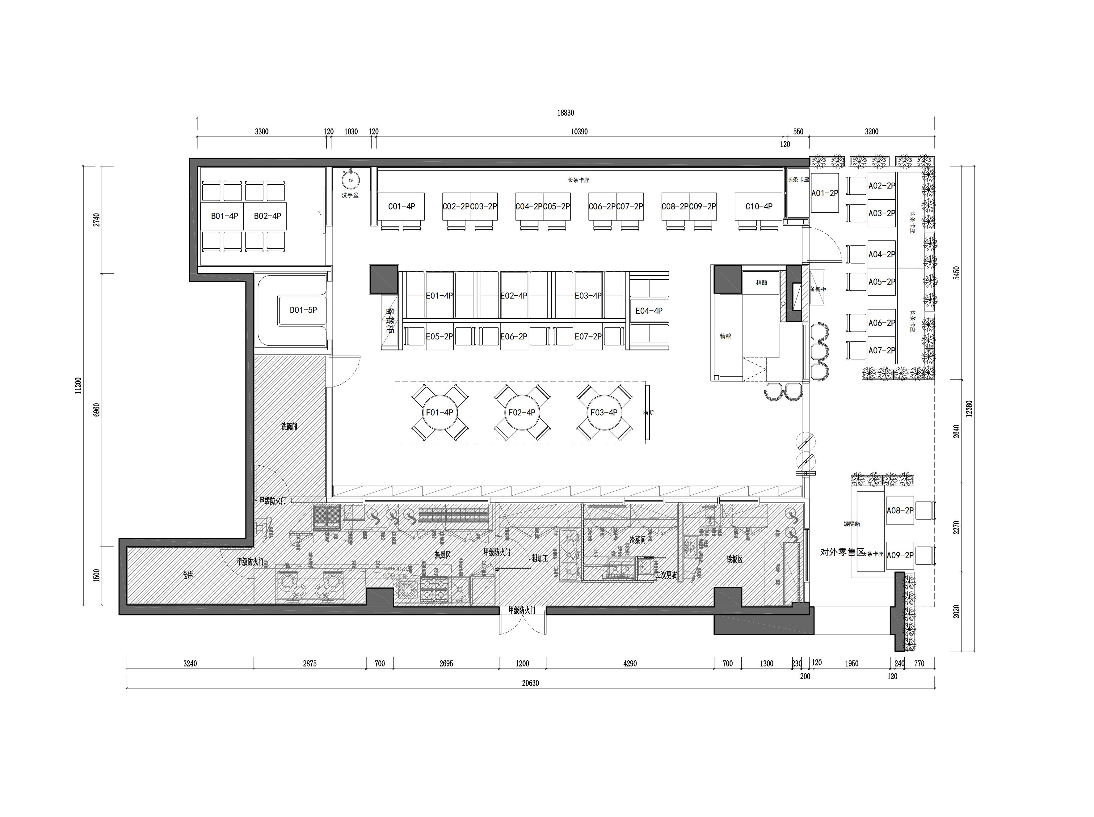
空间布局:旬酒堂,一个初来深圳的餐饮品牌,在短时间内快速实现品牌自身的产品价值与目标客群的情绪价值需求紧密结合的华丽蜕变。它不同于市面上千篇一律、讲究精品格调的西式bistro,也跳脱出其它中式酒馆缺少独特文化基因、没有辨识度的窘境。通过创造多个区域,如开放式用餐区、社交角、私密包厢等,旬酒堂满足了不同顾客的用餐需求。每个区域都有其独特的氛围,为顾客提供了更多的选择。
-
设计选材:使用可持续性材料,如再生木材、竹材等,以减少对环境的影响。这些材料有助于降低碳足迹,同时展现出对环保的承诺。选择符合节能环保标准的建筑材料,如低挥发性有机溶剂的涂料、环保型地板材料等,以减少对室内环境的污染,同时考虑能源的节约。
-
用户体验:从南到北,从锦州到深圳,跨越2000多公里的距离,不走寻常路的旬酒堂把东北特色餐饮、特色文化和锦州烧烤带到了深圳。旬酒堂自投入使用以来,成为了深受顾客喜爱的餐饮场所。其独特的设计理念和空间布局创新为用户带来了极致的用餐体验。文化交融的情感体验:用户对于旬酒堂将现代与传统、文化与设计相融合的设计理念反响强烈。装饰艺术墙、以及主题装饰让顾客在用餐的同时沉浸于一种东北式的情感体验,让用餐不再仅仅是填饱肚子,更是一场现代东北文化之旅。
深圳就像一个梦工厂,很多人在此圆梦,也有很多人难免失意,梦境破碎。而现实中,往往更多的人是在背负着很多压力和烦恼,踽踽而行。现实已有太多的不容易,深圳人需要一个能暂时抛掉烦恼和压力的场所,让生活回归生活,重新感受生活的温度。而一个有特色的小酒馆,会是他们下班后消愁解乏、休闲时放松心情的绝佳场所。
旬酒堂,一个初来深圳的餐饮品牌,在短时间内快速实现品牌自身的产品价值与目标客群的情绪价值需求紧密结合的华丽蜕变。它不同于市面上千篇一律、讲究精品格调的西式bistro,也跳脱出其它中式酒馆缺少独特文化基因、没有辨识度的窘境。
“旬”意为酒过三旬,与“寻”同音,亦可为“寻好酒、寻酒友”,与本案所营造的情境非常契合,如跃纸上
以暖色的红色为主色调,搭配有质感且厚重的做旧木料,细节上以雪花、大花布元素作为点缀,各元素巧妙结合运用,实现了现代、新潮与中国东北特色的碰撞。
旨在打造一处舒适温馨、热闹又有格调的空间环境,让所有人在这方天地里,欢聚一堂,从陌生到熟悉,畅聊生活。
旬酒堂自投入使用以来,成为了深受顾客喜爱的餐饮场所。其独特的设计理念和空间布局创新为用户带来了极致的用餐体验。
用户对于旬酒堂将现代与传统、文化与设计相融合的设计理念反响强烈。
装饰艺术墙、以及主题装饰让顾客在用餐的同时沉浸于一种东北式的情感体验,让用餐不再仅仅是填饱肚子,更是一场现代东北文化之旅。
通过创造多个区域,如开放式用餐区、社交角、私密包厢等,旬酒堂满足了不同顾客的用餐需求。
每个区域都有其独特的氛围,为顾客提供了更多的选择。
从南到北,从锦州到深圳,跨越2000多公里的距离,不走寻常路的旬酒堂把东北特色餐饮、特色文化和锦州烧烤带到了深圳。
如果你在疲惫烦躁的两点一线之间的生活面前,时而质疑,偶尔动摇,那不妨寻酒而来,就着生活与美味下酒,放松自己,刷新心情。在质疑中,找到能继续下去的力量,找到和旬酒堂一样前进的动力。

