树岸


作品说明
- 项目类型:餐饮
- 项目地点:深圳市
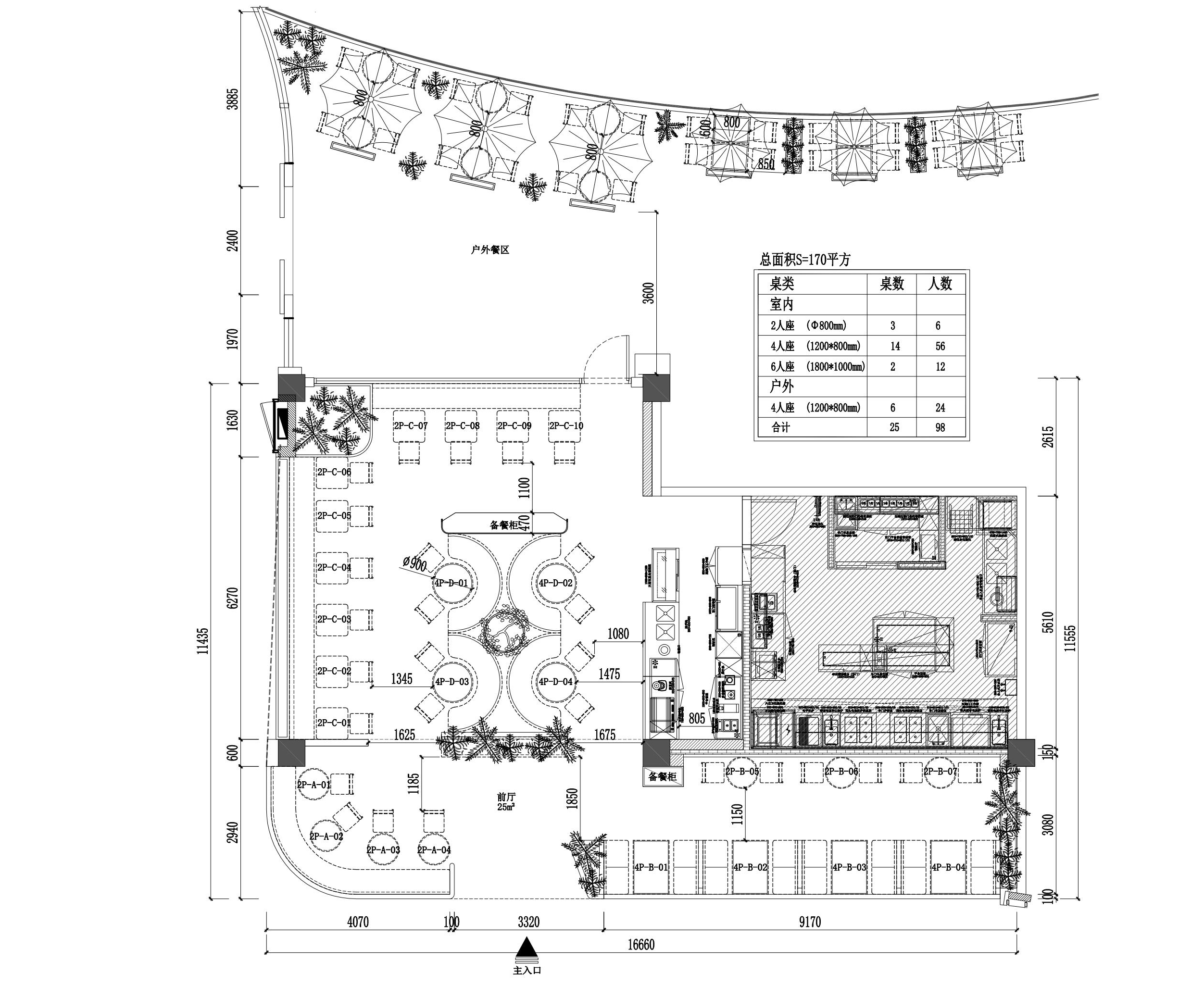
- 建筑面积:170.0000㎡
- 项目造价:38.0000万元
- 参与设计师:张成
- 竣工时间:2023-08-09
- 设计机构:深圳市花万里策划设计有限公司
-
项目定位:复合式休闲西餐,全时段休闲餐吧
-
空间意境:为了更契合樹岸“全时段休闲餐吧”的定位,以及满足消费者对于“樹岸”的一切想象,花万里设计团队有机结合了新巴比伦主题与各种优雅奢华的装饰,打造一场视觉和食欲的盛宴,让都市人拥抱一场“从都市逃离,做一天巴比伦人”的奇妙之旅。
-
空间布局:开放式用餐空间:
创造一个开放式的用餐区域,打破传统的桌椅设置,让顾客感受到更自由、舒适的用餐氛围。合理利用空间,使每个用餐区域既有私密性,又能感受到整个餐厅的活力。
自然元素融合:
引入自然元素,如室内植物和自然光线。通过大窗户、天窗等设计,使自然光充分照射到用餐区域,提升空间的明亮感,同时植物的存在也为空间增添清新氛围。
-
设计选材:选择符合环保标准的绿色建筑材料,如低挥发性有机溶剂(VOC)的涂料、环保型地板材料等,以改善室内空气质量,减少对环境的污染。寻找创新的复合材料,结合多种材料的优势,创造出轻量、坚固、环保的新型材料。这有助于提高空间设计的创新性和性能。选用肌理漆、木饰面,整体散发出复古、质朴的独特气质,穿插棕榈树及楔形文字做纹样点缀,旨在反映巴比伦充满艺术的城市景观。
-
用户体验:樹岸餐厅的设计在实际使用中取得了显著的效果,进入餐厅的顾客们被现代复古的设计风格所吸引,从而创造出一种独特而令人难忘的用餐体验。空间布局的开放性使顾客感到宽敞自由,社交角和艺术墙的设置提供了额外的娱乐和探索空间,充足的自然光线、舒适的座椅以及自然舒适的绿植都增强了顾客在餐厅中的舒适度。
我们的生活虽然已经“解封”许久,但很多人的精神仍困在原地。特别是当工作时间与生活时间越来越紧密地交织在一起,纯粹的、完全用作自我享受的时间也变得奢侈。
比起被热爱的事物召唤,当代年轻人更想用自己的方式主动探索热爱、寻找自由——这种自由可能是某个午后的一瞬心动,也可能是与自己的喜好碰撞时的惊喜。这种无论时间、不论场景,更为松弛的体验探索,被当下Z世代年轻白领重新定义的“新热爱主义”。
与正餐相比,休闲简餐便是“新热爱主义”中最彰显自由的复合消费模式。它是年轻白领们轻松获得能量补给,快速拉近与友人、爱人关系的新天地。
选择在深圳开一家休闲餐饮店,“她经济”一直以来都是不可忽视的消费力量。尤其是一间充满精致感、仪式感、舒适感的休闲餐饮店,更容易受到年轻女性的青睐,
为了更契合樹岸“全时段休闲餐吧”的定位,以及满足消费者对于“樹岸”的一切想象,花万里设计团队有机结合了新巴比伦主题与各种优雅奢华的装饰,打造一场视觉和食欲的盛宴,让都市人拥抱一场“从都市逃离,做一天巴比伦人”的奇妙之旅。
选用肌理漆、木饰面,整体散发出复古、质朴的独特气质,穿插棕榈树及楔形文字做纹样点缀,旨在反映巴比伦充满艺术的城市景观。
一个受欢迎的餐饮店不仅要有特色的菜式,还要有一个舒适的用餐环境。如今,休闲餐饮已经成为餐饮主流时尚,客户不单单在这里吃饭小酌,也更愿意在这里聊天、谈工作。
越来越多的故事可以发生,但前提都是在一个让人放松的氛围环境下诞生。
而在樹岸,从视觉到味觉到听觉触觉等等多重美妙体验,将成为越来越多深圳人吃饭和相聚的首选场所。

