烧蠔帮
428 - 项目类型:餐饮
- 项目地点:湛江市
- 建筑面积:500.0000㎡
- 项目造价:118.0000万元
- 参与设计师:张成
- 竣工时间:2023-03-01
- 设计机构:深圳市花万里策划设计有限公司
-
项目定位:江湖酒馆:自由放松、江湖风骨、精致国潮
-
空间意境:打造拥有江湖气息的零距离精致用餐场景,大胆采用红色作为主色调,符合江湖儿女的豪情壮志;古代侠士风格,可在处处彰显着那一股正义、豪迈、不拘小节。以红为主体承载江湖的柔情与斗争,风格结合了现代的简洁精干与中式审美底蕴。元素提炼:灯笼、国潮服饰、竹子、酒坛等元素,更容易让人身临其境,仿佛一下就穿越回到古代各类江湖人士聚集的客栈。
-
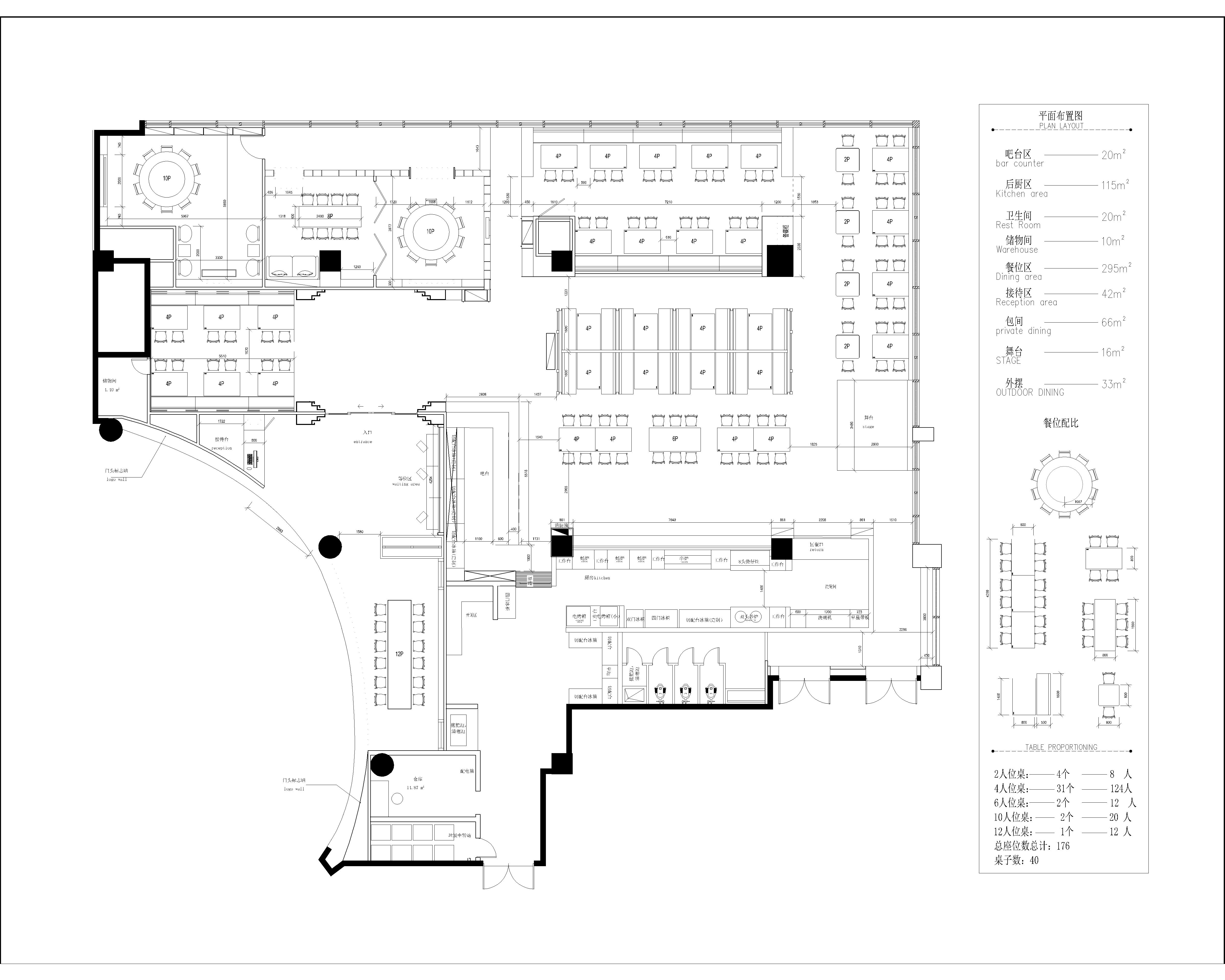
空间布局:在进行空间设计前,品牌的诉求是精致化并提升体验感。因此,在聚焦江湖核心概念的前提下,以江湖的奔放和自由为主旋律进行空间设计,融合时下流行的设计元素,打造一个可以仪式、可以放松的江湖酒馆。
-
设计选材:软装细节:用餐区域设置了不同类型的桌椅,满足不同人群需求,并且避免了视觉上的单调。简朴有质感的木质桌椅,场景化的打造,让空间内的江湖气息更加浓厚。
-
用户体验:一踏进这个江湖酒馆,仿佛置身于古代江湖世界,红色的主调打破了常规,让整个空间充满激情与斗争的氛围。灯笼在空中摇曳,投射出淡淡的暖光,为整个场景营造了一种神秘而温馨的感觉。服务人员穿着融入国潮元素的服饰,微笑着迎接顾客。顾客纷纷对这个全新的江湖酒馆表达了高度的满意。许多人赞扬了空间设计的独特性,觉得仿佛一下就穿越回到了古代的江湖之中。灯笼、竹子等元素的巧妙运用让他们感受到了浓厚的文化氛围。
湛江作为中国大陆最南端、三面环海的生蚝专属场,来到湛江就像是来到了生蚝的天堂。大街小巷随处可见烤生蚝的摊子,几块钱就能吃到肥美鲜嫩的生蚝。说到吃生蚝的好去处,除了热火朝天的大排档们,能与其分庭抗礼的必定要属本土连锁品牌——烧蠔帮。烧蠔帮致力于传承湛江生蚝文化,在湛江不管是哪一家店,一到用餐时间必定熙熙攘攘坐满了人,吃蚝、饮酒、聊天,热闹非凡。
古龙说过:有人的地方就有江湖,人就是江湖。在烧蠔帮的这片江湖里,没有纠帮结派,打打杀杀,只有海边蚝民和海中生蚝的豪迈自在,只有人与人之间的情感与真情。
因此在烧蠔帮找到花万里团队,提出空间升级的需求时,我们马上想到,烧蠔帮名字里的这个“帮”字,注定了这个空间的豪爽侠义,想象着食客们大碗喝酒,大口吃蚝的放松场景,这注定是当地消费者一个可以仪式、可以放松的江湖酒馆。
为此,我们找到了三个核心的内容链接按钮并以此为连线,打通地域特性、产品价值、客群生活方式的完整闭环。
享誉“中国海鲜美食之都”的湛江,几乎每个当地人一定都会认同,最不能错过的海鲜必定是湛江生蚝。在湛江,生蚝的产量不仅可以占据全国的半壁江山,产蚝的历史更是可以追溯到两千多年前,可以说是“蚝”气冲天!
对于湛江海边蚝民而言,一艘渔船便是一个家,没有太多精致雅致,就像那江湖之路,本就热血豪迈。因此,烧蠔帮在视觉形象上,需要是一种具有豪情义气的形象。
湛江人食蚝史源远流长,酥炸、油焗、煎蛋、煲粥、清蒸、炙烤......花样百出的做法,让湛江当地食客的饮食习惯难免越来越挑剔。因此,鲜嫩肥美,爽、滑、甜,脆而无渣,是烧蠔帮得以在生蚝美食界扬名立万的根本。
湛江当地食客,也如生蚝一般,你看那蚝的外壳,不也正是如此粗狂不羁,内心却是充满了柔软和真情。所谓人在,江湖就在;江湖在,人情就在。
于是,为当地食客打造一处具有江湖肆意,侠客气概的怀旧氛围,同时亦不失现代新潮气息的零距离精致用餐场景空间,是本案的最大命题。
根据品牌调性,原LOGO设计以江湖、火辣、热闹、烧烤等元素作为灵感发散来源,以代表江湖豪情的红色为主色调,蓝色为辅助颜色;
结合酒坛、扇形、灯笼和火焰等元素作为辅助图形,呈现出一套独属于烧蠔帮具有湛江滨海城市自带的江湖气息的视觉系统,极具视觉冲击力,让人过目不忘。
在进行空间设计前,品牌的诉求是精致化并提升体验感。因此,在聚焦江湖核心概念的前提下,以江湖的奔放和自由为主旋律进行空间设计,融合时下流行的设计元素,打造一个可以仪式、可以放松的江湖酒馆。
大胆采用红色作为主色调,符合江湖儿女的豪情壮志;古代侠士风格,可在处处彰显着那一股正义、豪迈、不拘小节。
以红为主体承载江湖的柔情与斗争,风格结合了现代的简洁精干与中式审美底蕴。
元素提炼:灯笼、国潮服饰、竹子、酒坛等元素,更容易让人身临其境,仿佛一下就穿越回到古代各类江湖人士聚集的客栈。
软装细节:用餐区域设置了不同类型的桌椅,满足不同人群需求,并且避免了视觉上的单调。简朴有质感的木质桌椅,场景化的打造,让空间内的江湖气息更加浓厚。
0
0

认证 · 让您身份增值