窥憬



作品说明
- 项目类型:别墅
- 项目地点:重庆市
- 建筑面积:535.0000㎡
- 项目造价:250.0000万元
- 主案设计师: 姚思萌
- 参与设计师:陈沁悦
- 竣工时间:2023-02-28
- 设计机构:摩町设计
-
项目定位:项目业主为90后新婚夫妻,有国外居住经历,养有古牧犬一只,该房为二人婚房。他们喜欢户外运动,也喜爱电影、健身、聚会等,期望有一个舒适、开阔、符合个人生活习惯的住宅,并希望在该房中生活20年。基于业主的诉求,如何给予居住者有别于都市喧嚣的闲适,以及让其体验到与自然相惜的美好岁月,是本次项目着重考虑的地方。因此,在设计之初,我们将住宅视为有机体,以重塑大自然与建筑空间之间的关系为切入点,希望空间能在屋主的居住岁月里日渐丰满独特起来,让流动、自由、有机的空间形态延申出各种生活可能,并诱发使用行为的多样性。
-
空间意境:本项目结构为合院小别墅,共五层。我们没有刻意突出别墅的奢华属性,仅利用合院花园的空间结构特征,融入自然、简约、氧气感,让每层空间均能看见自然景观。我们抹去了别墅空间的高净值人群定位标签,让空间单纯成为一对90后夫妇的舒适、自在的家。
-
空间布局:合理的功能分布与的动线设计是私宅中的重中之重,在这两个板块的设计过程中,我们充分了解了居住者的生活习惯、个人喜好,以及未来家庭成员随着时间变化而可能产生的变动,从而对原空间做了结构上的调整。
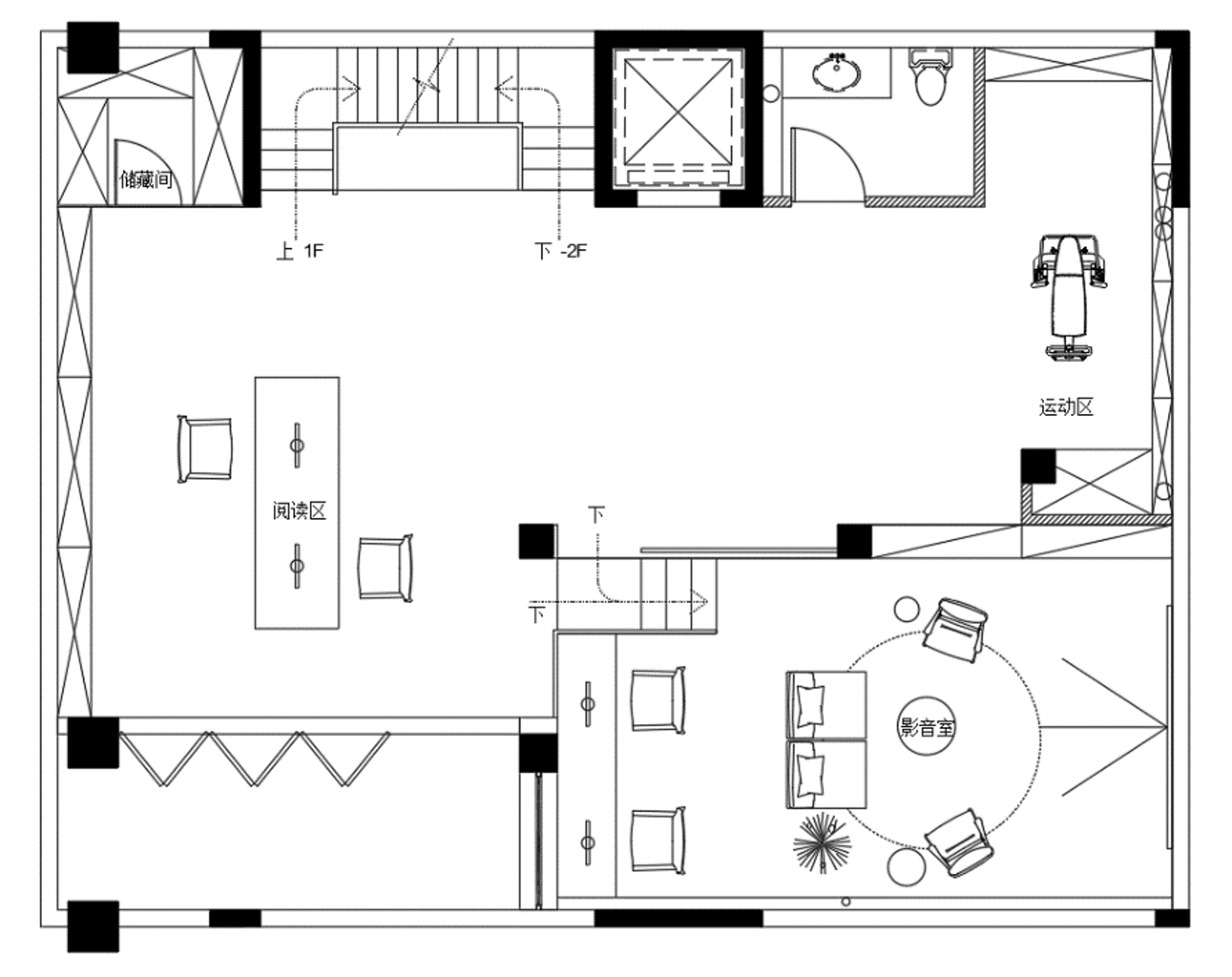
负一楼、负二楼原为一个高层高的单层空间,为赠送区域,我们通过错层的设计将其分为两层。负二楼主要以实用为主,满足洗衣、保姆居住、储物、维修、货物拆卸等功能,并兼具车库到主屋的过厅。负一楼为多功能活动区,可以看电影、健身、阅读、办公、聚会。在该层,我们设计了一个下沉观影区域,通过空间的叠错增加结构感。居住者能选择共处或独享角落,自由运用,增添生活乐趣。同时,由于原结构无任何采光、通风,我们设计了天井,打造绿植内景,引入天光,增加自然气息。
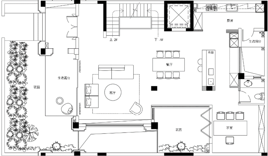
一楼有前庭花园、内庭合院式花园。如何向外纳入自然,为室内创造极佳的开阔感,且模糊室内室外的边界感,是本层的另一个思考。
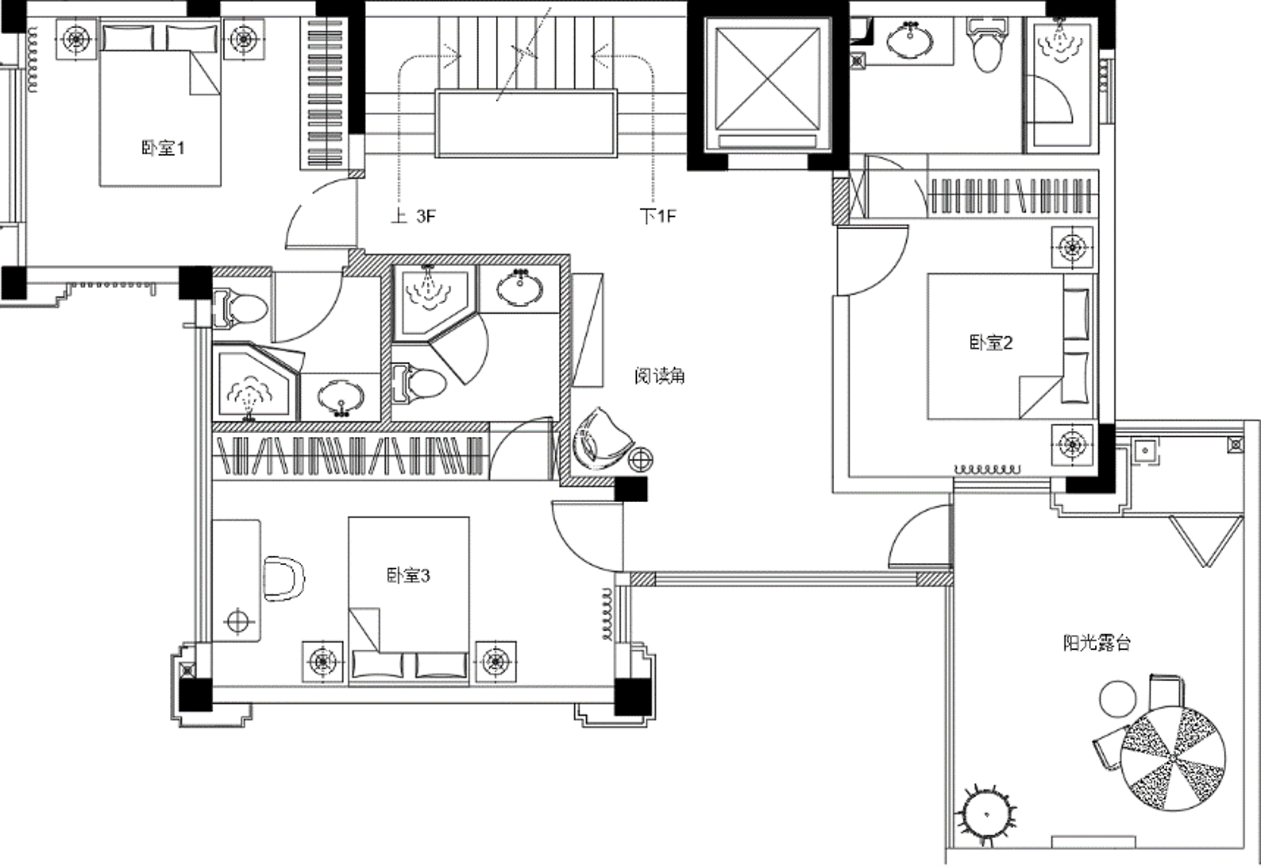
二楼、三楼为私人空间,为未来每位家庭成员提供独立的私人空间,两层楼均有各自独立的花园露台。 -
设计选材:低碳:我们采用天然速生木材、可再生塑料、藤制品等绿色环保的材质,均可回收及长期使用。
经济性:我们通过对材料做高低费用调配,实现250万预算拎包入住。如,易更换、不易用坏的产品上节省预算,如高性价比的仿古批发砖;在隐蔽工程、舒适度、安全性等方面的产品上加大预算,如增加业主居住舒适感的三横系统。 -
用户体验:审美上:业主认为,这是不同于绝大部分别墅空间的小众风格,满足了他们“想要与别人的家有所不同”的预期。
预算上:业主认为,我们既让他们享受到了舒适的居住环境,也满足了他们对预算的严格要求,并且认为资金分配比例得当。
空间结构上:二楼的错层设计及每层楼都能看见景色,是他们最喜欢的地方,大大增加了他们聚会、社交的频率。
一楼:客厅
一楼:客厅
一楼:餐区、吧台区
一楼:客厅
一楼:客厅
一楼:客厅
一楼:餐区、吧台区
一楼:客厅
一楼:客厅
一楼:餐区、吧台区、花园过道
一楼:观景茶区
一楼:茶区
一楼:客厅
一楼:吧台区
一楼:厨房
三楼:主卧
三楼:主卧
三楼:主卧
三楼:主卧(滑门-开)
三楼:主卧(滑门-关)
负一楼:下沉观影区、绿植天井
负一楼:下沉观影区
负一楼:健身区&下沉观影区
负一楼:多功能办公区
负一楼:多功能办公区
负一楼:多功能办公区
负一楼:多功能办公区
负二楼:入户楼梯&电梯
负二楼:入户大厅
负二楼:入户大厅
负二楼楼平面布置图
负一楼楼平面布置图
一楼平面布置图
二楼平面布置图
三楼平面布置图

