江上阔影



作品说明
- 项目类型:住宅公寓
- 项目地点:重庆市
- 建筑面积:120.0000㎡
- 项目造价:60.0000万元
- 主案设计师: 姚思萌
- 竣工时间:2021-11-30
- 设计机构:重庆摩町设计
-
项目定位:原户型仅有单边采光,透光进深有限。我们通过格局的改造,让日光尽可能地透进空间深处,让房屋整体更通透。同时,做打破限制的结构改造,展现家庭关系与个人,营造居家生活情趣的多种可能性,表现没有限制的生活方式。
-
空间意境:空间整体为现代简约风。我们结合户型实际采光及户外景色,采用白色系及玻璃材质,扩大空间视觉感。
-
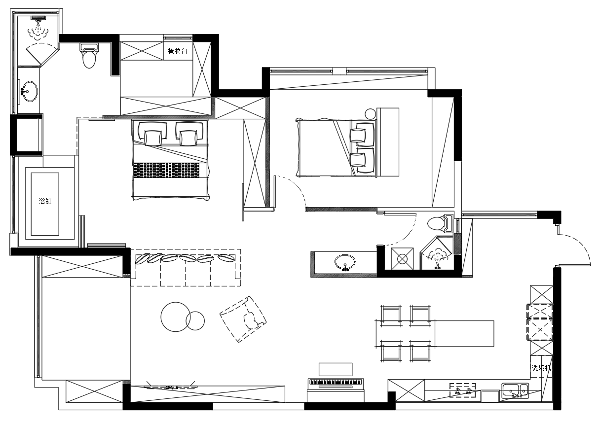
空间布局:(1)客厅、餐区、主卧、主卫,四合一全开敞空间。
空间改造后格局为一室两厅,厨房与客厅全开敞,主卧则设计在沙发后方,中间由透光不透影的长虹玻璃滑门隔断。白天滑门打开,扩大客厅区域面积;晚上关闭滑门,实现卧室空间独立。挑战开放式主卧,打破传统卧室围合空间。
(2)180°观景卫生区
业主喜欢居住区有大量采光,并热爱泡澡,因此全屋采光最好的地方留给了主卫,实现泡澡、洗漱、淋浴、衣帽换取一体化。考虑到房屋夫妻二人单独居住较多,我们在主卫与主卧之间设计了透光透影的玻璃滑门,在隔绝水雾的同时不影响采光。 -
设计选材:全屋大量采用高性价比的长虹玻璃作为空间隔断,在空间分区的同时,解决采光问题。
-
用户体验:业主非常喜欢观景浴缸和主卧,以前业主一周泡一次澡,搬新家后,一周要泡3-4次。

