Mirror x 重庆镜子摄影机构
1169
作品说明
- 项目类型:休闲娱乐
- 项目地点:重庆市
- 建筑面积:1400.0000㎡
- 项目造价:130.0000万元
- 主案设计师: 姚思萌
- 竣工时间:2021-07-07
- 设计机构:重庆摩町设计
-
项目定位:本案是融合接待、办公、摄影、展示等多功能为一体的摄影基地,甲方要求该空间可承载未来十年的发展变化,故我们就未来的各项可能进行探讨,在动线及结构部分下了大量功夫,以此尽量满足甲方在未来使用过程中可能产生的各种需求。
-
空间意境:具有包容性及可变性的自然、简约系摄影基地。
为了让空间在未来有更多的可能性,我们在硬装部分做减法,结构简约,为空间留白,适合未来软装及风格的更替。且在满足摄影需求的条件下保持整体调性一致。 -
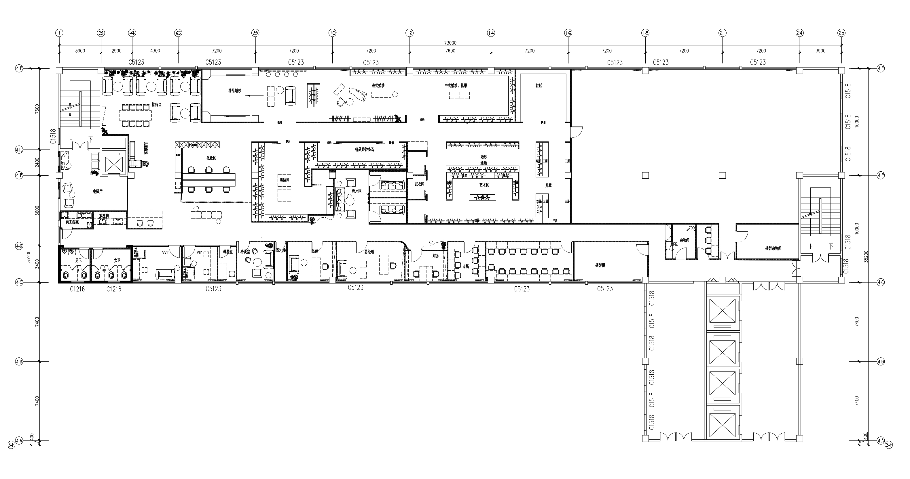
空间布局:走廊洄游动线设计。
刻意设计的两条长廊,首先,是每个人行动的必经之路,墙面点缀画像,便使通道成了展示的一部分;其次,以“U字形”动线联动整个空间,让大厅、办公、化妆、服饰、展示、摄影等各区域串联,方便以最短的距离前往各处;此外,且利用其景深感搭配天花、墙面的统一材质营造沉浸效果,用弧形造型及交错的结构打破直线条的单调。 -
设计选材:轻纱、棉麻、柔絮、微水泥、仿古砖、老木…
均选择自然无污染的材质,在打造舒适感的同时兼顾安全环保性,并在保证效果的前提下尽可能选择高性价比产品,降低业主造价。 -
用户体验:反响很好,成为了该连锁摄影机构标志性基地。
| 融合&可变 本案是融合接待、办公、摄影、展示等多功能为一体的摄影基地,甲方要求该空间可承载未来十年的发展变化。因此,我们就未来的各项可能进行探讨,在动线及结构部分下了大量功夫。
在动线上,以“U字形”动线联动整个空间,让大厅、办公、化妆、服饰、展示、摄影等各区域串联,方便以最短的距离前往各处。
休息区
休息区
设计师利用其景深感搭配天花、墙面的统一材质营造沉浸效果,用弧形造型及交错的结构打破直线条的单调。
刻意设计的两条长廊,是每个人行动的必经之路,点缀画像,便成了展示的一部分。
婚纱试衣区
婚纱区
婚纱区
| 质朴&自然 轻纱、棉麻、柔絮… 纵道、肌理、老木… 柔和自然的设计,让舒适感沁入体验。
原始结构图
平面布置图
0
0

认证 · 让您身份增值