UNVESNO
803
作品说明
- 项目类型:零售
- 项目地点:广州市
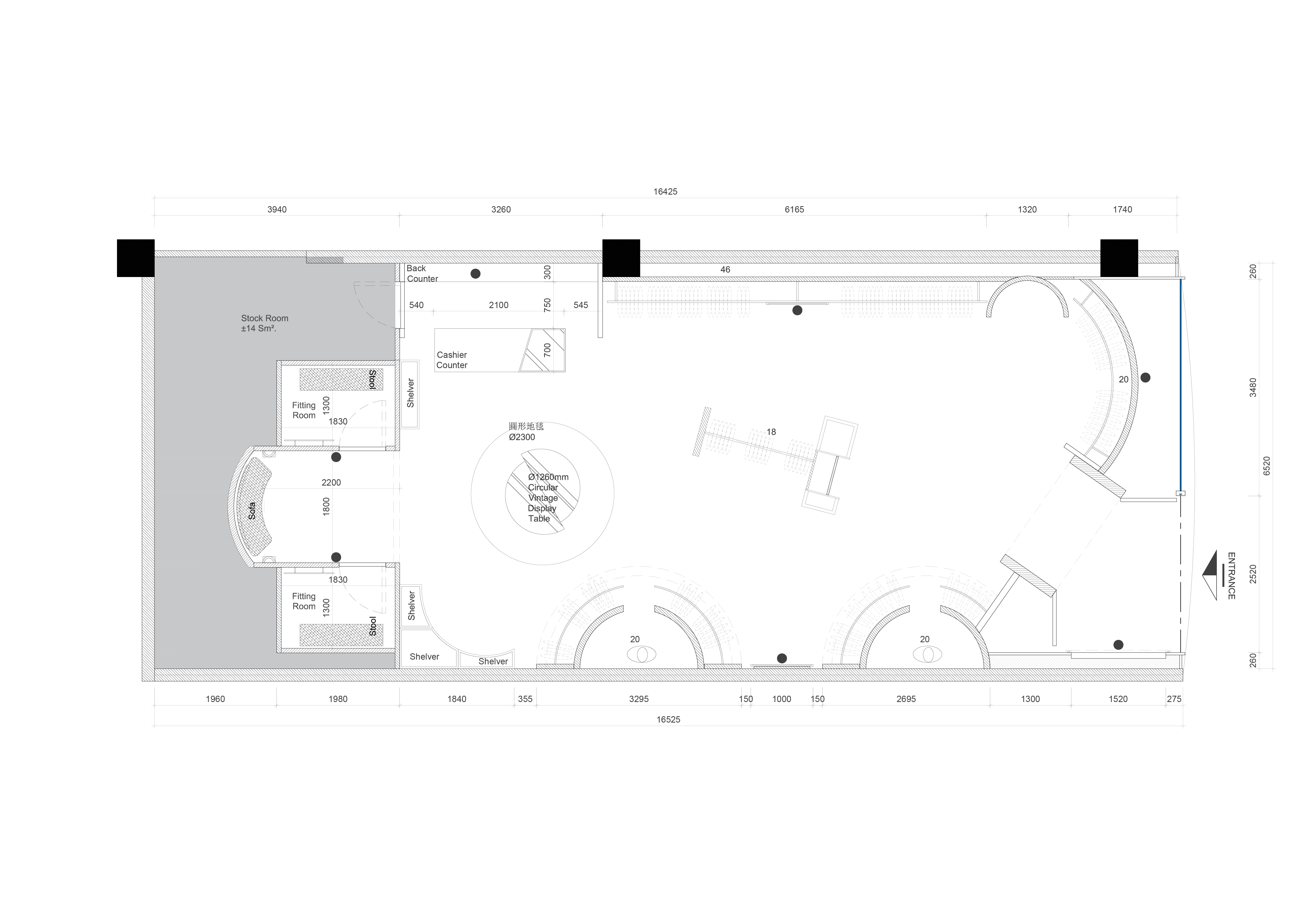
- 建筑面积:110㎡
- 项目造价:150万元
- 主案设计师: 黄骏翘
- 参与设计师:黄骏翘
- 竣工时间:2022-04-28
- 设计机构:广州普巴设计有限公司
-
项目定位:服饰潮牌创立于2018年,品牌名称“UNVESNO〞源自于法语"un vestiaire noir",一个黑色的房间。通过复古和当代的碰撞,给人以超越时间和空间的永恒感,高度契合品牌的概念「停顿的维度」。时间停顿的刹那,身体内的任何物质不再变化,没有声音,有很多物质,但是不会反应。
-
空间意境:不同的材质同样在传递着不同的时间质感,带给消费者一些奇幻的想象与感受,在消费者心底映射出深刻的品牌印象,展示着一个品牌的未来想象,UNVESNO态度是经典的、恒久的,一种更自信的态度,也就建立了品牌的定位和受众群体,设计师建立的态度不是所谓潮流的设计形式,而是永恒和平衡之间的链接,是过去,现在与未来的对话。
-
空间布局:在空间布局上,打破传统的模式,空间大面积运用镜面,通过镜面的不断反射让物件无限复制延伸,空间和时间的界限变得慢慢模糊“复古”,重现过去的东西;那么“复古未来”,就是把过去的未来再呈现一遍,当空间停顿的那刻,人进入了此空间,会有一种熟悉又陌生的感觉去看待事物。
-
设计选材:空间大面积运用镜面材质,通过镜面的不断反射,让空间更有氛围感,更切合主题
-
用户体验:整家店的装修风格简约时尚,设计上深入挖掘品牌的复古超现实的基调,空间设计大胆,整体布局、色调都有强烈的风格特征,很有空间氛围,拍照出片绝绝子
0
0

认证 · 让您身份增值