上海俊文设计办公室
373
作品说明
- 项目类型:办公
- 项目地点:上海市
- 建筑面积:152㎡
- 项目造价:200万元
- 主案设计师: 黄骏翘
- 参与设计师:黄骏翘
- 竣工时间:2022-08-15
- 设计机构:广州普巴设计有限公司
-
项目定位:自然与商业的共存问题开始成为设计工作者们越来越多的思考问题,自然与商业结合兼容的产物,也是用户所需要的产物,而设计就成了中间的核心关键,如何去结合两者的过程,则是最需要像平衡者一样,赋予自然、商业与用户之间像三角形一样的稳定平衡状态。
-
空间意境:一个现代化的办公室不仅要注重功能性,更要从员工的角度出发,用空间艺术打造理想的办公环境。考虑到设计公司繁忙的工作节奏,设计以木材、艺术漆和金属为主要建筑材料,为建筑师们提供一个简约大方的基底空间,为不同规模的小组合作预留更多的可能性。为员工们提供一个舒适优美的环境本体,让环境来适应人的需求,而非强迫使用者去适应环境。
-
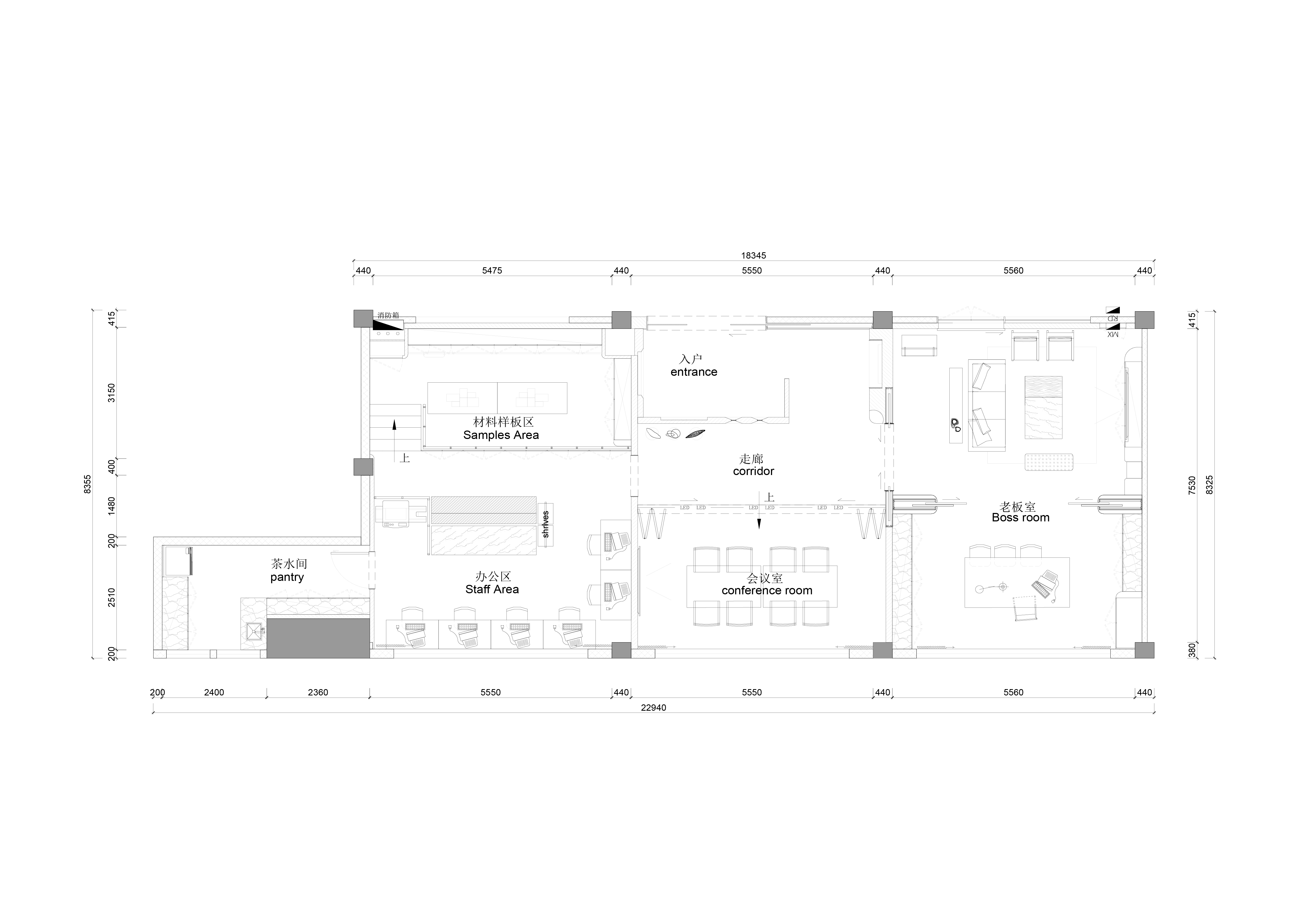
空间布局:而空间的划分上,会议室占据着整个空间最为开敞的区域,会议室是集聚交流、汇报,灵感碰撞的区域。在材质、家具的选择上都采用了干净简约的表达手法,开阔明亮的视野、自然光的引入,让空间变得更加自然与柔和。公共办公区打破封闭式格局,加强了设计工作过程中的沟通与协作,在自由开敞的环境之中激发不同的思维创意。老板办公室呈现的是开放式与私密性共存的状态,通过推拉隔断门的闭合,可以转变出独立办公室,独立接待休息区,以及一个更具空间感与质感的总监办公室的三种空间形态。
-
设计选材:设计以木材、艺术漆和金属为主要建筑材料,为设计师们提供一个简约大方的基底空间,为员工们提供一个舒适的工作环境。简洁的纵向线,艺术漆的大面积运用,即保证了空间简洁美学,细节之处也不失精细考究的设计处理,朴素材料的细微差别和它们的质感使构成空间简洁的元素,在这里空间本身得到了表现。艺术漆与木材质的碰撞,加上带有金属材质的家具,家具及地毯更会使用颜色去跳动,不同材料之间的碰撞,使其空间更带有时尚感觉。材料质朴、色彩淡雅、细节讲究、展现简约、高级感的同时,也使体验更为栩栩如生,直击内心。
-
用户体验:暖色的整体空间基调为员工创造一个温暖的气氛,功能和连接性强,开放舒适的办公空间,鼓励与同事之间的协作和休闲交谈,而整个设计中柔和的颜色有助于创造积极的工作场所体验。
自然氛围与商业环境的共存已成为当今越来越多的设计师所考虑的问题。设计的结果能与自然和商业相兼容,这是设计师所期望的,也是大多数用户所希望的。毫无疑问,设计师成为与用户之间的核心关键。在结合双方的过程中,需要有人或物作为平衡者来控制。而兼容过程的行为赋予了自然氛围、商业环境和用户之间的平衡状态,就像一个稳定的三角形。
公共工作区的开放性和创造的空间可以让使用者之间有很好的交流,加强设计过程中的沟通和协作,在自由开放的环境中激发不同的思维和创造力。
传统的工作空间或办公室,客户会议室也是正式而乏味的。这次我们通过功能空间形态的变化,让这些区域为客户带来不同的体验和放松的氛围,让他们保持平静。这可能会使沟通工作更容易。
总监办公室的房间有一个有趣的功能,使它成为一个半开放和私人的工作和会议空间。通过推拉隔断门的关闭,可以转化为独立的办公室,也可以成为独立的接待会议和休息区,用空间形态的变化使经理办公室具有三种不同的功能和三种不同的体验。
1
0

认证 · 让您身份增值