PSO Brand
464
作品说明
- 项目类型:零售
- 项目地点:广州市
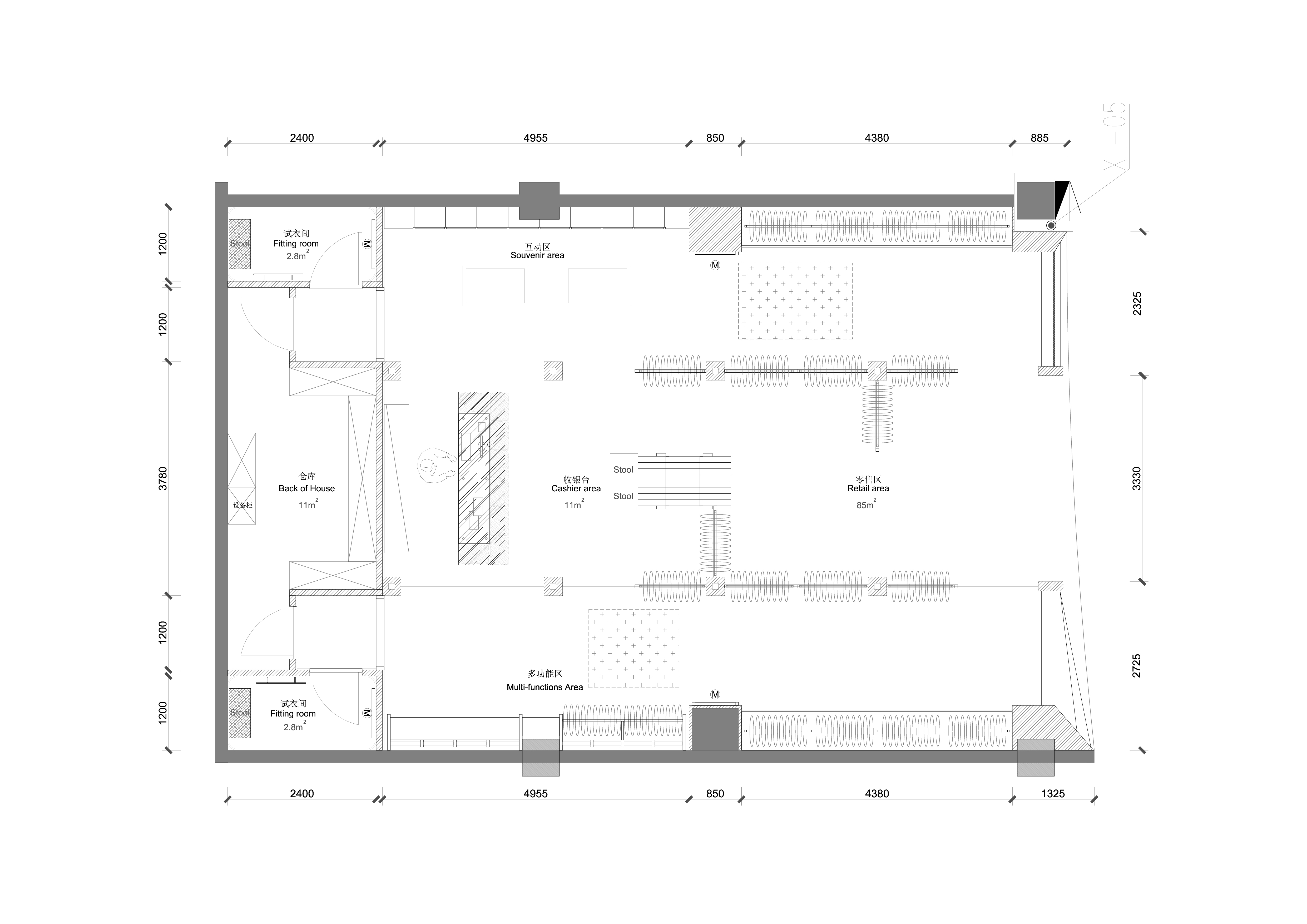
- 建筑面积:101㎡
- 项目造价:150万元
- 主案设计师: 黄骏翘
- 参与设计师:黄骏翘
- 竣工时间:2022-08-14
- 设计机构:广州普巴设计有限公司
-
项目定位:本案以“回归集市本源”为概念,藉由混泥土,木质,不锈钢搭建了一个充满律动且亲和力的空间,世俗对成功的定义并不是每个人生存的准则,人应该做自己,追求内心真正的需求,不迎合、不盲从,活出自己的态度,这是设计一以贯之的初心,也是品牌的蓬勃发展的信心。
-
空间意境:本設計概念,将市集文化概念引入了整个空间,秉承着自然与环保的精神,激励人们还原生活本质,鼓励创意与自我表达。进入空间,让城市还是城市,距离不再是距离。PSO Brand的空间设计,以亲和力,无界限,初心态度为设计的出发点。用身体感受空间,感受自己,感受自己与外界的连接。在这个连接的过程中,空间自然而然地诞生了。
-
空间布局:在细节上用草木点缀其间,在空间中形成有趣的对话,丰富地表达了空间的语言。当商品被陈列其中,空间以最真实可被感知的形态,将品牌的个性与理念传达给每一位消费者。极具现代感的不锈钢材质置入空间,冰冷坚硬与粗粝、与柔软融合在一起,有反差也有呼应,极具工业感的同时又富有贴近生活的当代感,营造出一种无拘无束、前卫且时尚的空间氛围。
-
设计选材:空间运用粗糙的混泥土质感呈现出一种岁月的沉淀感,温润的木质给空间带来质朴的舒适感。不同材料的组合,强化了空间的本质,呈现自然材料怦然心动的美感。
-
用户体验:店内的衣服风格、色系排布有序,店内的整体空间很出片。
PSO Brand服饰潮牌创立于2015年,PSO源自Please Speak Out(喊出心声),其理念亦为“喊出心声,不管多荒谬!年轻人就要无所畏惧!勇敢发声!”并有态度的生活着。
为什么越来越多的人在精神世界里活成了一座孤岛?发达的社交产品让我们快速高效地认知世界,但也将人与人的距离拉得更远。设计将市集文化概念引入了整个空间,秉承着自然与环保的精神,激励人们还原生活本质,鼓励创意与自我表达。进入空间,让城市还是城市,距离不再是距离。
PSO Brand的空间设计,以亲和力,无界限,初心态度为设计的出发点。用身体感受空间,感受自己,感受自己与外界的连接。在这个连接的过程中,空间自然而然地诞生了。
糙的混泥土质感呈现出一种岁月的沉淀感,温润的木质给空间带来质朴的舒适感。不同材料的组合,强化了空间的本质,呈现自然材料怦然心动的美感。
草木点缀其间,在空间中形成有趣的对话,丰富地表达了空间的语言。
当商品被陈列其中,空间以最真实可被感知的形态,将品牌的个性与理念传达给每一位消费者。
极具现代感的不锈钢材质置入空间,冰冷坚硬与粗粝、与柔软融合在一起,有反差也有呼应,极具工业感的同时又富有贴近生活的当代感,营造出一种无拘无束、前卫且时尚的空间氛围。
本案以“回归集市本源”为概念,藉由混泥土,木质,不锈钢搭建了一个充满律动且亲和力的空间,世俗对成功的定义并不是每个人生存的准则,人应该做自己,追求内心真正的需求,不迎合、不盲从,活出自己的态度,这是设计一以贯之的初心,也是品牌的蓬勃发展的信心。
0
0

认证 · 让您身份增值