紫檀
230
作品说明
- 项目类型:餐饮
- 项目地点:广州市
- 建筑面积:265㎡
- 项目造价:250万元
- 主案设计师: 黄骏翘
- 参与设计师:黄骏翘
- 竣工时间:2021-12-15
- 设计机构:广州普巴设计有限公司
-
项目定位:設計概念,我們對其進行了逆向思考方式去探索該設計概念; 日式文化中强调的含蓄低敛,是否与自然存在冲突?因此,我们反向从自然的和谐性中,寻找日式文化的精粹点,并加以提炼,提出了日式原則中與自然結合的‘天人合一’理念, 从而摸索出傳統與現代日式新空间的表达形式。
-
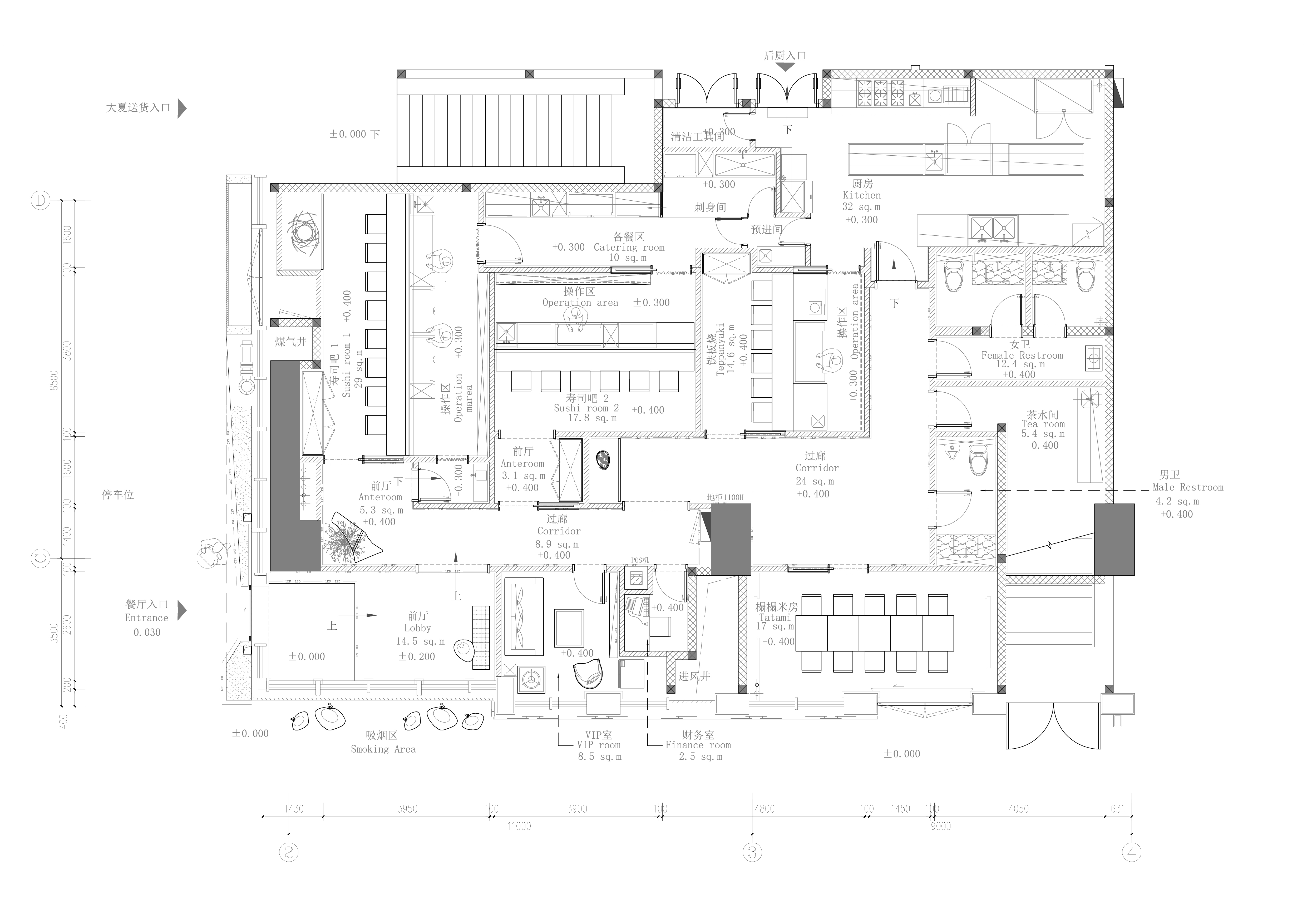
空间意境:空间布局多为包间形式,空间主要由两间寿司吧、一间榻榻米、一间铁板烧、一间VIP室组成。
-
空间布局:设计师尽力于每个独立空间中打造出不一样的亮点,各个空间彼此独立又统一于整体氛围。门口造型不以传统日式的手法去表达,而是提取自然中岩石切割组合后的造型形态,营造了一个气质内敛干练的氛围。门口墙面灰色肌理涂料在夜晚灯光的照射下,展示着粗犷而恣意的肌理。进入到大堂前厅,映入眼帘的是红色肌理漆与金属结构的墙面。主通道一面墙体延用红色肌理漆及金属结构的造型,以及选用浅灰色墙布与金属收口条的组合设计。寿司吧主体以浅色枫木材质为主,背景则是利用深色系枫木进行阵列组合,从而营造属于料理人的独特舞台背景。通过一系列独特的构成元素,将传统和韵完美地融入现代风潮中,巧妙地展示自身特色。
-
设计选材:在选材上使用大面积的艺术肌理涂料与木质材质为主,将日式风格更好的体现出来,配合店内舒适的灯光,仿佛将世间一切嘈杂被轻松的隔绝于店门外。
-
用户体验:这是有一家没有菜单的日式料理店,室内以木材质为主,少量金属装饰,日式风格,有很多包厢,坐在用餐位置,大家围坐在一起看着大厨一边料理,一边品尝,很有沉浸式的体验,静谧的包厢雅致舒适功能性氛围与精致都兼并到了
该项目坐落于广州市天河区,是一家无菜单、由主厨根据当令食材决定菜品的OMAKASE日本料理餐厅,空间布局多为包间形式,空间主要由两间寿司吧、一间榻榻米、一间铁板烧、一间VIP室组成。设计师尽力于每个独立空间中打造出不一样的亮点,各个空间彼此独立又统一于整体氛围。
门口造型不以传统日式的手法去表达,而是提取自然中岩石切割组合后的造型形态,营造了一个气质内敛干练的氛围。门口墙面灰色肌理涂料在夜晚灯光的照射下,展示着粗犷而恣意的肌理。
进入到大堂前厅,映入眼帘的是红色肌理漆与金属结构的墙面。主通道一面墙体延用红色肌理漆及金属结构的造型,以及选用浅灰色墙布与金属收口条的组合设计。寿司吧主体以浅色枫木材质为主,背景则是利用深色系枫木进行阵列组合,从而营造属于料理人的独特舞台背景。通过一系列独特的构成元素,将传统和韵完美地融入现代风潮中,巧妙地展示自身特色。
本設計概念,我們對其進行了逆向思考方式去探索該設計概念; 日式文化中强调的含蓄低敛,是否与自然存在冲突?因此,我们反向从自然的和谐性中,寻找日式文化的精粹点,并加以提炼,提出了日式原則中與自然結合的‘天人合一’理念, 从而摸索出傳統與現代日式新空间的表达形式。
0
0

认证 · 让您身份增值